Progetti degli architetti

Riprogettare la casa in costruzione a misura di famiglia

Villetta su 3 piani, poco più di 40 mq per piano. Ogni livello è stato riprogettato con soluzioni ad hoc ma da copiare, anche in un mono o bilocale.

Quando si sceglie una villetta su più piani in realtà si abita in tanti bilocali: perciò le idee tratte da un progetto come questo sono versatili e facili da copiare. I proprietari (una famiglia con due bambini) hanno comprato questa casa che aveva solo i muri esterni: la suddivisione degli interni proposta dal costruttore non piaceva, così con l’aiuto dell’architetto Filatrella hanno rivisto gli spazi.

La soluzione

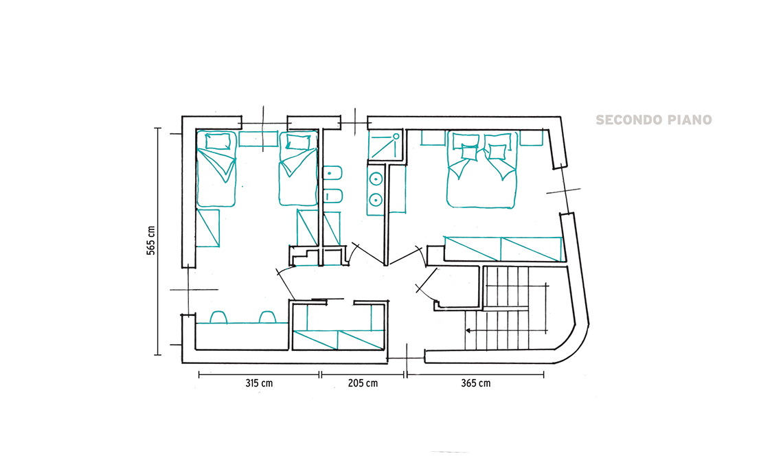
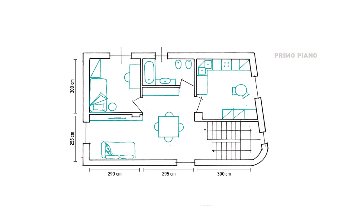
A piano terra si entrava direttamente in soggiorno e c’era un mini bagno: prima di tutto è stata realizzata una quinta per isolare l’ingresso e il servizio è stato ampliato e sdoppiato per accogliere la lavanderia/stireria con accesso anche dall’esterno. Il primo piano, prima con maxi cucina più bagno e due ripostigli, ora contiene cucina abitabile, sala da pranzo con angolo relax/tv, camera ospiti e un bagno con vasca. L’ultimo livello, che aveva 3 camere da letto (le due singole ai limiti di legge di 9 mq) e un bagno piccolo, è stato riprogettato per avere una grande camera per i figli, cabina armadio, un ampio bagno e la stanza matrimoniale.

BUDGET*

  • Costruzione tramezzi interni compresa intonacatura e rasatura €6.000
  • Tinteggiatura pareti interne e soffitto €7.500
  • Fornitura e posa pavimenti, piastrelle bagno e cucina €8.500
  • Fornitura e posa porte interne e infissi €21.000
  • Impianto elettrico €6.500
  • Impianto idraulico compreso di fornitura e posa sanitari e arredo bagni €19.000
  • Impianto di riscaldamento a pavimento €5.000

Totale (iva esclusa) €73.500

 

*il preventivo si riferisce a questo progetto; l’immobile si trova a Empoli (FI).

Guarda anche
Progetti degli architetti

Ricavare due appartamenti indipendenti da un trilocale

Guarda anche
Progetti degli architetti

Da 3 a 4 locali in un appartamento di 90mq

Testi

Elena Favetti

Progetto

Marzia Filatrella

Foto

disegni Silvia Magnano