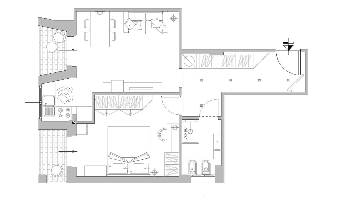
C’era una volta un piccolo bilocale, a Milano, in un contesto anni ’60 mai ristrutturato: 45 metri quadri costituiti da un lungo corridoio, soggiorno con tinello, camera e bagno. Muri bianchi e una palladiana come pavimento.
Il padrone di casa aveva le idee molto chiare: voleva una casa luminosa e ampia, elegante e funzionale. Insomma una bella sfida per l’architetto Barbara Crozzoletti!
Il triste ingresso è diventato un utile vano accessorio personalizzato da liane e palmizi, grazie a una carta da parati davvero particolare. Un invito a entrare e guardare oltre. Il pavimento abbinato è un grès dai toni simili al legno che vanno dal marrone al grigio utilizzato anche come rivestimento in bagno.
Per i muri l’architetto ha scelto una tinta grigio chiaro in tutto l’appartamento, soffitti compresi, tranne che per due pareti del soggiorno e della camera (lì ha giocato con un tono verde salvia). Per staccare il tutto, zoccolino e porte bianche.
L’obiettivo principale è stato quello di regalare l’emozione al committente di avere spazi quasi raddoppiati, nonostante la rigidità dell’impianto originale e l’impossibilità di modificarlo.
Il tutto è stato risolto mediante l’apertura del vecchio tinello verso il soggiorno, per creare un unico e ampio ambiente, con angolo cottura in nicchia.
Il piccolo bilocale di appena 45 metri quadri ora presenta un ingresso che da una parte è ampliato dalla prospettiva del paesaggio e da un’anta a specchio angolare che fa da guardaroba, e dall’altra parte viene reso funzionale da un’armadiatura continua.
Mediante l’apertura del vecchio tinello, il soggiorno ora può ospitare una zona living, una zona pranzo e un comodo angolo cottura. A completare il tutto la luce naturale e la nuova illuminazione scandiscono e valorizzano i nuovi spazi.
