• In edicola
  • Newsletter
  • Digital Creator
  • CF Lover
  • Architetti e Interior designer
CasaFacile
  • Case
    • Idee e soluzioni
    • Ispirazioni
    • Prima & Dopo
    • Case dei lettori
  • Arredare
    • Animali domestici
    • Arredo esterni
    • Bagno e lavanderia
    • Biancheria e tessili
    • Cabina armadio
    • Camera
    • Cameretta
    • Complementi d’arredo
    • Cucina
    • Idee e tendenze
    • Illuminazione
    • Ingresso e disimpegni
    • Mansarda
    • Soggiorno
    • Zona studio
  • Ristrutturare
    • Domotica
    • Incentivi e detrazioni
    • Leggi e certificazioni
    • Materiali
    • Pareti e pavimenti
    • Progetti degli architetti
    • Riscaldamento e clima
  • Elettrodomestici
    • Cappe
    • Forni
    • Frigoriferi
    • Lavastoviglie
    • Lavatrici
    • Piano cottura
    • Piccoli elettrodomestici
    • Televisori e Hi-Tech
  • Fai da te
    • Decorare
    • Idee per la tavola
    • Mettere in ordine
    • Mise en place
    • Mobili fai da te
    • Pulire casa
  • Giardinaggio
    • Consigli e soluzioni
    • Piante da appartamento
    • Piante da balcone e terrazzo
    • Piante da giardino
    • Piante grasse
  • News
  • Video
  • Icone del design
Login Registrati
Abbonati

Ristrutturare

Riscaldamento e clima

Eco-riscaldamento: i vantaggi dell’aria calda diffusa

Progetti degli architetti

Maxi cucina o cabina armadio? 1 ristrutturazione, 2 progetti

Pareti e pavimenti

Sos pavimenti: come arredare con le cementine

Riscaldamento e clima

4 angoli relax con camini e stufe che arredano

Progetti degli architetti

Nuovi progetti: eliminando l’ingresso il living raddoppia

Pareti e pavimenti

Sos pavimenti: come arredare con le piastrelle rosate

Progetti degli architetti

Nuovi progetti: da bilocale a trilocale per la vendita

Pareti e pavimenti

Sos pavimenti: come arredare con il marmo rosso

Materiali

Lavori soft (e a basso costo) per una casa tutta nuova

Progetti degli architetti

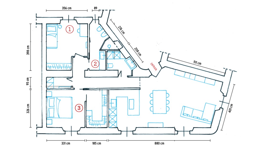
Nuovi progetti: ricostruire in… diagonale!

CASAfacile
Seguici su
facebook instagram pinterest
preview title
Scarica l'app
Abbonati
  • Pubblicità
  • Abbonati
  • Scarica la APP
  • Contatti
  • Privacy policy
  • Cookie policy
  • Personalizza tracciamento
  • Newsletter
  • Note legali
© 2022 PERIODICI SRL - Via Vittor Pisani, 28 - 20124 Milano - P. IVA 12136710964 - riproduzione riservata