I colori della parete in tufo, degli alberi e del cielo hanno suggerito una palette fatta di toni neutri, azzurri e verdi. A contrasto, tocchi industrial dati da porte e travi in ferro.
Sulla pedana in legno [Déco], tavolo e sedie [Home Torino da Spazio Ampio € 1.900 e € 390 cad], tavolini in ceramica InOut 47 e InOut 48 [Gervasoni], sdraio Butterfly [Knoll da Atelier Monti € 1.377] con cuscino Chamois [Galleria Mia € 25].
Sulla cucina in muratura creata su disegno e rivestita con resina [Kerakoll], taglieri Intaglio [KnIndustrie da € 88] e porta-oli Trattore [Alessi € 114].
Perché la luce scorra tra gli ambienti, la zona notte è stata ‘chiusa’ con una porta a grata in ferro verniciato nero a polvere, realizzata su disegno di Studiotamat. Divisa in due riquadri,
è completata fino a soffitto da un pannello a rete nello stesso materiale. Sul fondo del corridoio, un armadio con ante a specchio dilata lo spazio e aumenta la luminosità.
Sul divano grigio Kivik [Ikea, cm 190x95x83h da € 299], cuscino Argile in lino [da Galleria Mia, cm 60x40 €25]; sulla mensola poster Janus Warrior[€39,50], vassoio in ceramica Apollo I [€ 29,50] e vaso in carta Duna[€19,50] di [Octaevo],vaso Blade Caramel in cristallo [Nude € 189]; sgabello Printed Crisis [Piet Hein Eek da Galleria Mia]. La porta artigianale a bilico in ferro monta cerniere di [FritsJurgens].
Sul tappeto Sand grigio [Besana da € 57/mq], poltrone Anni ’40 di Giuseppe Pagano e Gino Maggioni [€ 2.500] e lampada Tripode [Stilnovo € 900], tutto da [Spazio Ampio]; tavolino in metallo [Vermobil da Galleria Mia, ø cm 43x 45h € 85]. sospensione Gregg
in vetro satinato bianco [Foscarini].
A parete, poster Apollo I [Octaevo, cm 50x70 € 39,50], sulla credenza lampada da tavolo Lampiatta [Stilnovo € 335,50]; sgabelli in tubolare d’acciaio Hee [Hay da Galleria Mia, da cm 43x45x65/76h da € 195]. Parquet [CP Parquet].
Libreria a parete Wally, componibile in mdf laccato [Cattelan]. A terra, pavimento in grès porcellanato effetto marmo Port Laurent Effect Deco [Ceramica Fioranese].
Attorno al tavolo quadrato in legno Spyder [Cattelan]; sedie: Ariston in legno lamellare curvato Anni ’50 design di Augusto Bozzi [Saporiti € 900 cad] e in rattan di Campo e Graffi per [Home Torino € 390 cad], tutte in vendita da [Spazio Ampio].
Sul tavolo, piatti in porcellana [L’Arte nel Pozzo] e vaso Eden Terrarium [Nude € 153]. Sul mobile a sinistra, vaso Opal Pink in cristallo [Nude€168]. Cucina color sabbia [Doimo Cucine]; sui fuochi, casseruola Edo a due manici in acciaio inox [da ø cm 16 da €68] di [Alessi] come il set di scatole portaoggetti Garybaldi Tin [€ 49] e il tostapane W [€ 265] sullo scaffale metallico a giorno. Gli imbotti delle porte tra cucina e salotto sono dipinti con pittura color Blu Gum, la cornice in alto, e il soffitto in Sea
Nor Sky di [Paint & Paper Library],
Dietro il letto, carta da parati Cloe [LondonArt € 91/mq] e lampada a bracci snodati [Muselli Officine Luce]. Sul letto, lenzuola e federe di
[La Fabbrica del Lino], plaid in 100% cotone di [Harmony Textile € 80]
e cuscino Beton in lino [€ 25], tutto da [Galleria Mia]. comodini e porte realizzati su disegno di [Studiotamat]. In bagno, a soffitto, faretti Shot Light [Arkoslight].
Nella doccia, mattonelle verdi linea Zellige [Mosaic Del Sur], rubinetteria in ottone ossidato [Treemme].
CasaFacile > CASE > Prima & Dopo > Un appartamento a Roma e un desiderio: trasformare il giardino in un living all’aperto
Le zone giorno e notte scambiate e ridimensionate, un giardino privato riportato in vita e trasformato in stanza in più: ecco una ristrutturazione totale all'insegna di comfort, luce e verde!
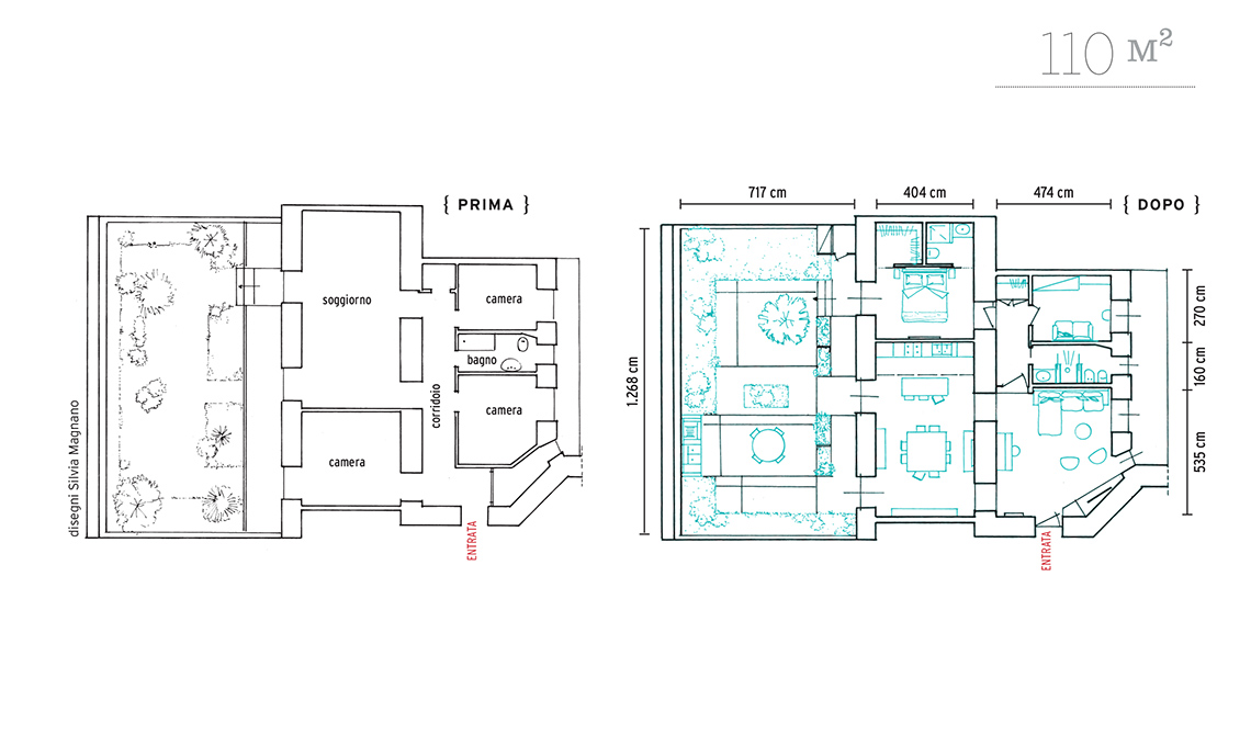
Un appartamento al piano terra, ancora con la pianta degli Anni ’30: tante stanze servite da un corridoio centrale, pavimenti rovinati, per non parlare delle pareti. Certo, a vederlo così mancava un po’ di appeal, ma poi... un giardino privato di 90 mq, la grande altezza dei soffitti e il doppio affaccio (cioè luce) su due interni piantumati (cioè niente caos del centro città) hanno stregato Matteo, che si è affidato a Studiotamat per la ristrutturazione e a Cristina Gigli per il tocco finale.
Le scelte fatte
La zona notte era all’entrata, la zona giorno in fondo. L'intervento ha stravolto l’impianto originale, portando il soggiorno all’ingresso e consentendo di godere al massimo della luce naturale e di sfruttare al meglio ogni metro quadrato.
La cucina/sala da pranzo si affaccia sul giardino attraverso due porte- finestre, mentre la zona notte, spostata in fondo, è più riservata e guadagna un bagno e la cabina armadio.
Per non parlare del giardino: un rettangolo, prima incolto, è stato valorizzato creando dei dislivelli grazie a una pedana in legno che definisce la zona del tavolo da pranzo e della cucina in muratura. Dunque un vero ambiente in più all’aperto, da utilizzare per gran parte dell’anno (sì, a Roma si può!) per pranzi, cene e relax in totale comfort.
Il tocco di stile
L’altezza dei soffitti e lo spessore dei muri sono stati messi in risalto dall’uso del colore: non mimetizzati, ma piuttosto esaltati in tutto il loro splendore.