Progetti degli architetti

Vivibilità sorprendente nell’ex seminterrato

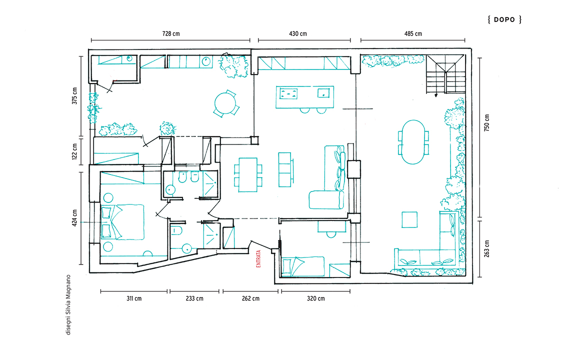
Un bilocale affacciato su due cortili privati incastonato tra i palazzi è stato ristrutturato per ricavare tanta luce e locali in più: cameretta e secondo bagno, più cucina e maxi living all'aperto!

Un appartamento seminterrato nel cuore di Roma, chiuso fra altri palazzi: la luce è poca, gli spazi divisi male e in modo rigido, ma i due cortili privati con una superficie complessiva pari a quella interna hanno convinto i proprietari all’acquisto e con l’intervento dello studio CF style EmmeQ la scommessa di trasformarlo in una casa davvero unica è stata vinta: spazio e luce sono raddoppiati!

La soluzione

Demolite tutte le partizioni interne e parte dei muri esterni per creare nuove grandi aperture che consentissero una migliore illuminazione degli ambienti (è bastato presentare la SCIA*), l’appartamento che in fase iniziale aveva una zona giorno lunga e stretta, una camera da letto e un solo bagno ora è totalmente riorganizzato e adatto a una famiglia con figli. Eliminato anche il ripostiglio interno, il living – ora a elle e con doppio affaccio – ha una maxi cucina con isola e le zone relax e pranzo separate da un mobile a tutt’altezza che ingloba e nasconde il pilastro centrale. La vecchia camera da letto è stata ridimensionata per realizzare il secondo bagno, ed è dotata di home office e accesso diretto alla cabina armadio, ricavata rubando un po’ di spazio al cortile. La cameretta, accanto all’ingresso, si affaccia sul secondo giardino ed è ‘mimetizzata’ da una parete rivestita con carta da parati e porta a scomparsa filomuro. Alla zona notte e servizi si accede attraverso una parete boiserie con porta a scomparsa. E i due spazi esterni ospitano cucina e living outdoor. Tutto in soli 75 (+ 75) mq!

(*Segnalazione Certificata di Inizio Attività, da presentare allo sportello unico per l’edilizia del Comune di appartenenza).

BUDGET*

  • Demolizioni murature €3.000
  • Costruzioni tramezzi €2.500
  • Rivestimento bagni in resina €6.000
  • Tinteggiatura pareti e soffitti €5.000
  • Realizzazione, fornitura e posa infissi su misura €17.000
  • Realizzazione nuovo impianto elettrico €10.000
  • Realizzazione nuovo impianto termico (riscaldamento radiante a pavimento e impianto di condizionamento) €18.000
  • Realizzazione impianto idrico €3.00

Totale (iva esclusa) €64.500

 

*il preventivo si riferisce a questo progetto; l’immobile si trova a Roma.

 
Guarda anche
Progetti degli architetti

Rivoluzionare gli spazi per sfruttare il grande terrazzo

Guarda anche
Progetti degli architetti

Il progetto che sfrutta gli angoli difficili di una casa

Testi

Elena Favetti

Progetto

EmmeQ Studio

Foto

Paolo Callarà