l box doccia DolceVita Zenith è tailor made, perché grazie alla stampa
digitale se ne personalizza il cristallo che mantiene inalterati nel tempo intensità e colore, nonostante l’acqua e l’uso quotidiano [Samo].
Le piastrelle Regoli in grès porcellanato smaltato dalla forma a mattoncino (cm 7,5x30) sono disponibili in 6 colori con finitura mat, glossy o 3D [Marca Corona].
Le porte Skema si realizzano su misura: sono perfette per ricavare
ripostigli e cabine armadio ma anche per chiudere sottoscala e nicchie; qui sono in laccato opaco Bianco con apertura a libro [FerreroLegno].
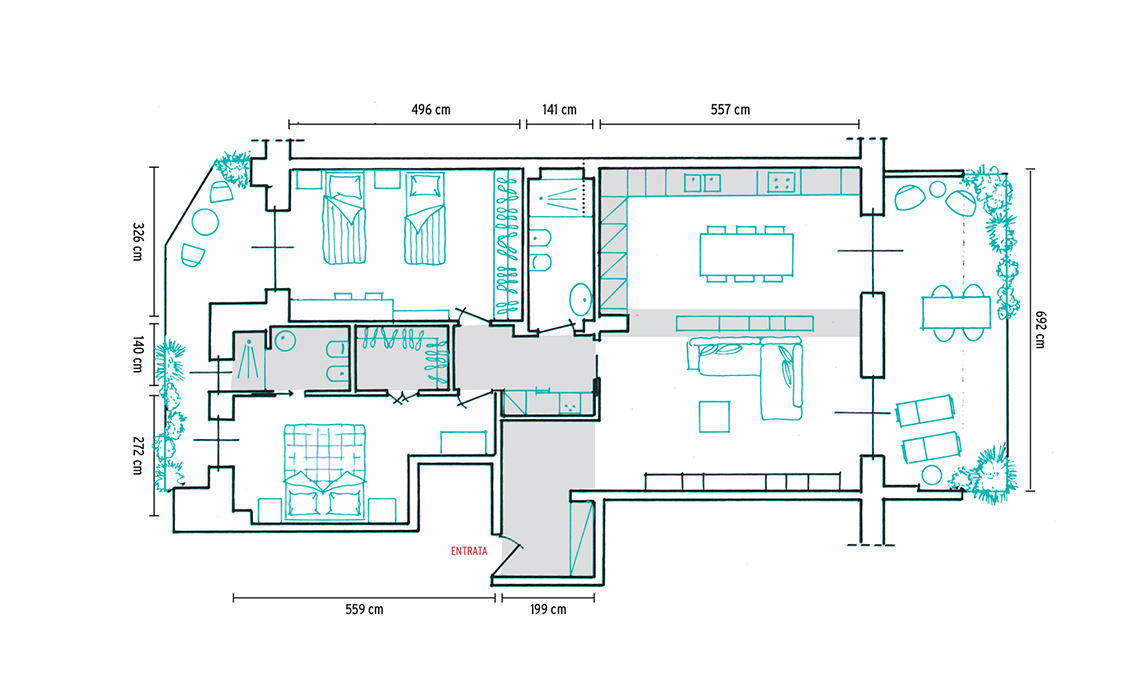
La zona all'aperto, ora accessibile dal living, finalmente ha ritrovato il suo ruolo. La zona notte, invece, è riservata, con secondo bagno e cabina armadio.
Torino, un appartamento con terrazzo (e un balcone) non è cosa tanto facile da trovare, si partiva già da una situazione fortunata. La disposizione interna però non andava bene: la cucina verso il cortile e le stanze verso il terrazzo... Così Ruben e Sonia hanno chiamato lo Studio Ciesse perché trasformasse la casa secondo le loro esigenze: spostare la zona giorno in modo da poter godere dello spazio outdoor e mettere le camere verso il cortile.
Il sogno in più? Era ricavare anche un secondo bagno. Gli architetti non solo ci sono riusciti, ma hanno addirittura trovato posto per una cabina armadio e una lavanderia!
La soluzione
Tolto il tramezzo tra le vecchie camere, si è creata una maxi zona giorno con cucina a vista, l’ingresso è stato diviso in due per realizzare una zona lavanderia e il vecchio bagno è stato ridimensionato e reso ‘en suite’ per la camera matrimoniale (ricavata dove c’era la cucina), servita dalla nuova cabina armadio.
Sfruttando gli ex ripostiglio e disimpegno, è stato realizzato il secondo bagno. Tutti i controsoffitti ora sono vani tecnici: nel disimpegno c’è la macchina per il condizionamento e nel resto della casa i canali di distribuzione, oltre all’impianto elettrico. Il pavimento in parquet in essenza scura – perfetto in una casa molto luminosa – corre su tutta la superficie.
BUDGET*
Opere edili: demolizioni, creazione sottofondo per parquet, costruzione tramezzi e rasatura pareti €10.000
Opere in cartongesso (spallette e controsoffittature) €3.000
Impianto canalizzato €4.000
Realizzazione vetrata fra bagno e cucina €500
Impianto elettrico nuovo €5.000
Impianto idraulico nuovo (2 bagni, cucina e lavanderia) €5.000
Levigatura parquet cucina, living e camera da letto €1.500
Fornitura e posa parquet, piastrelle e materiali per 2 bagni €8.000
Piastrellatura bagni €2.500
Posa parquet e zoccolini €2.000
Preparazione e tinteggiatura pareti e soffitti €3.000
Armadi e porte su misura €6.400
Totale (iva esclusa) €50.900
* il preventivo si riferisce a questo progetto; l’immobile si trova a Torino.