Una vecchia casa di famiglia in un borgo vista mare: i proprietari vogliono ristrutturarla perché si possa utilizzare durante l’anno, durante i periodi di smart working. Lo spazio attuale è mal distribuito, con un living a elle sul quale affaccia il bagno, pochi spazi contenitivi e gli impianti da rifare. Contattata dai proprietari, l’architetto CF style Susanna Rao ha proposto un progetto semplice e funzionale, in grado di rispondere alle loro richieste.
La soluzione
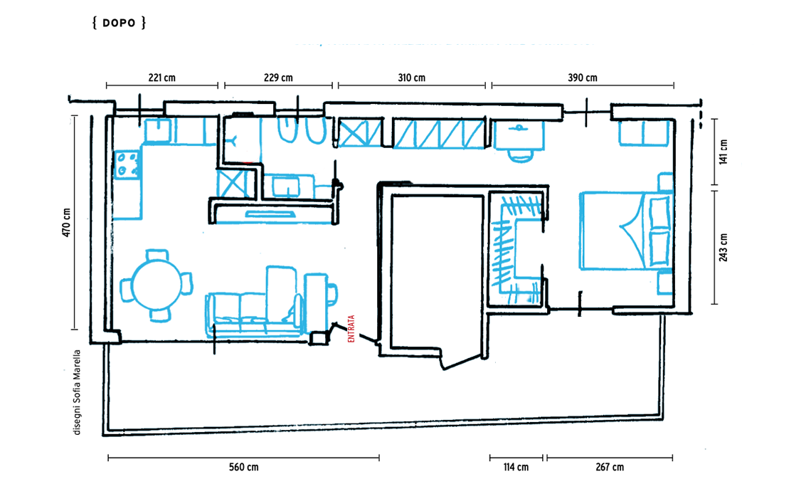
Prima di tutto, il bagno viene slittato verso il corridoio e al suo posto viene organizzata la cucina, parzialmente a vista; entrambi i locali hanno una finestra. Grazie a un gioco di nicchie, la doccia nel bagno e il frigo in cucina vengono incassati, così come la parete attrezzata per la tv in salotto, dopo la realizzazione di due spallette. Installando di fronte all’ingresso una porta vetrata scorrevole esterno muro, è stato realizzato un piccolo disimpegno: grazie ad apposite armadiature a muro, è sfruttato anche come lavanderia e ripostiglio/guardaroba per la biancheria di casa. La camera da letto, che mantiene la posizione precedente, comprende una piccola ma comoda zona studio (l’altra, con un bancone su misura, è stata inserita nel living accanto all’ingresso). Di fronte al letto c’è spazio per una cabina armadio, come era stato richiesto dalla proprietaria: le porte che la chiudono sono a specchio, in modo da ampliare visivamente lo spazio della stanza.
BUDGET*
- Demolizioni, rimozione, sanitari, porte e controsoffitto in legno, creazione tracce, con trasporto in discarica € 4.800
- Costruzione tramezzi in forati con intonaco e rasatura €2.650
- Rasatura vecchi intonaci €1.200
- Isolamento interno del tetto € 3.150
- Fornitura e posa in opera di parquet compreso battiscopa €6.800
- Fornitura e posa pavimento e rivestimento bagno €1.150
- Fornitura e posa porte scorrevoli in vetro e a specchio + infissi e porta d’ingresso €9.000
- Impianto idrico compresa fornitura e posa sanitari ed arredo bagni €3.600
- Impianto elettrico e termico compresi radiatori €8.300
- Tinteggiatura €3.000
Totale (iva esclusa) €43.650
* il preventivo si riferisce a questo progetto; l’immobile si trova a Gaeta (LT).
