Nella camera matrimoniale il letto è formato da un parallelepipedo in cartone su cui è stato posato un materassino da campeggio e il tutto vestito con lenzuola e cuscini.
Nella camera matrimoniale il letto è formato da un parallelepipedo in cartone su cui è stato posato un materassino da campeggio e il tutto vestito con lenzuola e cuscini.
Nella camera matrimoniale il letto è formato da un parallelepipedo in cartone su cui è stato posato un materassino da campeggio e il tutto vestito con lenzuola e cuscini.
Nella cameretta il letto è formato da un parallelepipedo in cartone su cui è stato posato un materassino da campeggio e il tutto vestito con lenzuola e cuscini. Ci sono anche la scrivania e la sedia nell'angolo studio.
Sai cos'è l'home staging? È un'allestimento che simula l'arredamento completo di una casa. Sì, ma a cosa serve? Adesso te lo spieghiamo noi con un'esempio pratico: l'allestimento che gli architetti e home stager Caterina Scamardella (architetto CF style) e Daniela Scovotto hanno predisposto in un trilocale in seguito alla ristrutturazione dello stesso.
Quando si decide di vendere una casa ci sono 3 possibilità:
lasciarla allo stato di fatto che può voler dire finiture vecchie e un'organizzazione degli ambienti poco funzionali e starà alla capacità dell'acquirente, magari coadiuvato da un architetto, capirne le potenzialità e accollarsi lavori e spese di ristrutturazione;
ristrutturarla con finiture valide ma standard e rivedendo o meno l'impianto distributivo dell'appartamento;
ristrutturarla in modo curato nelle finiture e nell'organizzazione degli spazi e ricorrere all'home staging per far capire subito ai visitatori come l'appartamento si può arredare dando, quindi un'idea chiara degli ingombri e della disposizione dei mobili.
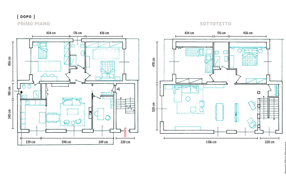
È proprio questo che hanno fatto gli architetti Scamardella e Scovotto in questa abitazione che, dopo essere stata ristrutturata completamente per creare una seconda camera e un living più funzionale è stata 'arredata' con elementi tridimensionali realizzati in cartone ondulato spesso 3 cm (vengono affittati per l'occasione) che simulano la forma e gli ingombri dei veri mobili.
In soggiorno, dunque, è stato posizionato l'elemento divano da 3 posti completato da cuscini, tappeto e lampade, è stata 'costruita' la cucina accostando tra di loro i singoli moduli lavello, cottura, basi contenitori e frigorifero, infine è stata creata la zona pranzo con un elemento tavolo tondo e sedie vere.
Allo stesso modo le due camere sono state allestite con moduli letto che, poi, sono stati completati da materassini da campeggio e poi vestiti con lenzuola e cuscini, degli stender con vestiti simulano gli armadi e nella cameretta è stato allestito un vero angolo studio.
Qui, visto l'affaccio sul giardino, è stata scelta una palette di verdi molto rilassanti (presenti anche grazie alle piante usate per l'allestimento) scaldati da tocchi di giallo ocra in perfetta armonia. La palette colori viene sempre studiata in base al target di potenziali acquirenti individuato con uno studio sul contesto in cui sorge l'immobile.
Quello dell'home stager è un lavoro importante che spesso, come in questo caso, permette di vendere la casa nel giro di pochissimo tempo (qui si parla di 3 giorni) proprio perché riesce a dare vita a una 'scenografia' che consente agli interessati di avere subito una chiara percezione di come si può arredare la casa... perfetto soprattutto per chi non ha proprio idea degli spazi o fatica a immaginarseli arredati.
Gli architetti e home stagers Caterina Scamardella e Daniela Scovotto fanno parte dell'Associazione Nazionale Home Staging Lovers.