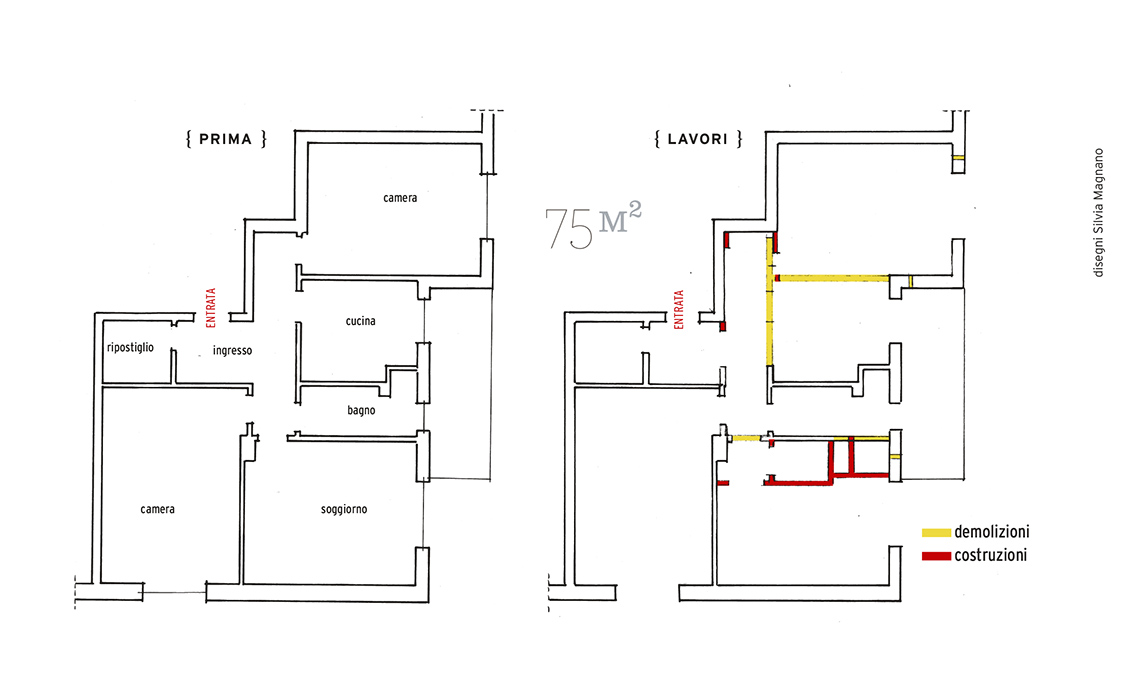
Un piccolo tre locali con un bel terrazzo viene acquistato da una famiglia di 3 persone. Deve però essere rivisto nella distribuzione, affinché gli spazi rispondano meglio alle loro esigenze.
Le richieste
Unificare la zona notte, ricavare un secondo bagno (anche mini) creare altri vani contenitivi, specie per i libri, e inserire al meglio i loro mobili.
La soluzione
Eliminati i tramezzi tra corridoio, cucina e camera, è stato creato un unico ambiente giorno con accesso al terrazzo, cucina a vista, pranzo e un angolo lettura nella nicchia generata dalla presenza di una parete non abbattibile perché ospita gli impianti. Il bagno esistente è stato rifatto sostituendo la vasca con la doccia: così c’è spazio per lavatrice e asciugatrice; sfruttando i nuovi impianti si è aggiunto, lì accanto, un secondo mini-servizio con lavabo e vaso. Al posto dell’ex soggiorno c’è ora la cameretta. Tutte le nicchie sono state sfruttate con librerie e amadiature progettate ad hoc.
BUDGET*
- Demolizione tramezzi, impianti e infissi (con trasporto in discarica) €3.000
- Realizzazione tramezzi, massetti, intonaci e assistenze murarie €4.000
- Impianto elettrico €3.500
- Impianto idrico €2.500
- Fornitura e posa pavimenti e rivestimenti €6.500
- Tinteggiatura pareti e soffitti €4.500
- Fornitura e posa sanitari, rubinetterie, porte e opere di finitura €4.500
- Opere in cartongesso €2.500
Totale (iva esclusa) €31.000
*il preventivo si riferisce a questo progetto; l’immobile si trova in provincia di Napoli.
