Controtelaio e zoccolini effetto filomuro. Il primo si chiama Syntesis® Line per porte scorrevoli interne, il tutto privo di stipiti e coprifili; il battiscopa Syntesis® consente di realizzare ambienti minimali ed eleganti senza elementi sporgenti [Eclisse].
Pompa di calore aria/acqua split Vitocal 200-S modulante, con tecnologia inverter ad alta efficienza per riscaldare e raffrescare; ha montaggio flessibile dell’unità esterna (a terra o a parete) e classe di efficienza energetica A++ [Viessmann].
CasaFacile > News > Recuperare il sottotetto per creare spazi in evoluzione
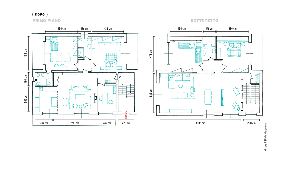
La casa principale è al primo piano, collegata alla mansarda con una scala: con la famiglia in crescita e gli ospiti frequenti, servono stanze in più che, in futuro, potranno trasformarsi in un secondo appartamento.
Una casa indipendente con garage e cantina nel seminterrato, un quadrilocale al primo piano e un sottotetto tutto da inventare e per il momento non utilizzato. La famiglia (papà, mamma e un bimbo) ha spesso ospiti i parenti che per ora dormono nella cameretta, ma l’unico bagno e gli ambienti divisi rigidamente non sono più funzionali. Inoltre, la padrona di casa ha bisogno di un suo locale studio. Con interventi mirati, l’architetto CF style Caterina Scamardella è riuscita a soddisfare le richieste dei proprietari, intervenendo anche in mansarda.
La soluzione
Al primo piano è rimasta intatta la zona notte, mentre la zona giorno è stata rivoluzionata: vicino all’ingresso c’è lo studio (al posto della cucina), seguito da un grande living con cucina a vista, affacciati sul terrazzo; tra questa e la cameretta è stato creato il secondo bagno oltre a un’ampia armadiatura con home office integrato.
Il sottotetto, invece, è stato totalmente recuperato con soluzioni che ne consentono un uso variabile col passare del tempo. La zona notte ricalca quella del piano inferiore con due stanze da letto (per ora servono per gli ospiti) e il bagno al centro; il resto dell’ambiente open space al momento è concepito come stanza relax-palestra-tv ma, grazie agli allacciamenti di acqua e gas predisposti (in corrispondenza della cucina sottostante), in un futuro vi si potrà installare una vera cucina, per trasformare la mansarda in un appartamento indipendente per il figlio o da dare in affitto.
BUDGET*
Lavori di muratura e finitura pareti (demolizioni comprese) €7.000
Controsoffittature e pareti in cartongesso €4.000
Tinteggiatura €3.000
Sostituzione infissi esterni e oscuranti €15.000
Sostituzione portone d’ingresso €4.000
Fornitura e posa nuove porte interne €2.000
Fornitura e posa pavimenti e rivestimenti €6.000
Impianto idraulico €3.500
Impianto elettrico €4.000
Realizzazione bagni nuovi €3.000
Installazione termocamino e realizzazione canalizzazione aria calda verso camere €10.000