Il trituratore
per creare il bagno
anche lontano dagli
scarichi è racchiuso
nel monoblocco
Sanidesign bianco
lucido o acciaio
satinato al quale
fissare il vaso
a terra [Sanitrit].
Il parquet
prefinito a 3 strati
Assi del Cansiglio
Campiello è in
faggio, con finitura
ad acqua e supporto
in betulla. Molto
stabile, è adatto
al riscaldamento a
pavimento [Itlas].
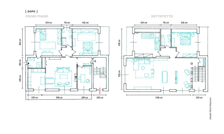
Il maxi ingresso si rimodella per accogliere un armadio e il disimpegno delle camere; il soggiorno raddoppia e ospita un'ampia cucina... e ci sta anche un secondo bagno-lavanderia!
Una tipica casa d’epoca, con un ampio ingresso sul quale si affacciavano tutti i locali tranne la maxi camera matrimoniale, accessibile dal soggiorno. Spazi ampi e luminosi, sì, ma non adatti alle esigenze di una famiglia di 3 persone: l’ingresso non si poteva sfruttare, con conseguente spreco di spazio, e non c’era divisione tra le zone giorno e notte.
Le richieste
Ingrandire il living (anche con cucina parzialmente a vista), creare un secondo bagno, riutilizzare l’armadio esistente della camera matrimoniale e ricavare in ingresso un’armadiatura per riporre cappotti e scarpe.
La soluzione
Le zone notte e giorno sono state invertite: si è creato un grande soggiorno con ampia zona relax più cucina con penisola su cui si trova il piano a induzione con cappa integrata; le colonne più la zona lavaggio sono ‘incassate’ nella parete, quindi risultano quasi invisibili.
Sul disimpegno notte, dotato di un utilissimo armadio a tutta altezza, si affacciano le camere e i 2 bagni. I tavolati del servizio esistente sono stati conservati, per contenere i costi e mantenere le cornici originali delle camere; la vasca però è stata sostituita da una grande doccia posta davanti alla finestra. Il secondo bagno (inserito tra cameretta e cucina) è stato realizzato installando una pompa con trituratore che permette di portare gli scarichi alla braga esistente.
BUDGET*
Demolizioni tavolati, impianti, sottofondo e pavimento bagno, trasporto in discarica e oneri €9.300
Costruzione controsoffitti in cartongesso e ass. muraria €8.000
Impianto elettrico €4.800
Impianto idraulico per creazione di 2 bagni, cucina, fornitura e posa scaldabagno; modifica impianto riscaldamento per riposizionare vecchi radiatori più fornitura e posa scaldasalviette; creazione impianto condizionamento €11.000
Fornitura e posa pavimento e rivestimenti €4.900
Fornitura e posa nuovi serramenti porte interne e porta €10.900
Pittura pareti, soffitti, radiatori, scuri interni, finestre e cornici €4.900
Totale (iva esclusa) €72.800
*il preventivo si riferisce a questo progetto; l’immobile si trova a Milano.