Persiana blindata Dekora a lamelle orientabili e fisse. Le barre e le piastre in acciaio speciale al carbonio costituiscono una robusta grata, totalmente nascosta dai profili di alluminio; ha rostri antistrappo, gruppi cerniere anti- sfilamento e serratura di sicurezza a 3 e 5 punti di chiusura [Kikau].
Porta blindata Svevo della collezione Scrigno TECH è in classe antieffrazione 3
e, combinata con la guarnizione automatica sottoporta della gamma Chronoseal, elimina il passaggio di correnti d’aria e i rumori esterni [Scrigno].
Una casa indipendente su tre piani, da rivedere completamente nella disposizione degli spazi!
Non solo all'interno ma anche anche all’esterno: sono previsti interventi in facciata e la riqualificazione generale dell’immobile, grazie al Superbonus 110%. Una lettrice di CasaFacile contatta l’architetto CF style C. Linda Salzano per un progetto ad hoc e Linda propone due progetti di ristrutturazione, dei quali qui vediamo la parte che riguarda il primo piano (gli altri due livelli sono uno sottostante, che servirà per gli ospiti, e il sottotetto). Un appartamento trilocale di 100 mq destinato alla famiglia, composta dalla nostra lettrice e dal marito, professionisti, e da due figli gemelli di 10 anni. Quale preferisci tra le due opzioni?
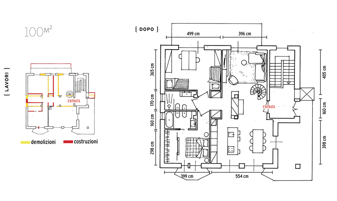
Progetto numero 1
La zona giorno non cambia posizione ma diventa open con salotto verso il terrazzo e pranzo con cucina dove c’era il living. La zona notte prevede due grandi stanze e raddoppia il numero dei bagni: quello padronale è a uso esclusivo della camera matrimoniale, che ha anche la cabina armadio di fronte al letto. Il disimpegno centrale diventa guardaroba con nuove nicchie e un’armadiatura che ingloba i pilastri davanti all’ingresso.
BUDGET 1*
Demolizioni pareti, pavimenti e massetti, rivestimenti, rimozione, porte, sanitari e caloriferi €14.700
Costruzione tramezzi, massetto, rete elettrosaldata, cassonetti per avvolgibili, isolamento termoacustico, tamponamento finestra su muro portante €17.550
Pavimenti e rivestimenti in grès e parquet compresi zoccolini €16.700
Controsoffitti e tinteggiatura € 9.970
Serramenti esterni € 25.470
Porte interne €6.200
Impianto termoidraulico €22.070
Impianto elettrico €9.400
Totale (iva esclusa) €122.060
Progetto 2
La zona giorno open, si sviluppa in modo lineare (cucina, pranzo e salotto) lungo il terrazzo. La cucina ha l’isola con banco snack. La camera dei bambini ha due finestre, in modo da poter essere divisa in due con cartongesso e armadi quando saranno grandi. I due bagni sono speculari: quello con maxi doccia è accessibile dagli ospiti e dai bambini, quello con vasca è en suite nella camera matrimoniale con cabina. Ampie armadiature caratterizzano il nucleo centrale della casa (ingresso, soggiorno e disimpegno): così non c’è spreco di spazio.
BUDGET 2*
Demolizioni pareti, pavimenti e massetti, rivestimenti, rimozione, porte, sanitari e caloriferi €14.700
Costruzione tramezzi, massetto, rete elettrosaldata, cassonetti per avvolgibili, isolamento termoacustico, tamponamento finestra su muro portante €17.550
Pavimenti e rivestimenti in grès e parquet compresi zoccolini €16.700
Controsoffitti e tinteggiatura € 10.250
Serramenti esterni €27.300
Porte interne €7.100
Impianto termoidraulico €20.950
Impianto elettrico €9.400
Totale (iva esclusa) €123.950
*Il preventivo si riferisce a questo progetto; l’immobile si trova a Torino.