La finestra da tetto GGL Integra Elettrica [cm 55x78 € 662 + Iva] si può abbinare a Velux Active. Sviluppato con [Netatmo], è un sistema intelligente basato su sensori che monitorano la temperatura, l’umidità e la concentrazione di CO2 nell’aria della casa e che aprono e chiudono finestre, tende e tapparelle quando occorre! [€ 249]. Tutto [Velux].
Scala Oak70 a pianta tonda: può avere da 13 a 16 gradini in rovere ed è completata dalla ringhiera in acciaio verniciato e pvc [Fontanot, da ø cm 110 da € 1.357,30]
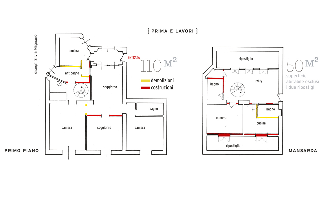
Un trilocale ormai 'strettino' per una famiglia di 4 persone è stato ampliato annettendo la mansarda. L'idea: mantenere il doppio ingresso ai due piani, così un giorno si potrà ridividere la casa.
Quando il sottotetto, già abitabile, è stato messo in vendita, i proprietari del piano sottostante l’hanno acquistato per ingrandire il loro trilocale, ampio ma mal distribuito dato che il soggiorno divideva in due la zona notte e gli spazi sprecati erano troppi.
Le richieste
Una stanza per ogni figlio più uno spazio comune per stare con gli amici, uno studio grande per i genitori e una cucina più ampia; ma... con un budget contenuto.
La soluzione
Rifatto completamente il tetto, i due piani sono stati collegati con una scala a chiocciola posizionata nel disimpegno tra soggiorno e cucina. Questa ha inglobato parte dell’ex antibagno ed è quasi raddoppiata. Il salotto è stato organizzato al posto della ex camera dei ragazzi e lo studio è tra questo e la sala da pranzo. La stanza padronale e il bagno privato non sono stati modificati. Sopra, eliminata la cucina, ci sono due camere gemelle con finestre a cappuccina che danno sul terrazzino, un bagno nuovo, una stanza living e un maxi-ripostiglio
BUDGET*
Recupero del sottotetto
Ponteggi e allestimento cantiere €19.500
Rifacimento tetto con struttura in ferro, coibentazione, copertura in tegole e lattonerie, più posa 4 lucernari €39.000
Formazione di due cappuccine con terrazzini a tasca e serramenti €26.000 Totale (iva esclusa) 84.500
Ristrutturazione di tutto l’appartamento
Demolizione e rifacimento soletta con foro per scala. Nuovi tavolati in cartongesso, posa controtelai di porte e portefinestre. Assistenze murarie e rasature €19.500
Integrazione impianto elettrico, impianto idrico sanitario per nuovo bagno, impianto di climatizzazione piano sottotetto €13.000
Pavimentazione in resina, rivestimento del nuovo bagno, pavimentazione terrazzini €13.000 Totale (iva esclusa) 45.500
*preventivo si riferisce a questo progetto; l’immobile si trova a Milano