L'appartamento di circa 85 mq si trova in una zona residenziale di Milano ed è stato acquistato da una giovane coppia che, innamoratasi dell'atmosfera e della luminosità della casa, aveva l'esigenza di ristrutturarla completamente non solo perché era ancora allo stato originale ma anche perché avevano necessità di sfruttare al massimo lo spazio inserendo due bagni, due camere, una grande zona giorno e un ripostiglio/dispensa. Si sono, dunque, rivolti all'architetto CF Style Selina Bertola di Nomade Architettura and Interior Design che ha sviluppato per loro un progetto su misura risolvendo al meglio le richieste anche dal punto di vista delle finiture e degli arredi.
In pratica la ristrutturazione è stata totale ed è partita dal risanamento strutturale dei solai, la rimozione dei soffitti che ha messo in luce la struttura a travi a vista in legno e il totale rifacimento degli impianti.
Il progetto
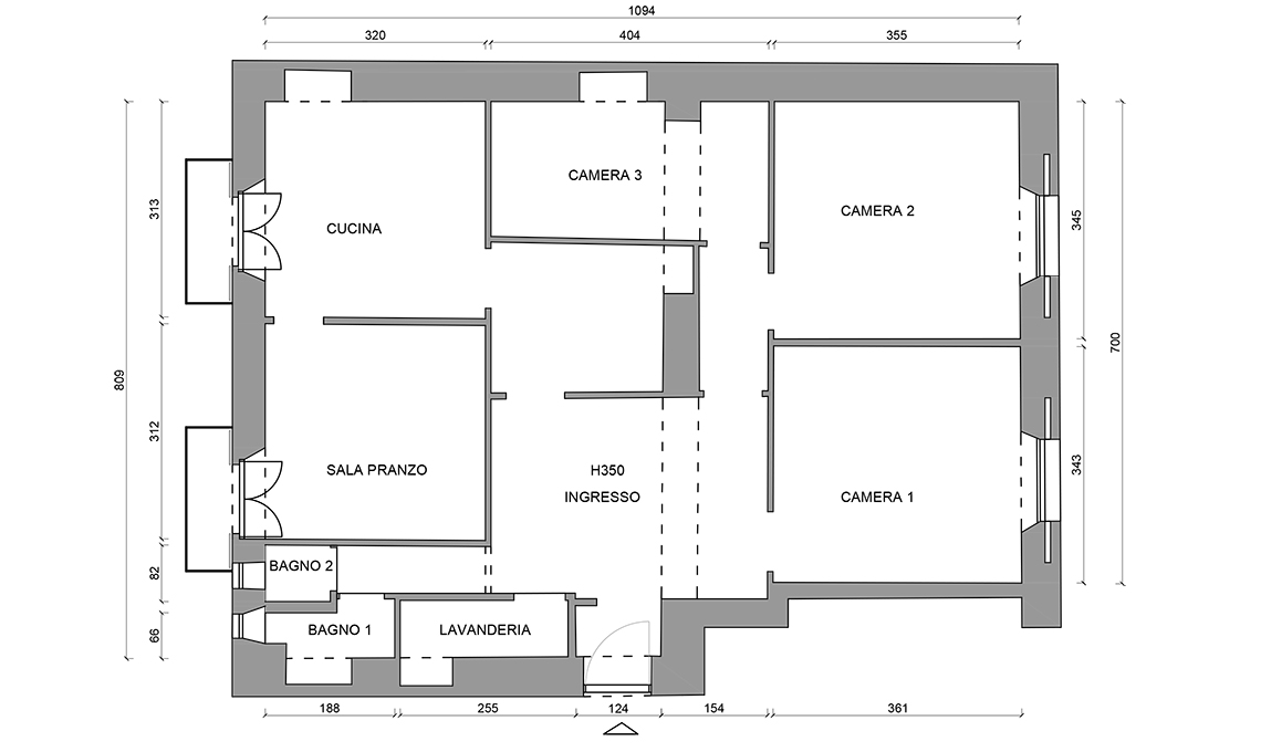
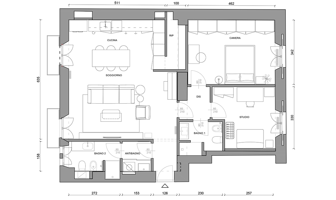
- Dato che l'appartamento era strutturato in tanti piccoli ambienti separati, sono state demolite tutte le partizioni interne (pilastro centrale a parte), ed è stata realizzata un'ampia zona giorno a sinistra dell'ingresso: si incontra dapprima l'area relax e, in fondo, il pranzo e la cucina a vista.
- La cucina è organizzata a 'elle' con la zona operativa sulla parete maggiore e due colonne dispensa e forni sul lato corto. Qui una 'porta' realizzata nello stesso materiale e colore delle ante della cucina consente di accedere al ripostiglio/dispensa che si trova, dunque, tra la cucina e la camera da letto padronale.
- In soggiorno sono state recuperate le travi in legno a vista del soffitto che vengono richiamate dal parquet a terra in un'essenza bionda: questi due elementi scaldano molto l'atmosfera di questo ambiente giocato, negli arredi, tutto su nuances neutre e fredde.
- La camera matrimoniale ha una piccola zona studio e una grande armadiatura a tutta parete ed è caratterizzata dalla parete blu alla quale è appoggiata la testata del letto. Tocchi vintage e scintillanti sono dati dalle lampade con diffusori a sfera e struttura in ottone.
- La seconda camera, per ora, è attrezzata a studio/stanza per gli ospiti con divano letto e scrittoio ma ha le dimensioni giuste per poter ospitare in un futuro un bimbo.
- In entrambi i bagni si è voluto giocare con texture e pattern insoliti sulle superfici verticali: in quello accanto all'ingresso (che è preceduto da una zona lavanderia) l'interno della doccia è rivestita con piastrelle dal sapore vintage a palmette; il bagno della zona notte, invece, ha una maxi doccia, parzialmente incassata, rivestita in grès a listello effetto pietra 3D.
- Grande protagonista della casa è la luce artificiale: diffusa e contrastata è realizzata con lampade di design che danno grande personalità agli ambienti.
