Tutto cambia

Ridisegnare gli spazi a partire dal ripostiglio

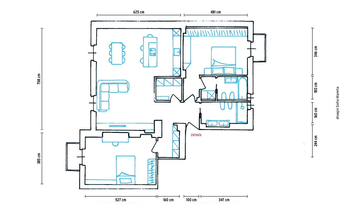
La soluzione trovata dall'architetto è insolita ma efficace: mettendo in mezzo alla casa lo sgabuzzino, il soggiorno con cucina a vista raddoppi, le stanze da letto sono più intime e i disimpegni sono ridotti al minimo.

Una fedelissima lettrice di CasaFacile compra casa a Milano: la suddivisione degli spazi non si adatta per nulla alle sue esigenze: le camere da letto sono all’ingresso, i bagni dal lato opposto, il soggiorno e la cucina in fondo e separati da inutili corridoi. Chiede quindi l’intervento dell’architetto CF style Lorenza Pollavini che, con un progetto ben studiato, riesce a realizzare tutti i desideri e le necessità.

Le esigenze

Un grande living con cucina che diventi il luogo più ‘da vivere’ dell’appartamento, due camere ampie e indipendenti (la figlia è adolescente e in questo modo presto potrà godere della giusta privacy e autonomia), due bagni più funzionali e disimpegni ridotti al minimo.

La soluzione

Il fulcro attorno al quale gira la nuova disposizione dei locali è, incredibile a dirlo, il ripostiglio, che viene piazzato al centro ma la cui presenza resta nascosta, poiché il suo volume è totalmente rivestito in carta da parati, porta filomuro compresa. Il nuovo posizionamento fa sì che la camera padronale – con bagno en suite dotato di vasca e di antibagno con lavanderia – prenda il posto della cucina e sia ora affacciata verso l’interno, per garantire il silenzio nelle ora notturne. L’altro servizio è dotato di doccia e si apre sull’ingresso. La cucina, a vista, ha una parete in linea dove è posizionato il lavello e un’isola con fuochi e il banco snack. La camera della figlia è preceduta da una comoda cabina armadio passante, a sinistra dell’ingresso.

BUDGET*

  • Demolizioni pareti e pavimenti €12.000
  • Costruzioni tramezzi e massetti e assistenze murarie €17.000
  • Nuovi impianti elettrico, idraulico e di condizionamento €42.000
  • Fornitura e posa pavimenti e rivestimenti in parquet (compreso zoccolino) e piastrelle in grès €30.000
  • Fornitura e posa sanitari, vasca, doccia, lavabi e rubinetteria €8.000

Totale (iva esclusa) €109.000

 

* il preventivo si riferisce a questo progetto; l’immobile si trova a Milano.

Testi

Elena Favetti

Progetto

Lorenza Pollavini

Ti potrebbe interessare