Strisce a led GSTT008N dimmerabili e lunghe 5 metri, composte da 128 LED per metro montati su un circuito flessibile e adesivo; i rolli possono essere tagliati ogni 8 LED (7 cm) in base alle esigenze [Gea Luce].
Portafinestra alzante scorrevole ST ALUSLIDE PRO in alluminio con montante da 10 cm e un alto livello di isolamento termico (Uw=1.4), grazie alla vetrocamera con spessore massimo di 42 mm [Oknoplast, su progetto].
Armadio tailor made Alfa con anta battente: si può personalizzare con soluzioni su misura, anche a giorno, e può essere a incasso, a muro o angolare. La versione Intono si può tinteggiare nello stesso colore delle pareti [Novamobili].
Grès effetto seminato della coll. Le Veneziane, spessore 10 mm (finitura naturale, lucida e grip) disponibile fino al formato 60x120 cm in 6 varianti di colore; in foto, Cannaregio [Cerim].
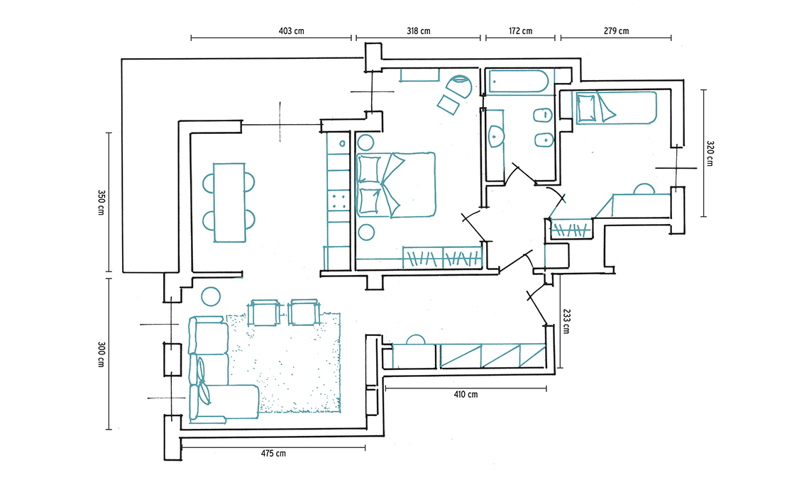
Tanto spazio sprecato in disimpegni e una pessima distribuzione: con una rivoluzione totale un appartamento Anni '60 acquista due stanze in più e un grande living super luminoso con cucina a vista.
La distribuzione originaria dell’appartamento era molto confusa: in fondo al lungo ingresso c’era la camera da letto, mentre alla sua destra, attraverso due inutili disimpegni, si raggiungevano il bagno, la cucina e il soggiorno (questi due affacciati su un terrazzo a elle).
La richiesta dei padroni di casa, una coppia con un figlio piccolo, è stata di ampliare e raggruppare la zona notte ricavando anche una cameretta, creare un angolo studio e sfruttare al meglio lo spazio evitando sprechi.
La soluzione
Tutte le stanze hanno cambiato posizione: la cucina ora è al posto del soggiorno che, a sua volta, si trova nella ex camera: la zona cottura e il pranzo fanno parte del living, schermati da un’apertura a portale, così l’area giorno raddoppia e diventa molto luminosa. Dove c’era il bagno è stata ricavata la cameretta, al posto della cucina c’è quella matrimoniale; tra le due stanze da letto è stato ricavato il bagno. L’ingresso è diventato un ambiente doppiamente utile, con armadio e zona studio.
BUDGET*
Demolizione di tramezzi, impianti e infissi (compreso il trasporto in discarica) €3.000
Realizzazione di tramezzi, massetti, intonaci e assistenze murarie €9.000
Rifacimento impianto elettrico €2.500
Rifacimento impianto idrico sanitario €1.500
Realizzazione opere in cartongesso €3.500
Fornitura e posa pavimenti, rivestimenti e pitture €7.500
Fornitura e posa sanitari, rubinetterie, porte e opere di finitura €4.000
Totale (iva esclusa) €31.000*
*Il preventivo si riferisce a questo progetto; l’immobile si trova a Roma.