Tutto cambia

Total revolution: da 2 a 3 locali grazie a una parete curva

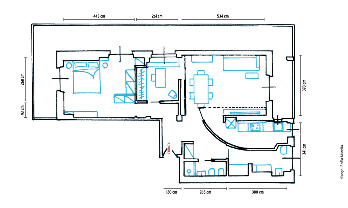
Siamo abituati a pensare alle case come a sequenze di stanze e di linee rette. Ma a volte rompere gli schemi da esiti sorprendenti, come qui, dove una parete curva ricava da un lato lo spazio per la cucina e dall'altro ben due bagni!

Un classico appartamento Anni ’70: soggiorno e camera ampi e affacciati sul terrazzo, bagno e cucina (dalla parte opposta rispetto alla zona giorno) lunghi e stretti. Una giovane coppia, innamorata del piano alto e dello spazio outdoor, ha contattato la nostra architetta CF style Elvira Saja che, insieme all’interior designer Maria Vittoria Saja, ha proposto di rivedere, oltre agli impianti vecchi, la distribuzione degli ambienti: zone notte e giorno meglio definite, uno studio per lavorare da casa, un bagno e tanti armadi in più.

La soluzione

Per sfruttare del tutto lo spazio disponibile e far fluire al meglio la luce che entra abbondante grazie al triplo affaccio, sono stati abbattuti tutti i tramezzi e scambiati sia camera e soggiorno, sia bagno e cucina, così da creare un’ampia zona giorno, servita direttamente dalla cucina, e in cui è stato ricavato uno studio che si apre sul living e sull’ingresso. Ma l’idea più originale del progetto è nella zona giorno: inserendo una parete curva si è ricavato uno spazio agevole per utilizzare la piccola cucina; mentre il lato convesso della parete definisce gli spazi dei bagni e di una piccola nicchia attrezzata a guardaroba per i cappotti. Dove prima c’era la cucina, è stato possibile realizzare due bagni: quello principale ha la doccia e i sanitari all’interno di nicchie; l’altro, di dimensioni minime, è dedicato agli ospiti. In camera, infine, è stata inserita un’armadiatura a L, più un contenitore a colonna davvero funzionali.

BUDGET*

  • Demolizione tramezzi in muratura piastrelle e massetti €8.700
  • Realizzazione tramezzi sottofondi rasature e intonaci €17.000
  • Tinteggiature e controsoffitti €7.000
  • Nuovo impianto elettrico compresa assistenza muraria €9.500
  • Nuovo impianto idraulico e di riscaldamento compresa assistenza muraria €13.000
  • Nuovo impianto di condizionamento con fornitura e posa in opera di macchine e split più assistenza muraria €4.500
  • Fornitura e posa porte €3.500
  • Fornitura e posa parquet e battiscopa €6.300
  • Fornitura e posa piastrelle in ceramica per pavimento e pareti bagni più pareti cucina €8.500

Totale (iva esclusa) €78.000

 

* il preventivo si riferisce a questo progetto; l’immobile si trova a Milano.

 

Testi

Elena Favetti

Progetto

Elvira Saja

Ti potrebbe interessare