La portafinestra a libro Domal Garden TB75 consente di aprire completamente l’infisso
impacchettando’ le ante ai lati, all’interno o all’esterno [Camel Diva].
2
L’armadio a muro tailor made è facile da realizzare con il sistema Miria Filomuro a tutta altezza, coordinabile con la
porta Filomuro, entrambi tinteggiabili a piacere [Gidea].
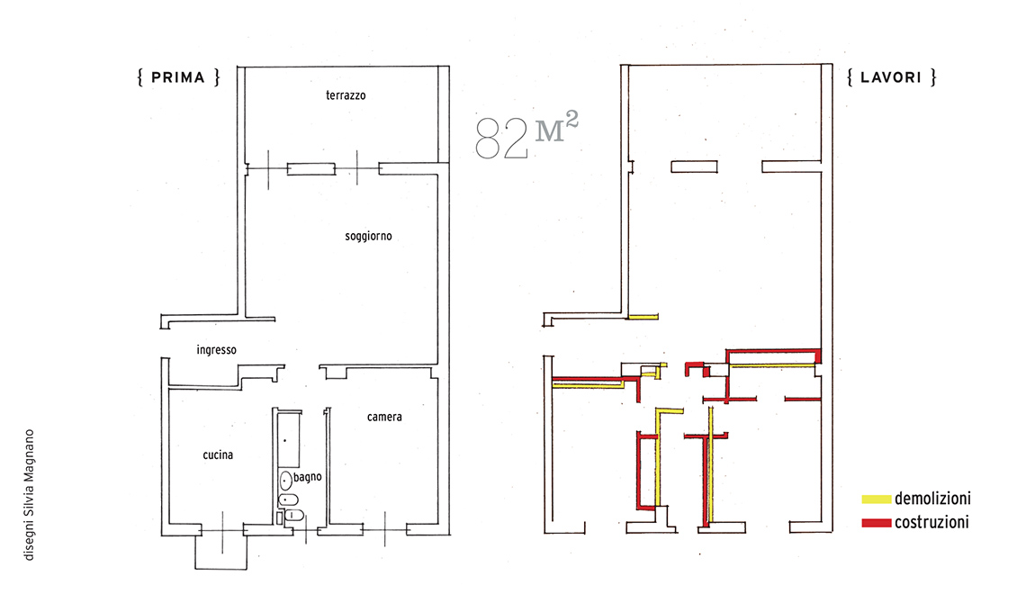
Un bilocale con grandi ambienti si trasforma in appartamento per una giovane coppia. La richiesta? Più posto per lo storage. La soluzione? Creare nicchie a scomparsa per guardaroba e lavanderia.
Un bel terrazzo, la giusta metratura e tanta luce: queste le caratteristiche che hanno colpito al cuore una giovane coppia milanese alla ricerca della prima casa. Tra le loro esigenze, c’erano anche la necessità di avere una seconda camera, un bagno in più e tanto spazio da dedicare allo storage.
La soluzione
Il grosso degli interventi ha riguardato la zona notte: la cameretta-studio-stanza ospiti è stata ricavata dove c’era la cucina, il bagno esistente è stato ridimensionato e, rubando una striscia di 45x260 cm al soggiorno e una da 1 metro alla camera, è stato realizzato il bagno privato della stanza padronale. Infine, spostando le porte d’ingresso alle camere si sono ricavate le nicchie per gli armadi a muro a tutta altezza (un terzo armadio, per i cappotti e gli accessori, è in ingresso), così come nel disimpegno ora ci sono due vani (uno a uso lavanderia, l’altro a ripostiglio). Nel living, la zona cucina è visivamente separata dal salotto con una libreria a doppio affaccio e alta fino al soffitto, con vano tv.
La soluzione salvaspazio: La parete attrezzata della cucina, con zona elettrodomestici e lavaggio, è più lunga della penisola. Dietro la colonna frigo si è realizzato un vano contenitore multiuso, con anta a filo della spalla della colonna stessa. La penisola della cucina termina con una libreria alta fino al soffitto che ha la doppia funzione di mascherare la zona cottura a chi è in salotto e di ospitare l’angolo tv.
BUDGET
DEMOLIZIONI E RIMOZIONI: murature, sottofondo, rivestimenti, impianti, infissi e porte €5.000
COSTRUZIONI: murature con intonaci e rasature, sottofondo, posa rivestimenti, fornitura e posa falsi telai porte e infissi, controsoffitti, tinteggiature €17.000
IMPIANTO IDROSANITARIO: realizzazione impianto e punti acqua per 2 bagni e cucina, fornitura e posa scaldabagno a gas, scaldasalviette e caloriferi, tubazioni gas per cucina, fornitura e posa sanitari, rubinetti e lastre in grès pareti e pavimenti, assistenze murarie €14.000
IMPIANTO ELETTRICO: realizzazione impianto con quadro e punti luce (compresa fornitura e posa frutti e placche), led e faretti controsoffitti, motorizzazione tapparelle, assistenze murarie €6.000
PARQUET: fornitura e posa prefinito incollato e zoccolini €7.000