Pavimento in parquet prefinito in rovere Palais H2O a spina ungherese in finitura spazzolata/verniciata, con incastri maschio-femmina, da posare a colla [Iperceramica].
Rivestimento da esterno della collezione Percorsi Extra in grès porcellanato effetto pietra per interni ed esterni, qui nella variante Pietra di Vals [Keope].
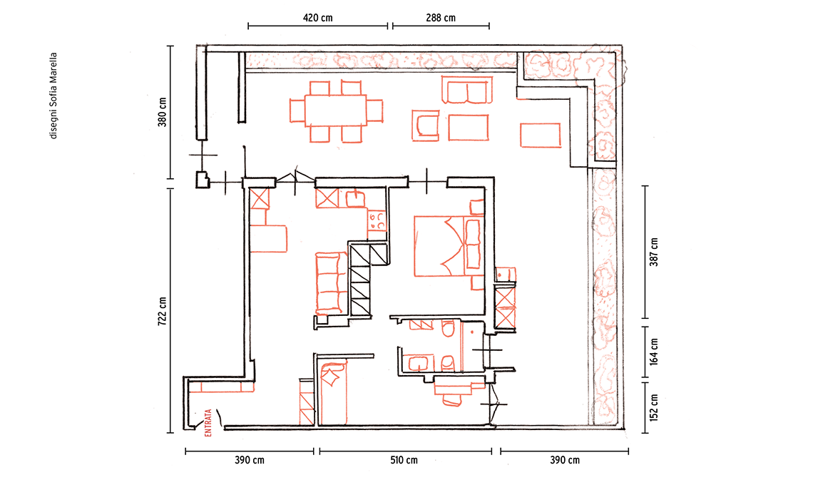
Una Sapiente ripartizione degli spazi riesce a ricavare la terza stanza in un bilocale di soli 55 metri quadri! E l'ampio terrazzo diventa un vero giardino, da vivere in tutte le stagioni.
Un appartamento al piano terra di un edificio Anni ’50, in condizioni deteriorate perché mai ristrutturato. La distribuzione, le finiture e i materiali erano superati: ingresso e corridoio bui, soggiorno piccolo, camera da letto grande e cucina lunga e stretta... ma il giardino esterno era proprio intrigante, così il nuovo proprietario chiama l’architetto CF style Susanna Rao per la ristrutturazione.
Le esigenze? Un living più luminoso e la creazione di una seconda camera da adibire a studio/ stanza ospiti.
La soluzione
I vincoli sono unicamente un pilastro centrale e le canne per le tubature tra bagno e cucina: il progetto prevede di eliminare tutti i tramezzi (tranne un muro del bagno) per ridisegnare gli spazi in modo più funzionale. La parete tra camera e living (che ora ingloba anche ingresso e ex corridoio) è stata ricostruita con una doppia nicchia: in camera accoglie un grande armadio, in soggiorno la zona operativa della cucina, che rimane nascosta alla vista di chi entra. L’ex cucina, ridimensionata, è diventata lo studio ideale per lavorare da casa e il bagno adesso ha una maxi doccia. Il giardino è diventato un vero e proprio prolungamento della casa, con zona pranzo/relax e una lavanderia in corrispondenza del bagno. L’impatto degli alti muri di confine è stato mitigato realizzando vasche per piante e rampicanti, più una panca in muratura; con la nuova pavimentazione è stato eliminato un gradino che girava attorno alla casa e disturbava l’uso del giardino.
BUDGET*
Demolizioni, rimozione pavimento e porte, creazione tracce compreso trasporto in discarica €7.700
Realizzazione tramezzi in forati con intonaco e rasatura, massetti e rasatura vecchi intonaci compresa armatura rete porta intonaco in fibra di vetro €8.680
Creazione controsoffitto e paretine armadi in cartongesso €1.500
Fornitura e posa parquet e zoccolino €7.260
Fornitura e posa pavimenti e rivestimenti bagno in grès €1.100
Fornitura e posa 4 porte scorrevoli e porta d’ingresso € 4.470
Impianto idraulico bagno e cucina compresa fornitura e posa sanitari e arredo bagni €3.500
Impianto elettrico €5.000
Condizionamento canalizzato €4.800
Impianto termico a pavimento compresa caldaia €7.000
Tinteggiatura €5.000
Sistemazione giardino €9.490
Totale (iva esclusa) €65.500
* il preventivo si riferisce a questo progetto; l’immobile si trova a Roma