Carlotta, nostra assidua ed entusiasta lettrice, ci chiede un progetto per rifare la casa in prospettiva di una nuova vita.
La nostra lettrice Carlotta ci racconta: “Nostra figlia, che già da qualche anno studia all’estero, ha trovato un lavoro e ci ha comunicato che rimarrà lì. Noi, ‘per consolarci’, abbiamo deciso di ristrutturare la nostra casa di sempre. Le modifiche principali che sognamo da tanto, non sono poche: camera sul lato cortile, più silenzioso; bagno più comodo con doccia e lavatrice; soggiorno e tavolo da pranzo più grandi per ricevere gli amici…e un angolo studio”.
Ecco, guarda come diventerà la tua ‘nuova casa’ con il nostro progetto! Ci sono degli spunti da copiare anche per chi ha un bagno lungo e stretto o una cucina da organizzare su due fronti paralleli. E in più c'è un'idea vincente per tutti i fortunati che hanno i soffitti alti.
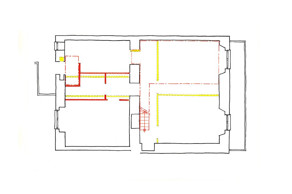
Si tratta di una ristrutturazione totale, che prevede la demolizione di tutti i tavolati interni, lasciando solo il muro portante centrale. Dovrete quindi svuotare la casa da tutti i mobili (esistono box e depositi di varie metrature da affittare anche solo per poche settimane) e trasferirvi altrove per la durata dei lavori.
Stanza per stanza, la casa si trasforma:
Ecco, guarda come diventerà la tua ‘nuova casa’ con il nostro progetto! Ci sono degli spunti da copiare anche per chi ha un bagno lungo e stretto o una cucina da organizzare su due fronti paralleli. E in più c'è un'idea vincente per tutti i fortunati che hanno i soffitti alti.
Si tratta di una ristrutturazione totale, che prevede la demolizione di tutti i tavolati interni, lasciando solo il muro portante centrale. Dovrete quindi svuotare la casa da tutti i mobili (esistono box e depositi di varie metrature da affittare anche solo per poche settimane) e trasferirvi altrove per la durata dei lavori.
Stanza per stanza, la casa si trasforma:
- Sul lato esposto a est, dove sono allineati camera e servizi, si parte dal centro allargando il bagno di cm 30 (cm 15 per parte) e dividendolo in tre zone: dal soggiorno si accede all’antibagno (1), con armadio a tre ante e porte di accesso al bagno e alla camera; segue il bagno (2), di cm 160x160, con un mobile con lavabo e lavatrice e di fronte i sanitari; e in fondo una nicchia per la doccia (3) di cm 80x100.
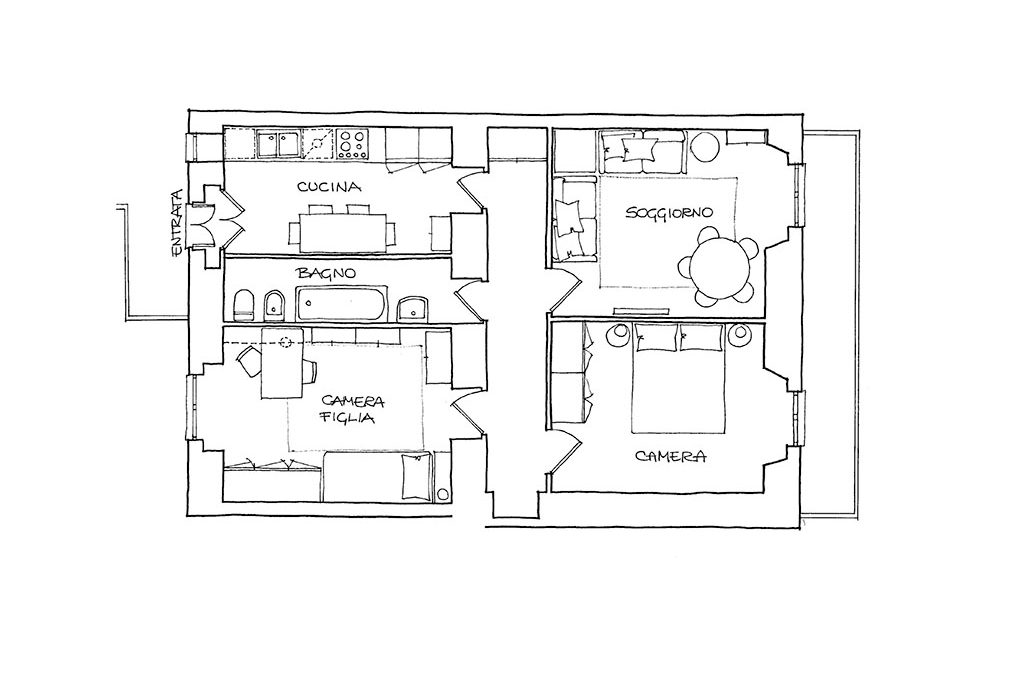
- La camera della ragazza diventa la vostra, più silenziosa per l’affaccio sul cortile, con armadio a 6 ante.
- La cucina, più stretta di cm 15, ha una parete attrezzata lunga cm 420, più 2 colonne frigo e dispensa nell’angolo di fronte. Il tavolo più piccolo, solo per voi due. Accanto alla porta d'ingresso c'è una nicchia gemella e adiacente a quella della doccia, per l’armadio ospiti.
- La zona giorno, esposta a sud ovest, è aperta, ma suddivisa in zona pranzo e zona relax, con 2 ampi divani (uno trasformabile in letto), 2 poltroncine e un piccolo scrittoio.
- La sorpresa è un soppalco per la zona studio! Solo 12 mq, raggiungibile con una rampa di scala lineare, per ospitare una scrivania e un sommier (o chaise longue) per sdraiarsi a leggere. Una mega libreria a moduli quadrati, aperta sui due lati, crea una parete “leggera” che separa la zona divani dal pranzo.
