La finestra KF410, grazie al sistema I-tec Ventilazione con filtri, ti fa ricambiare l’aria di casa anche a infisso chiuso, evitando dispersione di calore ma eliminando l’umidità [Internorm].
Lo Split Vitoclima 200-S Comfort (in classe A++) ha il modulo di sanificazione integrato a plasma freddo che consente
di ridurre fino al 90% la presenza di agenti patogeni nell’ambiente, in sole 2 ore [Viessmann].
La porta Exitlyne, disponibile anche
scorrevole, qui con telaio Concept: ha finitura Iride che esalta le venature del frassino spazzolato a effetto ultraopaco. Iride utilizza vernici a base d’acqua, con
materie prime rinnovabili atossiche ed ecologiche, ridottissimo contenuto di VOC e senza formaldeide [Ferrerolegno].
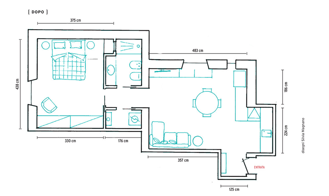
Living troppo piccolo e camera da letto troppo grande: la pianta di questo mini appartamento è stata rivoluzionata, ricavando stanze più vivibili, anche in pochi metri quadrati.
Un appartamento di due locali, situato in un tipico edificio di ringhiera vecchia Milano, caratterizzato da spazi irregolari e poco sfruttabili: una vera sfida per lo studio di architettura CF style GruppoTre! Ci racconta l’architetto Chiara Rizzo dello studio: «I difetti più evidenti? La camera da letto era sproporzionata rispetto ai metri quadrati totali e di conseguenza il soggiorno con cucina era piccolissimo; in più, il bagno (che si trovava all’ingresso) aveva una forma a Z davvero poco pratica».
La soluzione
Si è deciso di demolire tutti i tramezzi interni per poter riorganizzare gli spazi in modo più pratico e funzionale. Per facilitare la disposizione di tutta la parte impiantistica (e spostare il bagno), è stato elevato il pavimento di 10 centimetri rispetto al piano iniziale. Là dove c’era il bagno è stato creato un comodo e appartato angolo cottura che, così, lascia tutto il resto dello spazio alla zona pranzo e al living. La camera da letto, ridimensionata, è ‘filtrata’ dalla zona giorno tramite un disimpegno che conduce anche al bagno e al ripostiglio, in cui trova posto anche la lavanderia. Il nuovo bagno con maxi doccia è cieco (negli appartamenti al di sotto dei 70 mq è consentito) e per dargli luce naturale è stata ‘aperta’ una finestra fissa sulla parete di confine con la camera.
BUDGET*
Opere edili comprese le demolizioni €15.000
Costruzione pareti in mattoni forati €4.000
Ribassamenti in cartongesso €2.000
Tinteggiatura €1.000
Realizzazione nuovo impianto elettrico €3.900
Realizzazione nuovo impianto idrico €6.500
Fornitura e posa 2 split aria condizionata €2.000
Fornitura e posa caldaia €800
Fornitura e posa parquet + battiscopa €6.000
Fornitura e posa rivestimenti bagno e cucina€2.000
Sanitari e rubinetteria €2.200
Sostituzione serramenti €6.000
Totale (iva esclusa) €51.400
*il preventivo si riferisce a questo progetto; l’immobile si trova a Milano.