Sfruttando una canna fumaria già esistente, è stato possibile installare un camino dal profilo curvo e con i mattoni a vista effetto grezzo, che spicca sia sulle pareti bianche sia sul pavimento scuro.
In soggiorno è stato restaurato l’esistente rivestimento in graniglia degli Anni ’50, ‘inserendolo’ nella nuova pavimentazione in parquet scuro. Ora questo ‘tappeto’ è
il vero protagonista, abbinato a mobili vintage o in stile Fifties.
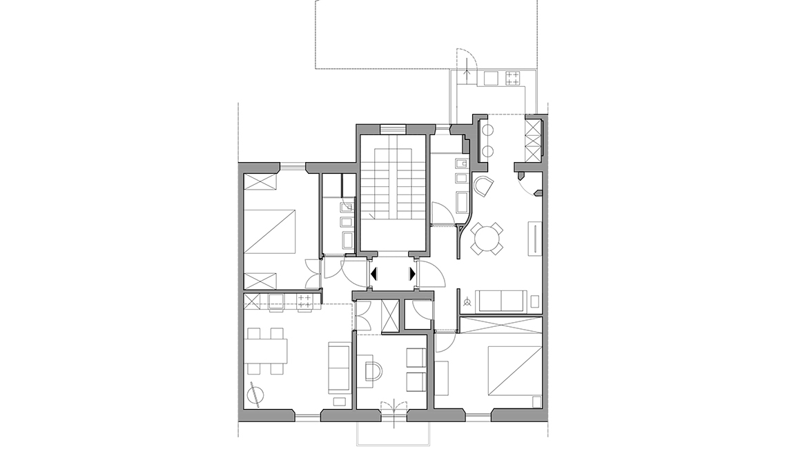
Un appartamento di famiglia di 100 mq è stato diviso in bilocale + trilocale (da affittare): sfruttando gli impianti esistenti, sono stati inseriti un bagno e una cucina in più
La richiesta era quella di ottenere due appartamenti da dare in affitto da un immobile di circa 100 mq del dopoguerra, di impianto classico con ampio ingresso centrale, due camere da letto, uno studio, soggiorno, pranzo con angolo cottura e bagno.
Il Progetto
● L’ingresso è stato ridimensionato, per creare un doppio accesso e modulare gli spazi rispettando le normative vigenti. Sono stati ridotti i disimpegni ed è stata data una maggiore metratura alle camere.
● Entrambe le abitazioni sono provviste di angoli cottura direttamente ricavati nelle zone giorno: quello del bilocale sfrutta la veranda già presente, che è stata ripristinata inserendo un nuovo piano di lavoro in travertino intagliato, che ospita il piano cottura e il lavello.
● Il bagno del trilocale è stato collegato a una colonna di scarico già presente nello stabile. Si è così evitata l’installazione di una pompa o di un trituratore, ma anche il rischio di avere pendenze inadeguate.
●Nei vari ambienti erano presenti, a terra, graniglie degli anni ’50 che sono state mantenute, valorizzate e reinserite nel nuovo progetto, integrando il pavimento originale con un nuovo parquet di rovere tinto nero e creando eleganti ‘tappeti’.
Vuoi anche tu una consulenza dello Studio A+5 di Roma? Clicca qui.