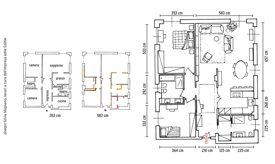
OPEN ZOOM
1/23
«L’eleganza senza tempo del nero è esaltata da pattern e volumi geometrici in colori caldi e avvolgenti, da trame e tessuti preziosi».
OPEN ZOOM
1/23
Sullo scrittoio Pebble Desk [Living Divani, cm 133x53x75h da € 3.157], lampada Twist [Riflessi € 317,20]
e vaso Decor Grey [da Nap Atelier
€ 100]. Sedia vintage [da Vecchio Mio] rivestita in tessuto Opie Blush [Romo Fabrics € 110/m], armadio Retro Webbing Cabinet [HK living].
OPEN ZOOM
1/23
Sedia Aurora Bacchettata in metallo [Cantori], tappeto Virtuose [Maisons du Monde, cm 140x 200 € 229] e plafoniere TR Bulb [Menu € 269,95].
OPEN ZOOM
1/23
Divani New York Suite con tessuto Creta News [Saba Italia, in vendita da Saraceni]. A parete, appliques Holo in ottone [Fest Amsterdam, cm 42x42 € 299 cad] e quadro Unlimited2018 [Ilaria Franza]. Sul tavolino tazza Retro [Easy Life € 40/4 p.zi].
OPEN ZOOM
1/23
Sul divano 3 posti, cuscini Bear Cushion [Kirkby Design, cm 50x50 € 329,50], Carrè [L’Opificio, cm 43x43 € 126], Bakerloo Blossom [Kirkby Design, cm 50x50 € 119] e Geometric [HKliving]; sull’altro, cuscini Giardino Salvia [cm 45x45 € 45] e Tea Salvia [cm 30x 50 € 40] di [Nap Atelier] più il plaid Puro [Christian Fischbacher]. Sotto la finestra, panca B.T.H. Flats 3 [Detjer, cm 115x 40x45h€450] e piantana Meridian in metallo con bulbi satin [Riflessi € 793].
OPEN ZOOM
1/23
Libreria Puntello in metallo e ottone [Officina84]. Tappeto Suite SE332 Aqua [Carpet Edition, cm 200x300 € 2.049,60], pouf Mini Salvia [Nap Atelier, ø cm 43x 44h € 270], poltrona a dondolo Aurora [Cantori].
OPEN ZOOM
1/23
Tra le finestre, credenza vintage Anni ’50 di Vittorio Dessi [Carrozzeria900] con vasi nero Kali [Tognana € 57,20], in vetro con manici colorati e caraffa fumé [Coincasa €29,90 e €12,90]. Piante e cachepot [Viridea].
OPEN ZOOM
1/23
Tavolo ovale allungabile vintage Mackintosh, fuori produzione [Cassina] con sedie vintage [da Vecchio Mio] rivestite con tessuto Opie nel colore Blush [Romo Fabrics € 110/m]; piantana regolabile Flex Floor [Seyvaa].
OPEN ZOOM
1/23
Cucina Bluna in laccato antracite con top e schienale in grès [Binova]; sulla penisola, centrotavola [Antonino Sciortino] e vaso [da Nap Atelier € 100]. Sul tavolo, vasi [EDG Enzo De Gasperi] più bicchiere e caraffa [Coincasa], sgabelli Wire Bar Stool [HKliving]. Sospensione TR Bulb Suspension Frame [Menu € 999,95].
OPEN ZOOM
1/23
Coperchio ABTC in mogano e caffettiera Lady Anne [KnIndustrie], piatti Rainforest [Easy Life da ø cm 19 da € 15].
OPEN ZOOM
1/23
Il tavolo è apparecchiato con tovaglia Riviera in lino [cm 170x310 € 430] e tovaglioli Lino Filo [cm 45x45 € 12] di [Borgo delle Tovaglie], posate Zest e moka [KnIndustrie], piatti, piattini, ciotole e portata [Easy Life], bicchieri e brocca [Coincasa] e ciotola [Les Ottomans ø cm 22 € 36].
OPEN ZOOM
1/23
Letto Allan con contenitore Folding Box [Noctis, cm 213,5x236x105h € 2.340]. Cuscini Carrè T multicolor [cm 43x43 € 126] e Carrè in velluto [cm 43x43 € 119] tutto [L'Opificio]. Sui comodini vintage, lampade TR Bulb [Menu € 370 cad]. Tappezzeria Petite Tile Duck Egg [Cole & Son distr. da B&B Distribuzione] e sospensione Molecola 275.09 [Il Fanale].
OPEN ZOOM
1/23
Il letto è vestito con copripiumino e federe in lino Pure Salvia [Borgo delle Tovaglie] più telo Funky acquamarina [L'Opificio, cm 135x 135 € 270].
OPEN ZOOM
1/23
Armadio angolare in frassino bianco [Moretti Compact], sulle mensole vasi ottanio [QVC], radio Model One BT [Tivoli Audio € 199] e set di vasi Matt White Porcelain [HKliving]; pouf George capitonné [Cantori].
OPEN ZOOM
1/23
Sulla scrivania vintage [Vecchio Mio], scatola, caraffa e bicchiere [Coincasa], tazzina Jungle [Easy Life] e cucchiaino Zest [KnIndustrie], sgabello Nina [Living Divani, ø cm 37x39h da € 750]. pianta [Viridea].
OPEN ZOOM
1/23
Sul mobile Opera in frassino rosmarino con top a due lavabi integrati in Laminam Savoia Grigia [Arcom], saponi e prodotti skincare [Womo]. Specchio in metallo dorato Matthew [Maisons du Monde, cm 165x102 € 199], asciugamani Bauhaus Stone Salvia e Stone Toile de Jouy [Borgo delle Tovaglie, da cm 40x60 da € 24 cad]. Appliques Game e sospensione Twice in ottone [House Doctor], statuetta Pappagallo in ceramica [Les Ottomans]. Sulla finestra, set di vasi [HKliving].
OPEN ZOOM
1/23
A parete e pavimento, piastrelle Eternity in grès effetto marmo Statuario [Panaria], smalto opaco codice colore L0.04.65 [Sikkens].
OPEN ZOOM
1/23
Nell’antibagno, idropittura codice colore D6.03.77 [Sikkens]; a terra, piastrelle Trilogy Sand Grey Soft [Panaria]; sull’armadio, tappezzeria Chinoiserie Chic Pearl Gray [Rebel Walls]; plafoniera in ottone [Etsy].
OPEN ZOOM
1/23
Sul mobile in frassino bianco Opera [Arcom], porta-candele Winter Palm [Les Ottomans da € 95], dispenser, portasapone e portacotone [Croff da € 9,99 cad] e prodotti beauty [Womo]. Asciugamani [Borgo delle Tovaglie], specchio [Westwing], luci [House Doctor].
