Durante la ristrutturazione, tolte le piastrelle del pavimento per fare le tracce degli impianti è venuto alla luce l’originale pavimento in graniglia che gioca con bianco, senape e terracotta... «Questo ha cambiato la palette
di colori saturi che avevo in mente» dice Omar. Così le nuance sono più soft, anche per dare risalto ai mobili vintage in teak e metallo e nuovi in tinte calde come il divano mattone.
«La graniglia d’epoca ha una dominante di colore giallo: per ‘spegnerla’, è perfetto
il contrappunto con un blu ottanio desaturato. Il rosa carico e il mattone, invece, giocano di armonia».
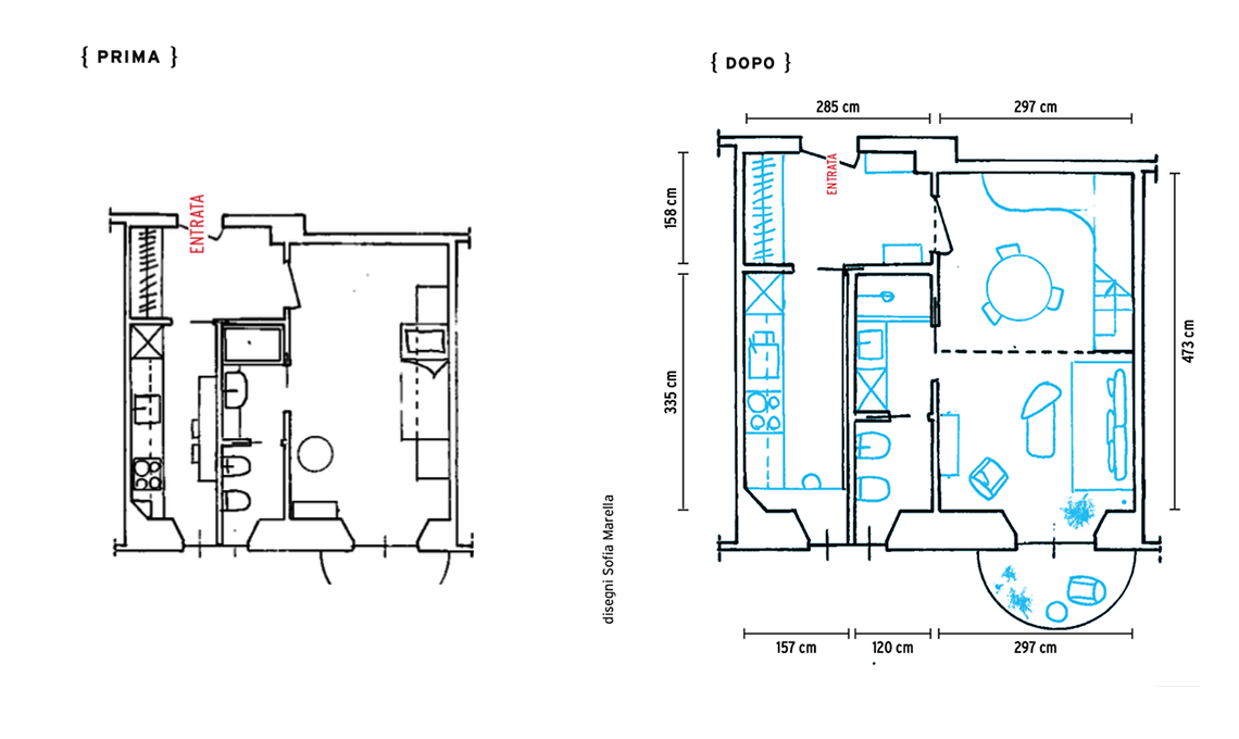
Il monolocale era arredato con l’armadio a ponte sopra un letto singolo: l’ambiente sembrava una stanza da letto e Omar voleva che in qualche modo le zone notte e giorno fossero distinte.
Il divano Brick componibile
si trasforma in letto singolo con l’aggiunta del pouf, entrambi realizzati su disegno [Villa Salotti, cm 170x80x85h e cm 30x80x45h il pouf]; plaid Malfi Fumo in lana e seta [Society Limonta, cm 160x240] e cuscino d’arredo [Élitis]. Al centro, sul tavolino Lövbacken marrone [Ikea, cm 77x39x51h], libro illustrato Inside Milan [Vendome Press] e lampada wireless Poldina Pro Micro in grigio scuro [Zafferano]. A parete, scultura Cubo spiaccicato in ferro [Antonino Sciortino] e poster con grafica colorata [Simon Thegraphic]. Alla finestra, tenda Dytåg in lino [Ikea, cm 145x300], pareti, soffitto, porte e zoccolini sono dipinti con idropittura nel colore RAL9018 realizzato da [Sikkens].
Il divano è un prototipo (presto sarà in produzione) ed è composto da un modulo seduta, un rullo asportabile, cuscini dello schienale removibili e un pouf che, riposizionati, danno vita a un letto singolo per gli ospiti. In linea con i colori della casa, il tessuto bouclé è mattone e rosa.
Sul tavolino, piatto La finestra sul cortile FC D2 collezione Grand Tour [Vito Nesta], coltello Conca, design Gio Ponti [Sambonet] e tovagliolo Nap Jard albicocca [Society].
Omar è appassionato di design e di arredi Anni ’50: la libreria lasciata dal vecchio proprietario, quindi, è diventata il punto di partenza per acquistare altri pezzi d’epoca come tavolo e sedie, che poi ha fatto restaurare.
Sulla poltroncina vintage laccata nero lucido con cuscino in pelle bianco, cuscino Clio Renard [Élitis]; sulla libreria vintage restaurata da [Vecchio Mio], vasi e lampada in vetro vintage [Radisa Gallery] come i calici nella vetrina, orologio Tic&Tac nero [Kartell] e lampada Lampadina nera [Flos], lampade da terra Toio e Parentesi di [Flos].
Per sfruttare al meglio un monolocale bisogna organizzare ogni centimetro con contenitori funzionali e che aiutino a fare ordine. E guarda il pavimento: sotto le mattonelle moderne sono state ritrovate e recuperate le graniglie Anni ’30!
Eliminato l’armadio che
ora è nell’ingresso, nel living serviva un contenitore multifunzione per stoviglie, bicchieri e tessili, ma anche un piccolo ripostiglio e l’archivio di riviste e cataloghi di Omar (che da sempre colleziona CasaFacile!). La soluzione? Una scaffalatura chiusa da un tendaggio in velluto (molto rétro) che si sviluppa
ad angolo e sotto la scala.
Tessuto per la tenda realizzata con tessuto in velluto [Romo], lampada Moka in nero [AM.PM da La Redoute]. Nella nicchia dipinta con smalto colore D2.15.55 [Sikkens], lampada Minipipistrello [Martinelli Luce], statuina Umarell fluorescente [Superstuff]. Mano in ceramica [Vito Nesta], libri Gio Ponti e Ingressi di Milano [Taschen].
Sul tavolo acquistato come le sedie su [Subito] e restaurato da [Vecchio Mio], piatti e coppette collezione Junto nei colori Dune e Alabastro [Rosenthal, ø cm 27 il piano grande, ø cm 22 il piano piccolo e ø cm 12 la coppetta], posate [Sambonet], bicchieri Quaderni [KnIndustrie], tovaglioli [Society], calici Point [Schönhuber Franchi ], alzata e coppa Madame [Sambonet], brocca [Radisa Gallery].
«Non volevo un divano letto da fare e disfare tutti i giorni», dice Omar. «Volevo avere la sensazione di non dormire in soggiorno. È nata così, insieme a Vanessa, l’idea di creare un letto a soppalco (l’altezza lo consentiva). Da sdraiato lo sguardo va fuori dalla finestra e tutto quello che c’è sotto di me, magicamente scompare». La struttura in metallo e lamiera fissata con
viti e bulloni è totalmente smontabile, quindi non richiede permessi perché non aumenta la cubatura della stanza.
Letto a soppalco realizzato su disegno con struttura in tubolare di ferro verniciato a polvere RAL9018, piano in lamiera forata e scala in lamiera presso-piegata [Martino 1930, cm 297x250x220h]. Testiera del letto rivestita in tessuto di [Romo]; copripiumino Incontri Petrolio di [Fazzini] come le federe Incontri Grigio, cuscino Naïs – Pain Brûlé [Élitis], plaid geometrico Lia [Markslöjd da H&M home], comodino pensile [Vecchio Mio], scendiletto realizzato su misura a telaio [Kasthall]. Sul vassoio vintage, tazza [HKliving], piattino [Rosenthal] e cucchiaino [Sambonet]. Sulle scatole, lampada in vetro vintage, macchina per scrivere Valentine vintage [Olivetti], orologio Tic&Tac [Kartell], nella cornice, poster Manifesto alla Carriera. Omaggio della grafica italiana ai Maestri del Compasso d’Oro [ADI Design Museum].
Pareti e soffitto sono dipinti con idropittura codice colore S0.05.45 come lo smalto che riveste l’armadio [Sikkens]. Sulle ante scorrevoli dell’armadio realizzato su disegno da [Falegnameria F.lli Casali], quadro Bestiario [Umberto Chiodi], sedia in plastica rosa, cuscino in ecopelle e base in metallo nero [Sklum], sospensione Varmblixt [Ikea].
Omar ne aveva una simile nella casa precedente e qui l’ha voluta a tutti i costi: la cucina T12 è la prima cucina in legno e melamminico presentata da Boffi al primo Salone del Mobile nel 1962, immaginatevi la meraviglia quando l’ha trovata su Subito! Ne ha fatto rifare i piani di lavoro e ha aggiunto degli scaffali in alto: ora è perfetta!
Pavimento e parete rivestiti in lastre in grès Grand Marble Lux Ghiara minuta Mix finitura Lux [Marazzi]. Apparecchio TRIOVXNT/1 con piano cottura in vetroceramica, forno elettrico e lavastoviglie. Sui fuochi, caffettiera Pulcina [Alessi], testa di moro Lentini Eyebrows and Moustache [WFTB].
Planetaria Classic [KitchenAid], vassoio Varmblixt [Ikea], barattoli e canovaccio [Primark Home]; piatti a parete e calici rosa vintage [Radisa Gallery], tazza [HKliving].
Anche se di piccole dimensioni, la cucina è completa di tutto senza che si sprechino centimetri preziosi.
Al centro c’è la zona cottura che, a sinistra, ha un ampio piano di lavoro e persino un banco snack per fare colazione guardando fuori dalla finestra.
Il bagno lungo e stretto, accessibile dal soggiorno
e quindi dotato di antibagno, aveva una vasca da 120 cm dietro la porta... a dir poco scomoda! Il resto era total white, anonimo e vetusto.
Dovendo rifare gli impianti, Omar ha fatto due importanti modifiche al bagno: ha sostituito la mini vasca con una doccia da 120 e ha creato l’attacco della lavatrice, che prima era in cucina. Ha posato lo stesso
grès effetto graniglia della cucina e ha dipinto la boiserie e laccato il mobile
in una tonalità che richiama il
velluto della tenda in soggiorno.
Pareti e soffitto dell’antibagno più boiserie dipinti in smalto
satinato colore LN.02.71 [Sikkens], a terra e nella doccia grés Grand Marble Lux Ghiara minuta Mix finitura Lux [Marazzi], lavabo Braies [Deghi] su mobile con mensola e pensile in laccato lucido petrolio chiaro [BGB], rubinetteria Gun [Jacuzzi]. Lavatrice salvaspazio CSS4137TW3/1-11 da 7 Kg [Candy], applique Glo-Ball [Flos € 160], specchio e lampada a soffitto vintage, organizer Toolbox [Vitra]. Box doccia [Leroy Merlin], sanitari Misk [Deghi], asciugamani Nettare Petrolio [Fazzini], dispenser Ekoln [Ikea].
Il trucco per moltiplicare lo spazio in una casa piccola? Un letto sopraelevato e contenitori che sfruttano ogni centimetro. E per dare personalità, arredi e colori vintage.
Dopo gli anni da studente fuori sede (è di Pesaro) fatti di case in condivisione, per Omar, ora senior interior designer di Studio Pisk, giunge il momento di spiccare il volo e comprare la prima casa. La sua passione per tutto ciò che è vintage lo spinge tra le braccia di questo piccolo appartamento in un palazzo Anni ’30: «Mi avevano già convinto ingresso e scale» racconta «e poi la luce e il fatto che la cucina fosse separata dal soggiorno hanno fatto il resto, perché amo l’idea di stare sempre nella stessa stanza durante la giornata».
Le scelte fatte
La grande altezza (cm 335) ha suggerito di realizzare un letto a soppalco nel locale principale: «Volevo creare delle zone ben distinte e non avere la sensazione di dormire in soggiorno: sotto il letto c’è l’angolo pranzo, mentre l’area relax con il divano sembra addirittura a doppia altezza!» dice. Qui lo spazio è organizzato al millimetro per il contenimento, con l’armadio a muro in ingresso, la scaffalatura nascosta dietro la tenda sotto il letto-soppalco e i pensili a doppia altezza in cucina.
Il tocco di stile
Omar voleva che l’arredo, le finiture e i colori rispecchiassero il contesto d’epoca: la maggior parte di mobili e complementi, per questo, è vintage e quelli nuovi hanno nuance e texture legate al passato. In più, la palette scelta per le pareti, definita dopo il ritrovamento del pavimento originale in graniglia, dona grande eleganza agli ambienti e risulta ‘vibrante’ perché i toni cambiano sfumatura al passaggio della luce.