Ispirata dalle composizioni e dai modelli dell'allegato Cucine&cucina? Hai deciso che è il momento di lanciarti nel progettare la tua cucina ideale? Benissimo, ma sai come si fa a misurare la stanza e riportarla sulla carta? E che cos’è un disegno in scala? Quali ingombri occorre considerare?
Qui trovi tutte le nostre dritte per eseguire un rilievo (ossia raccogliere e mettere su carta tutte le dimensioni della stanza, proprio come fanno gli architetti), disegnare la piantina in scala e fare tutti i progetti che desideri, finché non avrai trovato quello che più ti piace.
COSA SERVE
Per prendere le misure: un metro ‘a bindella’, ossia a nastro avvolgibile da 5 o 10 metri e un metro pieghevole da falegname (per misurare le altezze).
Per il progetto: matita, gomma, squadre, copia delle pagine quadrettate e delle sagome dei diversi moduli che vorrai inserire da ritagliare man mano in base agli elementi che ti possono servire.
SCARICA QUI LE PAGINE QUADRETTATE
SCARICA QUI GLI ELEMENTI D'ARREDO
COME COMINCIARE
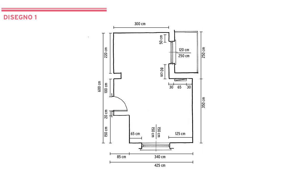
Su uno dei fogli quadrettati fotocopiati, disegna a grandi linee la forma della stanza, riportando la posizione di porte, finestre, caloriferi, pilastri e nicchie, nonché degli attacchi di acqua e gas e delle prese elettriche. Parti da un angolo e procedi annotando sul disegno tutte le misure parziali (vedi disegno 1 nella gallery). Controlla con attenzione che i conti tornino, parete per parete, prendendo anche le dimensioni totali (che devono coincidere con la somma delle parziali).
COSA VUOL DIRE ‘IN SCALA’
Mettere (o disegnare) in scala significa disegnare sulla carta in proporzione rispetto alla realtà. Così, per esempio, la pianta del locale è in scala 1:100 quando 1 cm sulla carta corrisponde a 100 cm (1 metro) nella realtà. Solitamente si disegna in scala 1:50 (1 cm su carta corrisponde a 50 cm al vero) o, ancora meglio, in scala 1:20 (1 cm corrisponde a 20 cm reali). Per questo, le sagome da ritagliare e le pagine quadrettate sono in scala 1:20.
COME DISEGNARE
Utilizzando la scala 1:20, quando disegni la piantina dovrai tradurre la misura della realtà in centimetri (per esempio 1 m = 100 cm) quindi dividerla per 20 (100:20 = 5 cm). Questo significa che una parete che è lunga 2 metri nel disegno sarà lunga 10 centimetri). Lo stesso vale per i mobili. Per iniziare, prendi i fogli quadrettati e riporta in scala il disegno del locale in cui inserire la cucina.
DISTRIBUISCI L’ARREDO
Il sistema più semplice per cominciare a capire ciò che potrà stare realmente nel locale e organizzarlo nel modo migliore, consiste nel ritagliare le sagome dei mobili per poi appoggiarle sulla piantina: puoi divertirti a trovare la composizione perfetta accostando sagome di grandezza diversa, finché non troverai la disposizione definitiva. Per facilitarti, su ciascuno dei moduli sono riportate tutte le misure. Abbiamo anche disegnato tavoli e sedie così, se hai deciso di prevederli nella tua cucina, puoi aggiungerli al progetto.
4 CONSIGLI PER NON SBAGLIARE
- Quando inserisci in pianta mobili ed elettrodomestici (in particolare, il frigorifero), tra la ‘spalla’ del primo modulo e la parete lascia qualche centimetro, affinché le ante si aprano senza difficoltà (soprattutto se non hanno la maniglia incassata). Allo stesso modo, devi tenere lavastoviglie e forno lontano dagli spigoli.
- Per lavorare con agio, davanti alle basi lascia uno spazio di almeno 1 m così ante, cassetti ed elettrodomestici si apriranno con agio. Nel disegno 2 vedi gli ingombri in apertura dei vari elementi: per il lavello largo 80 cm si calcolano 40 cm se è a due ante e 50 cm se invece è a cestoni. Per il portello della lavastoviglie 75 cm (bastano perché di solito si carica dal fianco), per la porta del forno 50 cm e per quella del frigo 60 cm. Per tutti gli altri moduli, il calcolo è semplice: l’ingombro d’apertura corrisponde esattamente alla larghezza della/e anta/e.
- Per le altezze, devi fare riferimento al disegno 3: il piano di lavoro è a 90 cm da terra (ma se non sei troppo alta puoi abbassarlo a 85); i pensili vanno sistemati a 130/140 cm di altezza (per quelli oltre i 2 metri serve una scaletta); la cappa, per ottimizzarne la resa, si mette a 60/75 cm dal piano cottura.
- Le prese elettriche per i grandi elettrodomestici (quasi sempre del tipo Schüco) vanno a 30 cm da terra (a 120 cm quella per il forno a colonna e a 180 cm quello per la cappa); vanno a 110 cm da terra e ad almeno 60 cm dal lavello quelle per i piccoli elettrodomestici, per evitare schizzi d’acqua accidentali.
Cose da sapere... Il triangolo ergonomico
Le fasi della preparazione dei cibi devono essere semplificate al massimo, per non farti sprecare energie e tempo: le tre zone coinvolte (frigo/dispensa, lavello e fuochi/forno) vanno posizionate ai 3 vertici di un triangolo detto 'ergonomico' (evidenziato in azzurro nelle piante), per ridurre al minimo gli spostamenti tra un punto e l’altro.
√ Le composizioni ideali
a U: i vertici del triangolo sono sui tre lati della cucina, divisi da piani di lavoro. Perfetto in spazi contenuti perché, in pratica, con piccole rotazioni del corpo raggiungi ogni zona.
a L con isola: se quest’ultima serve soltanto come piano di lavoro, posizionala fuori dal triangolo ergonomico, così non risulterà d’intralcio.
su 2 linee parallele: da un lato installi frigo e fuochi, dall’altro il lavello; in questo modo cottura e lavaggio si fronteggiano.
√ Perché usare il triangolo
Si usa per spostare i cibi dal frigo – o dalla dispensa – alla zona lavaggio e poi dalla zona lavaggio ai fuochi è utile spostarsi il meno possibile. L’ideale? Passare dal frigo al lavello con due passi e ruotare su se stessi per arrivare ai fornelli.
√ Un piano d'appoggio secondario
Tra lavello e fuochi è pratico avere un piano di lavoro di 40 cm: se lavori i cibi tra queste due zone, puoi raggiungere senza difficoltà una pentola che è sul fuoco o il rubinetto per sciacquare un piatto.
