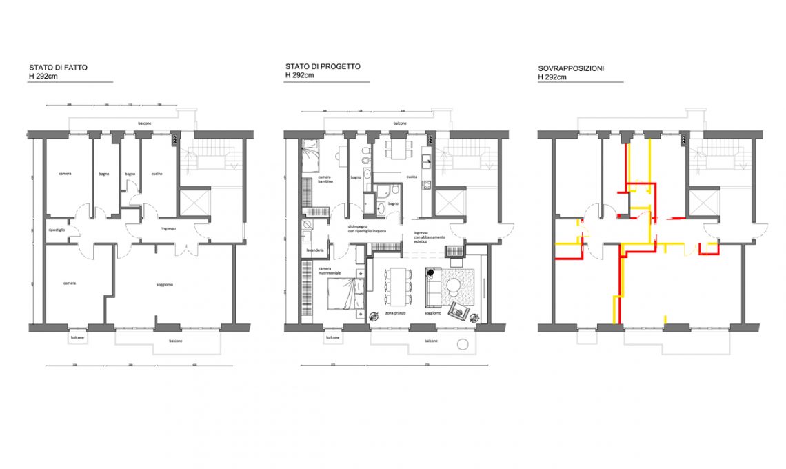
Il progetto: ridimensionando il bagno di servizio si riesce a rendere abitabile la cucina; il bagno principale si riconfigura in modo più funzionale, tra le due camere si ricava la lavanderia e in ingresso e disimpegno (dotato di ripostiglio in quota) si aggiungono armadiature a muro.
Le nicchie create tra ingresso e soggiorno sono state allestite da un lato con un armadio per riporre i cappotti appena si entra in casa, dall’altro con una parete attrezzata.
In soggiorno si è preferito dare ampio spazio alla zona pranzo, dove trionfa un maxi tavolo che ospita le frequenti cene con gli amici organizzate da Sara e Luca. Il salotto, invece, è rimasto volutamente più ‘privato’ ed è arredato solo con poltrone e pouf, senza divani.
La cucina, ora, è davvero a misura di famiglia. Il modello Alevè di [Stosa] si sviluppa a ‘L’: tutta la zona operativa con un lungo piano lavoro è su un’unica parete e, dove il locale si allarga, sono installate le colonne con gli elettrodomestici [Neff] e il tavolo da pranzo da 4.
Per i due bagni (così come per la nuova lavanderia) è stato scelto il total white per sanitari [Connect di Ideal Standard], mobili e rivestimenti, così da dare più luminosità ai locali.
Una zona servizi più funzionale, tanti contenitori e una cucina più grande, senza rinunciare al secondo bagno: con nicchie, armadi a muro e un ripostiglio in quota lo spazio si moltiplica
Sara e Luca hanno contattato il nostro architetto CF style Lorenza Pollavini perché avevano bisogno di rendere abitabile la cucina e più funzionali i due bagni di casa. Inoltre avevano la necessità di aumentare lo spazio contenitivo con soluzioni visivamente non invasive. Ecco la proposta, poi realizzata, dell'architetto.
L’intervento riguarda principalmente le zone di servizio:
Il bagno piccolo (cieco, con doccia, lavabo e wc) viene spostato verso il corridoio, dal quale è direttamente accessibile; così si può ingrandire la cucina, che diventa abitabile, con 2 finestre e il tavolo per pranzi in famiglia.
Il bagno padronale viene leggermente ridimensionato e dotato di maxi-doccia, mobile lavabo più sanitari.
Lo sgabuzzino si amplia, rimpicciolendo di poco la camera grande, per fare spazio a una lavanderia completa di lavatrice, asciugatrice, lavatoio e armadio/ripostiglio.
La parete tra soggiorno e camera padronale viene rettificata, mentre tra living e ingresso/corridoio si creano 2 nicchie attrezzate con armadi a muro: all’ingresso per i cappotti e nel corridoio per la biancheria della casa.
Nel disimpegno si realizza un ribassamento portante che serve da ripostiglio in quota.
Vuoi anche tu una consulenza da un architetto CF style? Clicca qui per trovare la lista completa.