Porta Yncisa70 pantografata con incisioni geometriche sinuose di ispirazione Art Decò e laccatura realizzata con vernici bio a base d’acqua effetto ultraopaco setoso al tatto [FerreroLegno].
Radiatore Window a piastra riscaldante in acciaio colorato con integrato il porta- asciugamani apribile, disponibile sia mono sia bicolore [Cordivari].
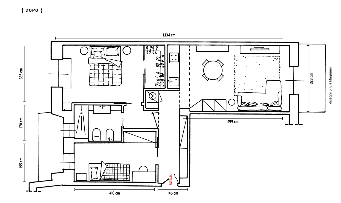
Un bilocale a cui mancava una camera per poterlo affittare a una famiglia con un bambino. È bastato spostare tre pareti e rifare impianti e pavimenti e trasferire l'angolo cottura in soggiorno.
Un tipico bilocale Anni ’70 viene acquistato per farne un investimento mettendolo a reddito. Ha un corridoio centrale su cui si affacciano la cucina (con balconcino) e il bagno lunghi e stretti, una camera matrimoniale, un soggiorno con balcone e il ripostiglio. Visto che l’appartamento è ancora allo stato originale e necessita di una totale ristrutturazione, il nuovo proprietario decide di contattare gli architetti CF style di StudioT14 per rinnovarlo e ottimizzarne la metratura. Si decide di renderlo più appetibile per l’affitto trasformandolo in un trilocale adatto a una famiglia con un bambino, passando quindi da una camera matrimoniale a due camere.
La soluzione
Eliminando il ripostiglio e ridimensionando leggermente la stanza padronale si è allargato il soggiorno, che ora ospita l’angolo cottura – compatto ma super funzionale – all’interno di una nicchia, così da lasciare spazio a un tavolo rotondo più colonne per elettrodomestici e, vicino alla finestra, alla zona relax. Rendendo il bagno più quadrato (ora con maxi doccia) e grazie a un sistema di nicchie, l’ex cucina acquista le dimensioni di legge per essere trasformata in camera singola (9 mq); si inserisce un piccolo disimpegno per la zona notte dei genitori e trovano spazio un armadio a muro in corridoio attrezzato a ripostiglio e/o lavanderia e perfino una cabina armadio nella stanza matrimoniale.
BUDGET*
Demolizioni murarie più rimozione pavimenti e sottofondi, rivestimenti, impianti, infissi e porte €4.000
Costruzioni murarie, intonaci e rasature, realizzazione sottofondo, posa rivestimenti, fornitura e posa falsi telai per porte e infissi, predisposizione condizionamento, controsoffitti e tinteggiature €12.000
Realizzazione impianto idrosanitario per bagno e cucina, fornitura e posa scaldabagno a gas, modifica linee dei caloriferi, fornitura e posa caloriferi, montaggio sanitari e rubinetteria più ass. muraria €6.000
Realizzazione impianto elettrico: compreso quadro, fonrnitura e posa frutti e placche, motorizzazione tapparelle e ass. muraria €4.500
Impianto condizionmento €4.000
Fornitura e posa sanitari, rubinetteria e piastrelle €3.500
Totale (iva esclusa) €34.000
* il preventivo si riferisce a questo progetto; l’immobile si trova a Milano.