Progetti degli architetti

Largo ai contenitori con nicchie in punti strategici

Armadi e librerie non bastano mai e averli a filo muro da un senso di 'pulizia' e armonia agli spazi: con quinte e nicchie realizzare ad hoc, ogni stanza risulta più capace e funzionale. Da copiare!

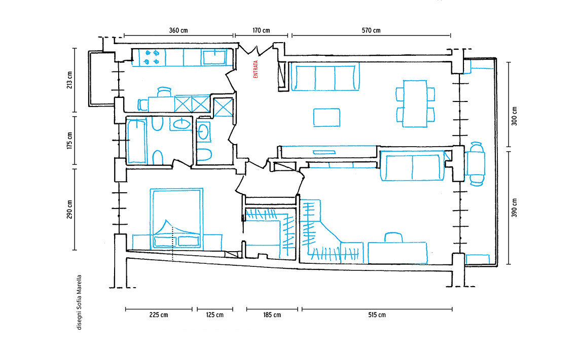
Siamo in una casa in cui il problema non era il poco spazio ma la cattiva distribuzione, i disimpegni inutili, l’ingresso enorme, le stanze in cui era difficile inserire armadi che non fossero incombenti o scomodi, nonché un sistema di impianti vecchio e poco funzionale. Ma posizione e luce erano straordinarie. La proprietaria desiderava avere spazio per le sue attività, una stanza separata per il lavoro, un secondo bagno e una lavanderia: guarda cosa ha studiato per lei l’architetto CF Style Sara Edalatkhah.

La soluzione

L’obiettivo è creare più spazio contenitivo possibile e ridurre al minimo indispensabile le zone di passaggio. Si parte dall’ingresso in cui una quinta a libreria a doppio affaccio aiuta a mascherare il soggiorno alla vista di chi entra. Lungo il tramezzo tra il living e la seconda camera si crea una doppia nicchia che accoglie da un lato una parete attrezzata e dall’altra una libreria e un divano letto che serve lo studio, ma che può essere usato da eventuali ospiti. Il vecchio ripostiglio diventa la cabina armadio della camera: l’accesso non avviene più dal corridoio ma dalla stanza. Il bagno viene diviso in due: quello con la finestra diventa en suite, l’altro, che ruba una nicchia dalla cucina, serve gli ospiti e accoglie la lavanderia. La cucina, ridimensionata, è completa di un tavolo per mangiare in 2 come desiderato dalla proprietaria. Anche nel disimpegno le 2 nicchie accolgono contenitori a giorno e chiusi da ante.

BUDGET*

  • Demolizioni pareti e pavimenti compreso trasporto in discarica €7.500
  • Costruzioni nuovi tramezzi e controsoffittature €7.500
  • Nuovo impianto idraulico €9.000
  • Nuovo impianto elettrico €7.800
  • Nuovo impianto termico e climatizzazione €4.450
  • Fornitura e posa pavimenti e rivestimenti €9.000
  • Fornitura e posa infissi in alluminio €15.000
  • Opere di tinteggiatura €7.000

Totale (iva esclusa) €67.250

 

* il preventivo si riferisce a questo progetto; l’immobile si trova a Roma.

Testi

Elena Favetti

Progetto

Sara Edalatkhah