Il cronotermostato C800WIFI, grazie al costante monitoraggio di temperatura e umidità, ottimizza l’utilizzo di riscaldamento/raffrescamento, regolandolo in base alle abitudini di utilizzo degli ambienti e alla geo-localizzazione dell’utente [Fantini Cosmi].
Una mansarda divisa in piccoli ambienti acquista luce e si fa più funzionale. Come? Sacrificando l'ingresso al living (sì, questa volta ha davvero senso!)
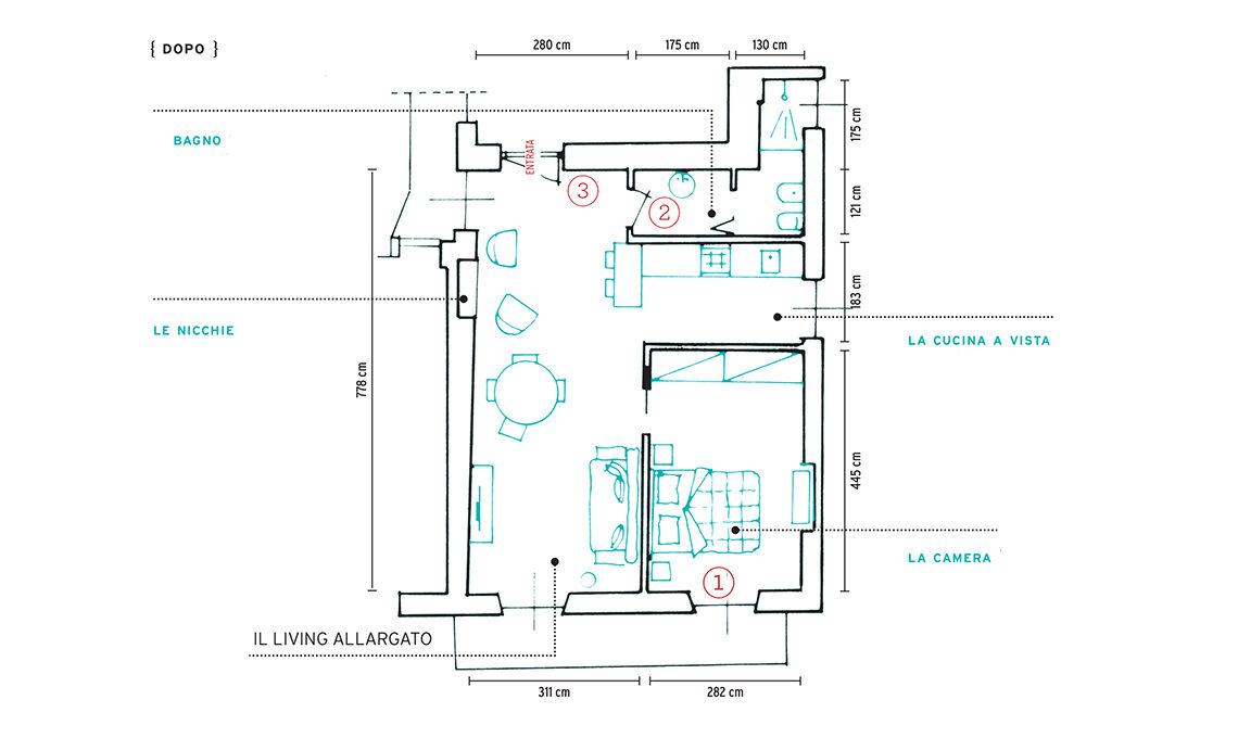
Nel cuore di Torino, questo bilocale mansardato era in cattive condizioni ma aveva ottimi punti di forza, a cominciare dalle due portefinestre affacciate su un terrazzino con vista sul campanile storico. Di fianco all’ingresso, poi, un’altra portafinestra era stata tamponata. Con la ristrutturazione totale, la proprietaria voleva ricavare più spazio vivibile e risolvere un grande difetto: l’accesso alla camera attraverso la cucina!
La soluzione
Per prima cosa sono stati abbattuti i tramezzi tra ingresso, soggiorno, cucina e camera (che è stata leggermente ristretta) ed è stata riportata in luce la finestra dell’ingresso: in questo modo, ora che la cucina è parzialmente a vista sul soggiorno, l’open space risulta avere un triplo affaccio. Questa scelta ha avuto il doppio risultato di far fluire più luce e aria nel living e di sfruttarne al meglio tutto lo spazio. L’angolo cucina rimane nascosto alla vista appena si entra in casa, ma è comunque tutt’uno con il soggiorno (per questo il disimpegno è stato ricavato dentro il bagno). I materiali scelti sono il legno, in una tonalità insolita grigio/tortora e il grès porcellanato per bagno e cucina; qui le piastrelle esagonali effetto cementina danno un tocco rétro. Il colore predominante per le pareti è il blu, per creare un’atmosfera rilassante e accogliente.
BUDGET*
Opere edili: demolizioni, svuotamento del rinfianco delle volte sottostanti, riempimento con materiale cellulare alleggerito dei rinfianchi delle volte, realizzazione di nuovo sottofondo per parquet con rinforzo armato ancorato alle murature perimetrali, costruzioni nuovi tramezzi €20.000
Opere in cartongesso (controsoffittatura e libreria) €3.000
Rifacimento impianto elettrico € 3.000
Rifacimento impianto idraulico (bagno, cucina e impianto di condizionamento con 3 split) €4.000
Piastrellatura bagno (pavimento e rivestimento) e cucina €1.500
Posa nuovo parquet e zoccolino €2.000
Rasatura, preparazione e tinteggiatura delle pareti e dei soffitti €3.500
Totale (iva esclusa) €37.000
* il preventivo si riferisce a questo progetto; l’immobile si trova a Torino.