Finestre Schüco Symbiotic in pvc con cover in alluminio, che garantiscono ottimo isolamento termico, acustico e una resistenza antieffrazione in classe RC2 [Schüco PWS Italia].
Pavimento in laminato effetto legno Capture, resistente a usura e macchie e a tenuta stagna 100% Hydroseal, quindi perfetto per bagni e cucine [Quick-Step].
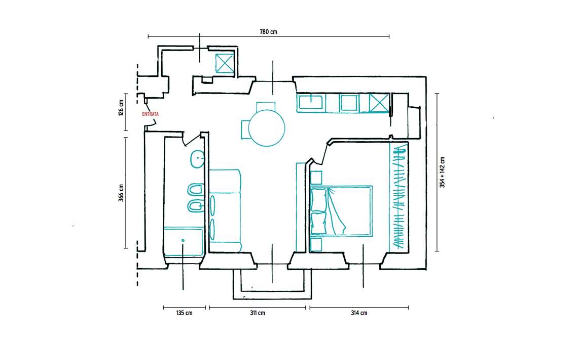
La fortuna di questo appartamento erano le numerose finestre, che hanno permesso di rivedere gli spazi e ridefinire le stanze. Con pochi interventi 'furbi', ora è una piccola casa davvero funzionale.
Un appartamento con due locali più il bagno: gli ambienti sono ampi ma divisi male, perché il soggiorno con cucina risulta soffocato e la camera da letto eccessivamente grande. I lati positivi? Il doppio affaccio e il piano alto che lo rende molto luminoso. Sandra, la proprietaria, decide di affidarsi allo studio di architettura CFstyle Ciesse per rendere la sua casa più bella e funzionale.
La soluzione
Si eliminano tutti i tramezzi interni per poter ripartire da zero. Dove c’era il bagno è stato ricavato un locale guardaroba/ripostiglio che ospita anche la lavanderia: essendo dotato di finestra, non è stato chiuso da una porta, così da sfruttarne la luce. Il nuovo bagno è a destra dell'ingresso e ha la maxi-doccia sotto la finestra. Alla fine del piccolo corridoio d’ingresso, troviamo la zona pranzo, seguita dalla cucina, completata da una dispensa chiusa da una parete con porta scorrevole. Il lato affacciato su strada e dotato di balconcino ospita il soggiorno con divano e libreria e la camera matrimoniale, alla quale si accede dalla parete disposta a 45 gradi, una soluzione che ha il pregio di ampliare visivamente gli spazi. La stanza da letto ha un armadio a tutta parete. Per esaltare la luminosità dell’appartamento sono state scelte tonalità chiare sia per i mobili sia per i materiali di rivestimento, come parquet e piastrelle. E per aggiungere personalità alla zona soggiorno è stata realizzata una decorazione jungle, dipinta a mano.
BUDGET*
Demolizioni tramezzi in muratura, paretine metallo e vetro, pavimenti, rivestimenti e massetto €4.000
Costruzioni tramezzi in muratura e tramezzo in cartongesso per ripostiglio cucina e nuovo massetto ad asciugatura rapida per posa parquet + fornitura e posa di n° 3 porte a filo muro €6.000
Rifacimento completo impianto elettrico €3.000
Rifacimento completo impianti idrico sanitario, di condizionamento e termico €4.000
Fornitura e posa piastrelle e sanitari bagno €5.500
Fornitura e posa parquet e zoccolino €3.500
Tinteggiatura completa + tinteggiatura interna finestre esistenti + decorazione murale a mano €4.000
Totale (iva esclusa) €30.000
* il preventivo si riferisce a questo progetto; l’immobile si trova a Torino.