Progetti degli architetti

Razionalizzare gli spazi per fare spazio a cinque persone

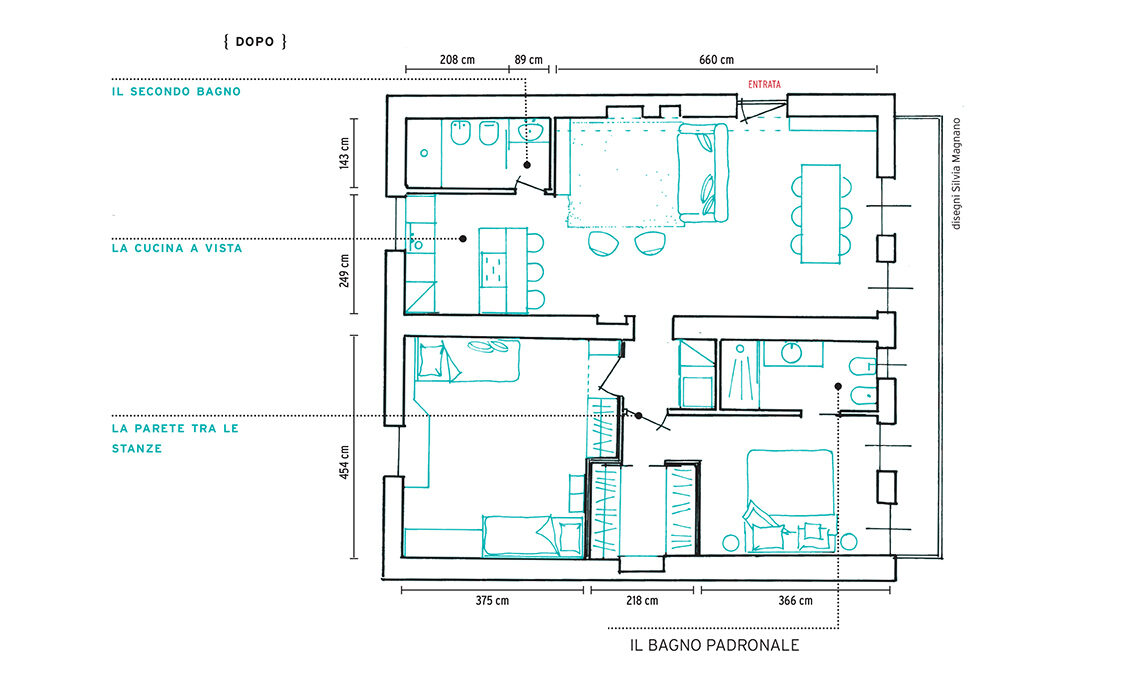
Il soggiorno era sacrificato, per la presenza di uno studio che ora non serve più: mettendo al suo posto la cucina, la zona giorno è più ampia e fluida. E ridimensionando le camere, ci sta anche la cabina armadio.

Un trilocale dall’organizzazione un po’ anomala che prevedeva una zona giorno striminzita con angolo cottura, per lasciare posto a una stanza-studio con bagno privato: questo è ciò che ha trovato il committente, un lettore di CasaFacile, che ha contattato l’architetto CF style Roberta Pradella per riplasmare l’appartamento sulle proprie esigenze, cercando di toccare il meno possibile le finiture d’epoca della casa.

Le richieste

Rifare il bagno, studiare come avere una cucina open ma più raccolta (prima era attaccata all’ingresso) e trovare una soluzione più funzionale per le camere da letto, magari creando una suite per quella matrimoniale.

La soluzione

Dato che al cliente non serviva uno studio autonomo, si è deciso di eliminarlo per posizionare al suo posto (abbattendo anche il tramezzo che lo separava dal living) la cucina con isola, così da guadagnare spazio nel soggiorno per una zona relax con divano più due poltrone e un ampio tavolo conviviale nella zona pranzo. La ex camera matrimoniale è stata data ai figli, mentre la stanza più piccola è stata trasformata in camera padronale con cabina armadio (sottraendo una piccola zona a quella nuova dei ragazzi) e bagno en suite. Nel disimpegno è stato collocato un ampio e prezioso armadio a muro per lavanderia e ripostiglio; il secondo bagno esistente è rimasto invariato, ma la zona lavabo è stata delimitata con due pannelli: uno fisso e uno scorrevole, per dare vita all’antibagno.

BUDGET*

  • Demolizione tavolati, impianti, sottofondo e pavimento bagno, trasporto in discarica e oneri €4.690
  • Costruzione tavolati, sottofondo e integrazione intonaci €5.800
  • Creazione nicchie e controsoffitti in cartongesso, assist. muraria €3.000
  • Impianto elettrico revisione e integrazione con sostituzione di tutti i frutti e le placche esistenti €4.800
  • Impianto idraulico per creazione dei nuovi bagno e cucina, modifica impianto riscaldamento per nuova posizione radiatori esistenti e revisione impianto condizionamento €5.230
  • Piastrelle bagno €3.295
  • Nuovi sanitari e rubinetti €4.980
  • Parquet con fornitura di nuove tavolette uguali alle esistenti, lamatura e verniciatura totale €3.200
  • Tinteggiatura pareti, perlinatura e travi a soffitto €7.800

Totale (iva esclusa) €42.795

 

 

* il preventivo si riferisce a questo progetto; l’immobile si trova a Milano.

Guarda anche
Progetti degli architetti

Ridisegnare e ‘ritrovare’ più spazio e più luce

Guarda anche
Progetti degli architetti

La camera si sdoppia per fare posto allo studio

Testi

Elena Favetti

Progetto

Roberta Pradella architetto