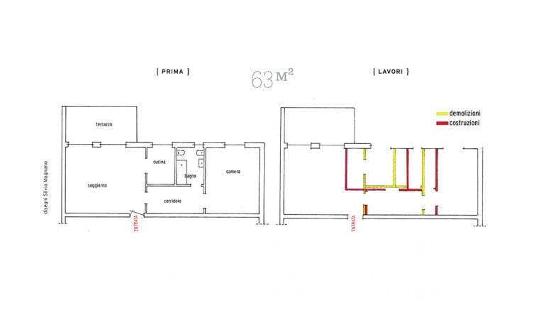
Un grande appartamento nella campagna toscana: i nuovi proprietari se ne innamorano per il contesto e per il bellissimo giardino su cui si affaccia la zona giorno... ma ci sono alcune cose da sistemare. Gli spazi del piano terra sono frammentati in piccoli ambienti che risultano angusti e non lasciano la luce libera di filtrare. Dovendo mettere mano agli impianti e ai bagni, decidono di affidarsi all’architetta CF style Alessandra Bosi Picchiotti perché ne ridisegni gli spazi e le funzioni.
La soluzione
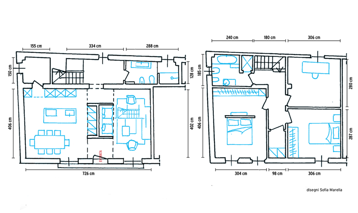
Per dare al living più agio si eliminano il vano dispensa e tutti i tramezzi che dividevano la zona giorno: si lascia soltanto la parete centrale a C alla quale si aggiunge una contronicchia simmetrica... Questa quinta diventa l’unico divisorio fra la zona pranzo con cucina a vista e il salotto. Quest’ultimo vede anche la trasformazione di una finestra in portafinestra (uguale a quella esistente) che permette di far entrare più luce e di avere un ulteriore accesso al giardino. La parte restrostante della casa rimane adibita ai servizi e vede allineati lavanderia, l’originale vano scale in pietra più bagno per gli ospiti, totalmente ristrutturato. Al primo piano l’impianto distributivo è quasi invariato: nella camera padronale è stata realizzata una quinta in cartongesso che serve da testata del letto e definisce lo spazio della cabina armadio passante. Altri due ripostigli si ricavano accanto al bagno e tra le due camere, chiudendo una nicchia nella seconda camera da letto.
BUDGET*
- Demolizioni pareti e rivestimenti di bagni e cucine €10.000
- Nuove opere in cartongesso in cucina e camera €2.000
- Fornitura e posa nuovo infisso nella zona giorno €2.500
- Fornitura e posa nuovi pavimenti e rivestimenti in grès porcellanato e legno €12.000
- Modifica impianto elettrico esistente €3.500
- Fornitura e posa sanitari, doccia, lavabi e rubinetteria €5.000
- Fornitura e posa carta da parati €1.500
Totale (iva esclusa) 36.500
* il preventivo si riferisce a questo progetto; l’immobile si trova in provincia di Lucca.
