Progetti degli architetti

Come recuperare e modernizzare un vecchio casale

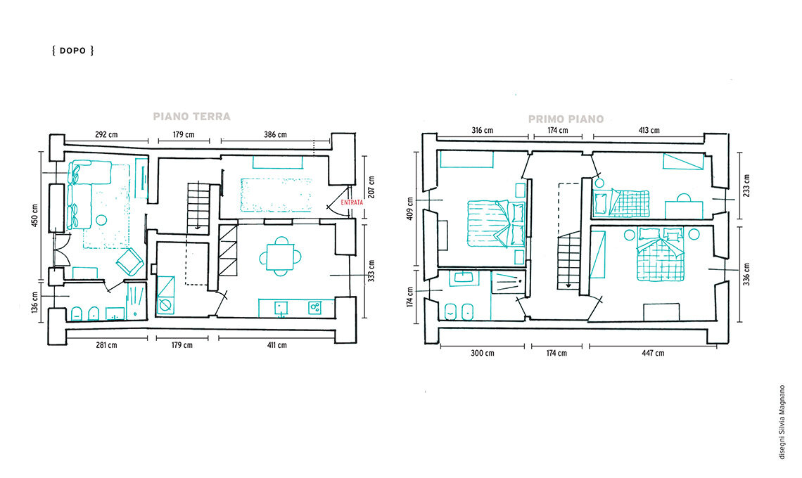
Un piccolo edificio rurale, molto rimaneggiato nel tempo, è stato 'riscoperto' nelle strutture originali (muri, travi e pavimenti) e adattato alle esigenze di una famiglia.

La piccola casa, affacciata sulla via principale del paese circondato dalla magnifica campagna parmense, appartiene alla famiglia da generazioni: ci abitavano i nonni, e i nonni dei nonni. I proprietari attuali, l’ultima generazione, hanno deciso di darle nuova vita, per continuare a goderne appieno insieme alla famiglia. L’immobile si sviluppa su 2 piani, collegati tra loro da una scala in linea che ‘taglia’ in due la casa: la zona giorno è al piano terra con ingresso, cucina abitabile e zona relax più un piccolo bagno; la zona notte è di sopra e si sviluppa in 3 stanze, delle quali una è molto sovradimensionata.

La soluzione

Il progetto è stato, volutamente, molto conservativo ma dove si è potuto sono state create delle aperture che hanno dato respiro ad alcuni ambienti; è stato ricavato un nuovo grande bagno al piano superiore (in corrispondenza di quello che c’è al piano sottostante) e, in maniera del tutto inaspettata, sono state ritrovate e riportate in luce le vecchie travi, i muri in pietra e le volte in mattoni che erano stati coperti per secoli. La casa ha così acquisito un carattere rurale davvero affascinante. Ovviamente, i materiali scelti sono in linea con l’intero progetto di ristrutturazione così come gli arredi che, in parte, sono stati recuperati e risistemati.

BUDGET*

  • Impianto elettrico €6.700
  • Impianto idraulico €5.400
  • Impianto riscaldamento/aria condizionata, fancoil + split €17.300
  • Nuovi serramenti esterni €3.500
  • 2 porte blindate €4.000
  • Porte interne €3.540
  • Nuovo pavimento in legno + rivestimento scala + zoccolino €10.000
  • Rivestimenti in grès pavimento e pareti bagni €1.200
  • Pitture €5.460
  • Nuovi sanitari + rubinetteria €4.400
  • Rifacimento tetto €8.000
  • Impresa €20.000

Totale (iva esclusa) €89.500

Testi

Elena Favetti

Progetto

Selina Bertola - Nomade Architettura

Foto

disegni: Silvia Magnano