L’inserimento della scala di unione tra l’appartamento ed il sottotetto e del volume in cartongesso del camino sono stati il punto di partenza del progetto di ristrutturazione.
Sopra il divano: una campitura di azzurro mirtillo, effetto velluto, impreziosita da foglie in plexiglass disegnate dal'architetto CF Style Alessandra Meacci.
Nella camera da letto è stata realizzata una colorata composizione a parete, mischiando scaffali ikea rivisitati con carte da parati (Pipstudio) e pomelli vintage, a pezzi recuperati in mercatini, come il portaspezie anni ’50.
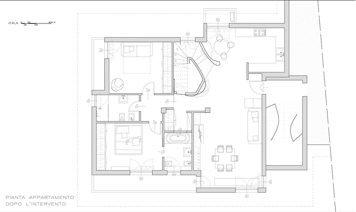
Inserendo una scala, un appartamento è stato collegato al sottotetto e la distribuzione completamente ripensata sfruttando al massimo la luce naturale
L’appartamento degli anni ’70 aveva un affaccio su tre lati ed una ottima esposizione, poco sfruttata a causa della distribuzione degli ambienti; il sottotetto di proprietà era separato, accessibile esclusivamente tramite un ingresso autonomo dal vano scala condominiale.
La ristrutturazione, seguita dall’architetto CF Style Alessandra Meacci, ha trasformato completamente l’abitazione, inserendo una scala in acciaio corten ed un caminetto al centro della zona giorno, un open space luminoso con doppio affaccio (sud-est e nord-ovest). Si è prestata particolare attenzione a ricavare dei piccoli spazi di servizio ad uso lavanderia, ripostiglio e vano tecnico, nascosti da pannellature e porte rasomuro tipo “invisibile”.
L’appartamento
L’open-space, ricavato con la demolizione delle tramezze che dividevano cucina, ingresso e soggiorno, ruota attorno al caminetto, inserito in un volume plastico di curve in cartongesso, attorno a cui si sviluppa la scala che porta al sottotetto; la sua linea sinuosa invita a salire al piano superiore. Per la zona living, illuminata dall’alba al tramonto, si è scelto un pavimento in grès bianco molto strutturato e lievemente iridescente; dalle finestre le tende di Tord Boontje Until Dawn proiettano un delicato disegno di luci e di ombre. Per l’arredo si è scelto di accostare mobili di modernariato a pezzi di design; le campiture di colore alle pareti e l’inserimento di carte da parati dal sapore vintage, danno un carattere molto deciso all’ambiente.
Tra il living ed il disimpegno delle camere da letto è stata prevista una zona filtro, in cui, nascosto da un pannello rivestito in carta da parati, si trova il vano lavanderia e guardaroba dei cappotti; il volume fluido del caminetto contiene invece un ripostiglio, cui si accede da una porta rasomuro.
La zona notte è composta dalla camera patronale, con bagno privato, una seconda camera matrimoniale e un bagno. Qui i colori si fanno più morbidi, nelle tinte del rosa antico e dell’azzurro carta da zucchero; le tonalità pastello, accostandosi al pavimento in legno di rovere spazzolato, tinta corda, conferiscono all’atmosfera un tono rilassato e vintage.
Il sottotetto
La scala, realizzata su misura in acciaio corten, è illuminata da neon incassati nel soffitto in cartongesso, che creano l’effetto di tagli di luce.
Il progetto di ristrutturazione ha trasformato in maniera radicale il sottotetto, migliorando la vivibilità dello spazio: si è aperta una terrazza in taglio di falda che investe di luce in tutto l’ambiente ed è diventata un piccolo giardino interno; sono state realizzate delle “strombature” alle finestre in falda, che permettono di recuperare altezza utile; sono stati ricavati due vani ripostiglio, accessibili con porte rasomuro.
Il vano tecnico della caldaia, posizionato di fianco alla scala, è chiuso da un pannello in lamiera microforata effetto corten; grazie a cerniere che permettono una rotazione 180 gradi, il pannello consente di chiudere la scala, dividendo in caso di necessità sottotetto ed appartamento.