Sulla libreria realizzata su disegno di Vanessa Pisk Studio, vasi Decor Ocean Blue più T e Delfi, tutti da [Nap Atelier]; vaso Base in ottone, centrotavola Cuppone in ottone e coppa Cuppino giallo e rosa, tutti [PaolaC.]. A parete, applique a due sfere IC Lights C/W2 Double, supporto in ottone [Flos]. Parete vetrata realizzata su disegno di Vanessa Pisk Studio.
Forme organiche
e sinuose fanno da contraltare alle geometrie spigolose. Echi fantastici su piatti e tessili danno vita a una tavola da Mille e una notte.
Sui tavolini Pillar in ottone [101 Copenhagen, ø cm 65x41h e ø cm 55x50h], tazzina e piattino da caffè coll. The White Snow Bestiario della Tavola [Driade].
Divani New York Suite [Saba Italia, da Saraceni] con cuscini in vari colori e dimensioni [L’Opificio] e in bianco e nero [Torri Lana], plaid Maddalena in pura lana merinos [Marzotto Home, distr. da Lanerossi]; piantana IC Lights Floor 2 [Flos]. Sul tappeto Esagoni Blue design Gio Ponti [Amini], tavolini Pillar in ottone [101 Copenhagen, ø cm 65x 41h e ø cm 55x50h] con caraffa Dudù e bicchieri Routine di [PaolaC.].
Sul carrello vintage [da Vecchio Mio], calici [Fiammetta V ], set ciotole The White Snow Bestiario della Tavola [Driade], shaker [House Doctor]. Quadro Aureo, olio su tela [Claudio Olivieri]. tavolino Mass in ottone [Northern]. Parquet [Paolo Colombo Parquet], finestre [Falegnameria Menaballi].
Sul top del tavolo Universe [Bontempi Casa, cm 200x106x75h] con sedie Dining Chair [Detjer], tovaglioli Chinoiserie [Milou Milano], vasi e centrotavola Striped più piatto Dinner Plate nero [Fiammetta V], posate Zest [KnIndustrie], piatto Set Tavola [Driade], coppa Cuppone [PaolaC.]. Lampadario Hutchinson [Eichholtz su shop.mohd.it, ø cm 115x65h]. Quadro Gawain, olio
su tela [Claudio Olivieri].
Cucina Luna [Binova] con miscelatore PS86060 finitura oro spazzolato [Guglielmi Rubinetterie], sgabelli Trick Pop [S·cab Design], lampadario IC Lights Suspension 2 [Flos] e tende [I Vigna].
Sull’isola: vassoio Big Circular Tray e alzata Stand Cake in marmo [Fiammetta V], americane Broken Cross [Valerie Barkowski], tovaglioli Piedpoule Nero Edoardo [Borgo delle Tovaglie], posate [KnIndustrie], caraffa Dudù e bicchieri Routine [PaolaC.], piatti, ciotole e tazze con piattino [Driade].
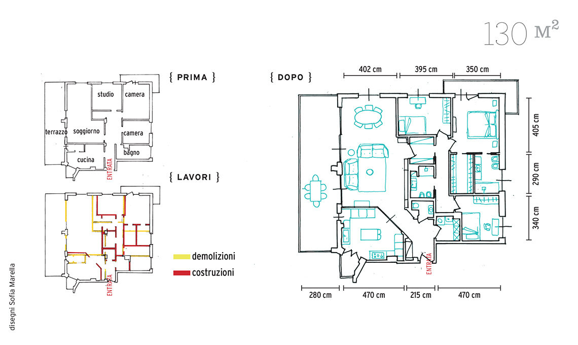
Ampliato il living e ridimensionati corridoio e una delle camerette, l’ingresso alla zona notte avviene attraverso quello che era il ripostiglio che, attrezzato con doppia armadiatura, è chiuso da una porta a bilico finita a specchio. Questa soluzione consente
alla luce di riflettersi e aumenta la luminosità del soggiorno.
Letto Corolle [Bolzan Letti] con piumino D400 Cold Winter e guanciali Gold in piuma [DaunenStep] vestiti con set sacco e federe Lipari grigio in puro lino più coppia di federe Lipari antracite [Lanerossi], plaid Elemento grigio in cashmere e merinos e Maddalena [Marzotto Home], cuscini 2763 Longue e 2701 Carré [L’Opificio], comodini vintage [subito.it]. Lampade Meridian a sospensione [Riflessi] e panca Pal Bench [Northern] con piatto nero [Fiammetta V] e tazzina + piattino [Driade]. Pouf Teodora by Nappine [Nap Atelier], maniglia Lama design Gio Ponti [Olivari].
Piastrelle Allmarble Statuario [Marazzi], mobile Opera [Arcom] con lavabo d’appoggio Charme di [Azzurra Ceramica] come i sanitari, rubinetteria Shine in ottone [Ex.T], applique in ottone [Deyroo Lighting], set asciugamani Memba ricamati a mano e Lamu con pompon [Valerie Barkowski].
Carta da parati Flora [Boråstapeter], divano-letto Bravo da una piazza e 1/2 [Moretti Compact] con piumino D400 e guanciali Gold [Daunenstep] vestiti con set sacco e federe Atena più plaid Rossi Story [Lanerossi] e cuscini in velluto [Croff] e verde [Northern]. Sospensione Pale [Georges].
Mobile Vanity [Arcom] con lavabo da appoggio Elegance di [Azzurra Ceramica] come i sanitari sospesi Mini Nuvola; rubinetteria ML Sleek nero [Ex.t]. ,Applique in metallo nero [Westwingnow], specchio ovale [Umbra Hub su Amazon], set asciugamani Tulum con pompon [Valerie Barkowski].
CasaFacile > CASE > Prima & Dopo > Prima & Dopo: un appartamento moderno che si ispira alle case parigine
Può un tipico appartamento milanese costruito negli Anni '50 acquisire un'eleganza parigina? Sì, se mettete insieme i desideri dei proprietari e la bacchetta magica della nostra Vanessa Pisk.
Per Marco è stato un colpo di fulmine. Tonia, invece, è rimasta sulla porta, pronta ad andarsene, per niente colpita dall’appartamento malandato. Ma lui ha visto oltre gli ambienti cupi, le finestre piccole, la cucina misera e l’unico bagno. «Tonia si è convinta solo quando ha visto il terrazzo che desiderava da sempre, e si è fidata» racconta Marco.
Con l’aiuto dell’amico ingegnere Giovanni Zecchini hanno deciso di abbattere tutti i tramezzi per ridisegnare gli spazi, dando non semplicemente una disposizione più funzionale, ma andando alla ricerca della luce, «che era lì fuori e aspettava solo di entrare». Come? Con nuove ampie finestre che adesso creano un tutt’uno fra in&outdoor.
Le scelte fatte
Il corridoio rimpicciolito è diventato zona servizi con il secondo bagno, quello per gli ospiti e la lavanderia; le camere sono state ridimensionate, la stanza padronale ha bagno e cabina en suite. Alla zona giorno, ampia e fluida, si arriva diretti dall’ingresso.
Il tocco di stile
«Ma una volta tirati su i muri... il vuoto!» dice Tonia. «Io volevo marmi, ottone e bianco, Marco voleva uno stile francese. Vanessa ci ha guidati in tutto, non solo nella scelta dei mobili: ha anche disegnato una parete vetrata per la cucina con un sapore un po’ Art Déco perfetto con il parquet a spina francese e i grès effetto marmo, con la palladiana e la graniglia in cucina e nei bagni. Il bianco del living è diventato la base per far risaltare i pezzi vintage, i colori di accessori e quadri e l’ottone dei complementi. Ma adoro anche il verde che dal letto è salito sulla parete della camera per uscire in corridoio! Vanessa ha trasformato i nostri pensieri nella nostra casa.
Testi
Elena Favetti
Progetto
Lavori - Zecchini Costruzioni (zecchinicostruzioni.it)