Sul divano giallo Oslo sfoderabile effetto velluto [Miliboo, cm 180x 82x80h], cuscini con tessuto fantasia e scritte [Eklettikarte]; a terra, piantana Captain Flint in acciaio verniciato nero [Flos, ø cm 32x153,7h], tappeto Goose Eye Icon [Kasthall] con sopra tavolini in legno [Leftover + Sour Design]. A parete, stampa Stacked Lines 01 [Paper Collective, cm 50x70] e rosone luminoso Margherita Grande [Luci del Sud, ø cm 90].
Tappezzeria arancione, tende damascate, boiserie con greca a fiori più un pavimento in piastrelle molto freddo... Con un bellissimo parquet posato a spina italiana in legno massello, il bianco totale sulle pareti e i nuovi infissi tutto si è fatto più elegante e luminoso, pur restando semplice. Sono i dettagli a fare la differenza: il calore del tavolo in legno naturale, il tocco vitaminico del divano giallo, le geometrie dei
vasi e il verde delle piante.
Sopra il tavolo Squeeze Table in quercia naturale con controvento in acciaio bianco [Universo Positivo, cm 90x200x75h], vasi a righe in bianco e nero Cakestand, Capitello M e Otto, più Brickston rosso in pendant con quello sullo sgabello vintage azzurro
[Mani Ceramics]. Le sedie svedesi Anni ’50 sono state acquistate in un mercato di modernariato; il tappeto scuro è Goose Eye Icon [Kasthall].
«Su questa base bianca molto elegante ho proposto ad Aurora di giocare
con una palette di colori e pattern di ispirazione vintage» dice Cristina. «È nato così l’ensemble di vasi che hanno silhouette inedite, mini e maxi righe in black&white, tinte unite calde come il rosa e squillanti come il giallo. Sono nuance che ritroviamo in tutta la casa: in uno spazio dai confini labili i richiami cromatici sono d’ordinanza».
Le basi della cucina Metod [Ikea] sono completate da un top in Fenix NTM bianco e dai pomelli Hook Marble Small [Ferm Living, ø cm 2]. Sul piano: caffettiera Lady Anne, vassoi Live-Ly [ø cm 50] e [ø cm 67] più tajine Glocal, tutto di [KnIndustrie] come i taglieri. Brocca in vetro [Bitossi Home]. Incorniciata, un’illustrazione di Guido Pigni; sospensione Barra Led [Linea Light].
Anche le zone cottura
e pranzo erano scure e troppo decorate. «Il soggiorno è stato ripensato come una grande cucina, dove la condivisione del cibo diventa condivisione del vivere» raccontano le architette dello studio Bada. «Il piano di lavoro lungo
in Fenix e le ante nello stesso bianco danno vita
a un mobile che dà carattere all’ambiente, senza essere imponente».
«È fondamentale farsi guidare nelle scelte da chi ha esperienza: le architette Benedetta e Gjada mi hanno fatto capire che togliere le porte per creare ambienti comunicanti non voleva dire perdere in privacy ma semplicemente far fluire liberamente aria e luce».
Libreria K1 pensile bianca [Kriptonite, su progetto], poltrona Tripolina vintage e lampada Lampe de Marseille [Nemo Lighting]. Sedia blu Fronzoni 64 [Cappellini] nella stessa nuance della finestra ovale.
Scrivania Tavolo da Battaglia 410 realizzato su misura da [Duilio Secondo Studio]; sul top vasi Square Black e Monni Yellow [Mani Ceramics] e statuetta Wooden Doll No. 7 [Vitra]. Opere e stampe di Guido Pigni, Franco Matticchio, Lorenzo Mattotti e Giulio Bonasera.
Coperta da un infisso interno, la finestra ovale originale degli Anni ’20 scompariva totalmente alla vista. Aurora, al contrario, l’ha voluta rendere protagonista dello studio togliendo tutto ciò che non serviva, comprese le sbarre esterne, e ha fatto realizzare un infisso in un colore davvero unico come il blu Klein che spicca e incornicia la vista proprio come fosse un quadro.
Finestra ovale realizzata da [Stefano Fratarcangeli].
Anche in camera sono state eliminate le tappezzerie in favore del total white, che fa da sfondo perfetto per i tocchi di colore. Lampada in bambù e carta di riso Uchiwa III [Ingo Maurer]
Sul letto sommier in betulla con cassettoni laterali Mandal [Ikea, cm 160x202x27h], lenzuola e cuscini in tinta unita [La Fabbrica del Lino], cuscino fantasia [Eklettikarte]. Illustrazioni di Lorenzo Mattotti.
Armadio formato da mensolone e barra appendiabiti realizzato su misura da [Stefano Fratarcangeli Artigiano]. Vaso in ceramica a righe [Mani Ceramics], cuscini in varie fantasie [Eklettikarte] e illustrazione di Giulio Bonasera.
Piastrelle rosa a pavimento e nella zona vasca [Ceramica Vogue], sanitari della serie Sfera di [Catalano], rubinetteria in acciaio cromo [Ideal Standard e Gessi], tenda per la doccia [Society6]. asciugamani sullo sgabello [La Fabbrica del lino], sospensione viola Unfold [Muuto, ø cm 32,5x29,5h].
CasaFacile > Case > Prima & Dopo > Prima & Dopo: alla ricerca di spazi fluidi e luce nel trilocale a Roma
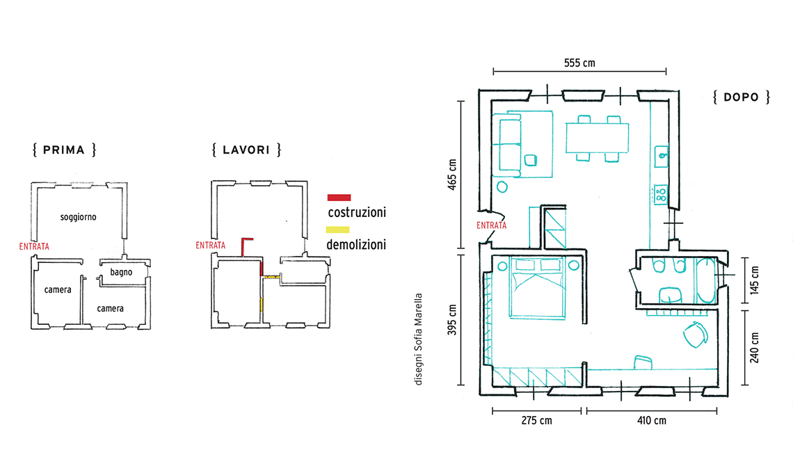
Un attento lavoro di recupero ha letteralmente liberato gli elementi d'epoca nascosti dai precedenti interventi. Il taglio sartoriale degli ambienti ha ridato luminosità e aria a questa piccola grande casa.
Il fascino degli Anni ’20... «Mi piaceva molto il contesto», racconta Aurora, «e della casa mi hanno colpita l’arco tra le zone giorno e notte e quel gioiello di finestra ovale affacciata sul verde, due elementi da recuperare. C’era tanto potenziale, così ho chiamato Benedetta Di Donato e Gjada Orsini dello studio BADA architettura e paesaggio che mi hanno accompagnata nelle scelte, anche quelle per me più complicate. Hanno assecondato le mie richieste sia a livello di struttura sia di finiture: ci siamo proprio trovate!». Un esempio? La decisione di eliminare tutte le porte e di allargare i passaggi per creare una sorta di open space in cui, però, ogni spazio è ben definito da pareti o da quinte in modo che la luce e lo sguardo siano liberi di fluire in ogni angolo. E poi la ricerca di linee pulite e materiali naturali.
Le scelte fatte
«Il layout della casa», spiegano le architette, «è stato pensato attorno ad Aurora. Lo spazio si svolge lungo una spirale che conduce dall’ingresso alla zona notte: dalla convivialità all’intimità. Lo studio mette in comunicazione i vari spazi facendo da filtro».
Il tocco di stile
Tutto parla di Aurora: il rosone luminoso che racconta le sue origini pugliesi, il tavolo omaggio alla sua passione per l’architettura, il parquet su cui camminare a piedi nudi... Cristina Gigli ha aggiunto accessori, tessili, piante e complementi di design che sono anche pezzi unici: in linea con il progetto ha dato ‘colore’ con una palette vintage, tessuti dai pattern rétro rieditati in chiave moderna e oggetti artigianali.