«Un appartamento diventa una casa solo quando è pieno delle cose che amiamo: persone, colori preferiti, collezioni e souvenir di viaggio, tappezzerie, libri, animali, piante».
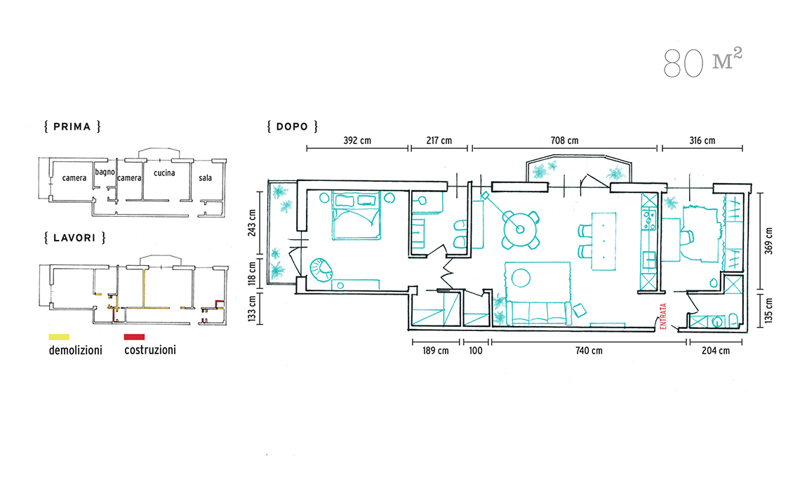
L’abitazione era distribuita in diverse stanze e mancava un vero e proprio salotto, che oggi invece occupa il cuore della casa e fa da filtro a due zone completamente disimpegnate: la camera padronale con bagno e cabina armadio, e lo studio con bagno di servizio ritagliati esattamente dalla parte opposta, così da garantire un’adeguata privacy a eventuali ospiti.
Intorno al tavolo vintage di Romeo Rega [romeorega.com], sedie Coco [Gubi da Shop Mohd], vasi Le Torri [Francesca Verardo]. Sulla madia, sempre vintage, opere di Elisa Talentino in vendita da [Rua Confettora], stampe [The Poster Club], locandine originali d’epoca. La lampada da tavolo è un pezzo vintage di [Esperia]. Sul tavolino Kolos [Miniforms], tazza a righe black & white [Oyoy].
Le piante e i sottovasi di [Garden Gorelli]. Alle pareti, il colore usato è Nordic Spirit, sulla vetrata Frida Loves Diego, entrambi di [The Paint Makers Co.], come
la seconda nuance che veste le altre pareti e che vedi alla pagina seguente, Atlas Blue. parquet [Listone Giordano].
Tavolino Colony [Miniforms], libreria Crossing [Kriptonite].
Chi di noi, a un certo punto, non ha storto il naso di fronte ai mobili cromati degli Anni ’70? Eppure, anche se difficili, questi sono pezzi di pregio che non potevamo eliminare. Il colore, che sulle pareti diventa lo sfondo, li sdrammatizza, rendendoli più freschi.
Sul tavolo, tovaglia e tovaglioli [Borgo delle Tovaglie], posate Brick Lane, piatti Lunch Layers, coltello tutto di [KnIndustrie]. vassoi in legno Inka Wood Tray Nature [Oyoy], piatti dolce con decori di Nathalie Lété, collezione Titania da [Anthropologie], ciotole Radicchio [Les-Ottomans], fiori di [Puscina Flowers].
«Il suggerimento più utile sul colore è che se ne ami istintivamente uno, ti piacerà conviverci per molti anni. Tutto stanca, anche il bianco. Quindi osa sempre».
La cucina [Meson’s] monta un pannello cannettato disegnato da Atypique Design Studio e realizzato da [Krea di Gabriele Pazzaglia].
sgabelli Valerie [Miniforms], lampade Ship Light [Rothschild & Bickers].
Il motivo della carta da parati della camera era in voga
in Francia tra la fine del XVII e l’inizio del XVIII secolo. Veniva realizzato su un tessuto di seta.
Testiera Lempi [Matri su finnishdesign shop.it], biancheria [Once Milano], cuscini [Vanilla Fly] e [Nap Atelier], quadri di Elisa Talentino da [RuaConfettora] e [The Poster Club], lampada Slope [Miniforms], coffee table color Céladon [Matière Grise da Shop Mohd], bicchiere Cast Away [KnIndustrie] con fiori [Puscina Flowers], sveglia [Present Time su smallable.com].
Mobile sospeso realizzato su disegno
da [Krea di Gabriele Pazzaglia], vaso e composizione [Colvin], ciotola [Les-Ottomans], libri di design [su smallable.com], lampada Copycat [Flos], quadro [The Poster Club].
Il bagno era una tela bianca e ingrigita. Poi Paola ha scelto questa combinazione di piastrelle rosa&terracotta e ad Atypique Design Studio è toccato l’arduo compito di collegare i verdi del living ai rosa del nuovo bagno... «Usiamo la carta da parati?» ci siamo dette...
Rubinetteria col. oro rosa [Oioli], mobile finitura rame Dolcevita [Ideagroup], asciugamani [Once Milano], specchio realizzato su disegno di Atypique Design Studio.
Lo studio, insieme alla cucina, è la stanza dove Paola trascorre più ore: scrive le sue ricette, aggiorna il blog, risponde ai clienti... Il primo arredo è stato l’armadio della mamma, un enorme pezzo di noce Anni ’70 che è stato smontato, rilaccato di grigio antracite e rimontato senza le ante. Ad adornarlo oggi c’è una tenda elegante e praticissima: dietro sono nascoste persino le brande per gli ospiti!
Wallpaper non più in produzione [Hermès], lampada Gatto [Flos], gambe per il tavolo Loop Stand [Hay], sedia Pavilion Av2 [&Tradition su finnishdesign shop.it], tazza Work [Design Letters su smallable.com], set scatole Cléo [Broste Copenhagen su smallable.com], quaderni [Vanilla Fly] e [Smallable], tappeto Selce 5 [Carpet Edition], sedia [Zara Home].
Pavimento Ghiara in grès porcellanato [Marazzi], rivestimento a parete Victoria [Marca Corona], lavabo [Ceramica Cielo], mobile realizzato su disegno di Atypique Design Studio da [Krea di Gabriele Pazzaglia], accessori bagno [Zara Home], asciugamani [Once Milano].
A parete, colore Bourgie Status [The Paint Makers Co.].
CasaFacile > CASE > Prima & Dopo > Prima e dopo: a casa della foodblogger: lo stile italiano Anni ’70 si ravviva con tocchi boho-gipsy
Siamo a casa di una delle food blogger più famose d'Italia, Paola di Anice e Cannella. A raccontarcela è Grazia, la nostra stylist, che l'ha progettata recuperando a suon di colore.
Con Paola, celebre blogger di Anice e Cannella, ci conosciamo su un forum da cucina nel 2006: negli anni ci perdiamo di vista, ma quando nel 2019 acquista la sua casa a Chianciano Terme e commissiona il progetto ad alcuni professionisti del luogo, c’è qualcosa che non la convince. «Così», dice, «mi ricordo all’improvviso di Grazia, come un segno!». Mi chiama e in una sola telefonata decidiamo di iniziare questo progetto che, come tanti altri, io e Federica Capelli seguiamo totalmente a distanza, dalla creazione del concept creativo fino all’esecuzione della ristrutturazione,
Le scelte fatte
L’appartamento era un immobile degli Anni ’70 dalla forma rettangolare e regolare, senza infamia e senza lode; una casa che sarebbe diventata anche un luogo di lavoro, con una cucina scenografica in cui Paola avrebbe tenuto i videocorsi dedicati alla panificazione e alla pasticceria lievitata. Non poteva passare inosservata alle telecamere!
Il tocco di stile
«Lo studio del mood è partito dai mobili di famiglia che volevo recuperare, come il tavolo in cristallo e ottone di Romeo Rega o la credenza scura, pezzi di pregio ma difficili da inserire» dice Paola. «Grazia ha selezionato alcuni pezzi, ne ha scartati altri, li ha spaiati o li ha ritappezzati. E ha fatto la magia: io sono una che osa, amo lo stile boho-gipsy e lei l’ha realizzato con un tripudio di carte da parati fiorite e una palette complessa che lega anche il Seventies!».