In cucina gli arredi erano accostati un po’ a caso, senza uno stile, senza un progetto né colori ben studiati. E la vecchia credenza, ingombrante, era troppo ‘chiusa’ per le esigenze di Romina, che ama tenere gli oggetti a vista.
Sul carrello in acciaio inox Grundtal [Ikea, cm 54x41x90h, €129], bilancia verde (bella anche come portafrutta!) da [Jannelli & Volpi]. Taglieri in legno [Delamont] e, sul piano di cucina [Ikea], il cappuccinatore Aeroccino, di [Nespresso] come la mug. Le aromatiche in cucina sono utili e decorative. Se hai poco spazio puoi appenderle con un portavasi pensile (li trovi su Etsy, da Bloomingville, o puoi realizzarlo da sola, all’uncinetto).
Il mobile basso e scuro era piuttosto anonimo e sempre ingombro di oggetti. In più, costringeva a tenere il tavolo al centro della stanza, rendendola poco ariosa e impedendo il passaggio: è stato eliminato, senza rimpianti!
Sul tavolino [Zilio A&C], caraffa [Jannelli & Volpi]. Lampada [Leucos, €209,84] orologio a cucù [Progetti]. Tappetini: grigio [Ikea] e in plastica [Pappelina]. Pareti dipinte con pittura [Lechler].
Ti servirebbe una lampada, ma hai poco spazio? Fissane una a pinza, e con braccio orientabile, a una mensola. Sul divano Knopparp [Ikea, cm 119x76 €79,99], cuscini [Hk living da Jannelli & Volpi] e rivestiti con tessuto [Kirkby Design].
Tovaglia con tessuto Connect Midnight [Kirkby Design]; vaso [Waiting for the bus], tazzina bianca con cucchiaino [Nespresso] e rosa con piattino [Iittala]. Piatti [Croff e Jannelli & Volpi con cuore]. Tovaglioli [Marina C.], cucchiaino [Søstrene Grene].
Sedia rivestita con tessuto di [Brochier], passatoia in plastica [Pappelina] tono su tono con il pavimento, lampada a sospensione [Leucos], appendiabiti Leek [Zilio A&C].
ll divano c’era, ma davvero non invitava a fare due chiacchiere in una stanza così caotica, accanto a un letto che la libreria ‘nascondeva’ senza riuscirci. È bastato far scivolare il sofà verso la porta per creargli intorno un mini living. Al suo posto, vicino alla finestra, ora c’è l’armadio vintage.
Divano Ektorp [Ikea €329], lampada da lettura [Leucos], tappeto [cc-tapis], pouf e cuscini [Brochier]. Il blu usato per la parete è il NCS S 3050-B20G [Chrèon]. Design nordico per due classici disegnati da Ilmari Tapiovaara, che danno carattere all’angolo conversazione, di [Artek]: il tavolino Pirkka, disegnato nel 1955, e la poltroncina Crinolette in betulla [€1.978].
Per spezzare l’uniformità di una parete, anziché quadri o poster puoi usare un segno grafico forte ed essenziale come questo: un pannello rivestito in morbida Alcantara. Questo è della collezione Wanderlust [Alcantara].
Divano Ektorp [Ikea €329], lampada da lettura [Leucos], tappeto [cc-tapis], pouf e cuscini [Brochier]. Il blu usato per la parete è il NCS S 3050-B20G [Chrèon]. Design nordico per due classici disegnati da Ilmari Tapiovaara, che danno carattere all’angolo conversazione, di [Artek]: il tavolino Pirkka, disegnato nel 1955, e la poltroncina Crinolette in betulla [€1.978].
Fantasia romantica per la tenda coll. La Palmeraie di [Thevenon] come il copriletto con tessuto Soleil d’Orient. Plaid [da Jannelli & Volpi]. Cuscini [Brochier quello a pois, e Croff]. Lampada a sospensione con paralume Nymö e accessorio di sospensione [Ikea].
A sinistra: sulla panca, lampada bianca Eclissi [Artemide] e, sul comò, lampada vintage (anche foto sotto). Sul comodino, lampada orientabile JJ [Leucos]. Stand appendiabiti [Zilio A&C].
Divano Ektorp [Ikea €329], lampada da lettura [Leucos], tappeto [cc-tapis], pouf e cuscini [Brochier]. Il blu usato per la parete è il NCS S 3050-B20G [Chrèon]. Design nordico per due classici disegnati da Ilmari Tapiovaara, che danno carattere all’angolo conversazione, di [Artek]: il tavolino Pirkka, disegnato nel 1955, e la poltroncina Crinolette in betulla [€1.978].
CasaFacile > CASE > Prima & Dopo > Soluzioni a basso budget per cambiare look all'appartamento in affitto
Come personalizzare e dare stile a una casa in affitto con un mini budget. Copia le idee della stylist
I consigli della stylist per dare personalità ad un appartamento in affitto con piccoli ritocchi low cost.
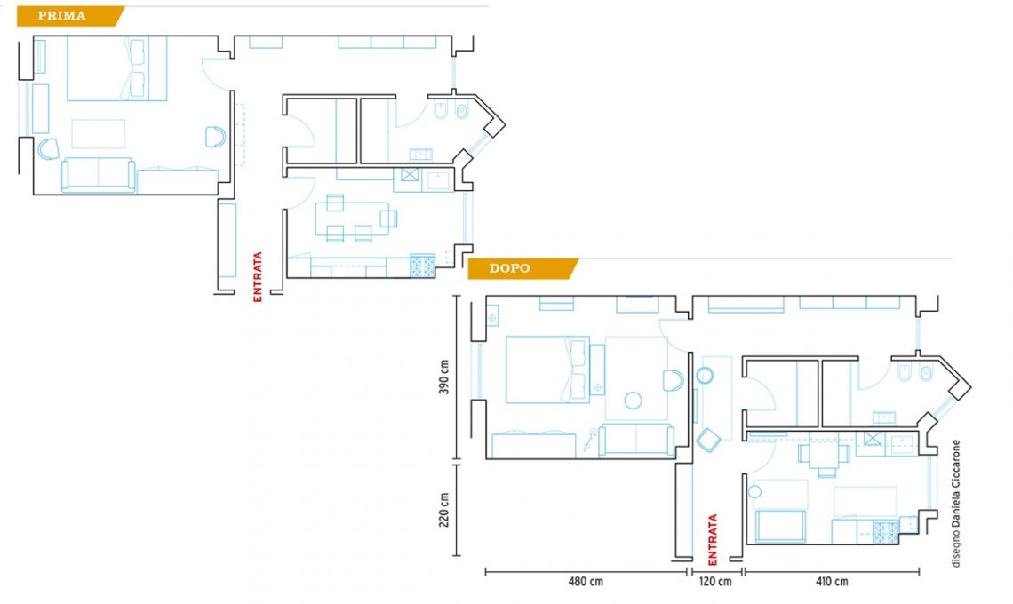
La casa di Romina ha una pianta classica, con una cucina di dimensioni standard, una stanza accanto che in origine era la sala, e un corridoio a L che conduce alla zona notte, dove si trovano una camera e il bagno. Proprio questa camera, più piccola, è stata subito destinata all’home working diventando lo studio.
Nell’ex living, di 20 mq e al mattino pieno di sole, ha sistemato invece la sua camera da letto. Mancava una zona conversazione, dove ricevere gli amici. Grazie al progetto della stylist Vanessa Pisk, ne sono state ricavate ben due: una sul lato della cucina prima occupato da una credenza; e l’altra in camera da letto, spostando il divano e mettendo a punto un bel restyling totale. Ora le aree conviviali sono ben definite, comode, e la suddivisione degli spazi razionale.
«Ho dedicato una stanza al lavoro, facendone uno studio; l’altra è la mia camera. Manca un living! E uno stile più personale, che parli di me», ci ha detto. La nostra stylist le è corsa in aiuto.
In cucina gli arredi erano accostati un po’ a caso, senza uno stile, senza un progetto né colori ben studiati. E la vecchia credenza, ingombrante, era troppo ‘chiusa’ per le esigenze di Romina, che ama tenere gli oggetti a vista.
L’intervento sulla cucina è stato drastico: via i vecchi arredi e niente pensili, ma ripiani su cui Romina può tenere a vista i cibi che ama e usa di più. Il nuovo tavolo, ora addossato a una parete, è conviviale e salvaspazio: a ribalta, ospita da 2 a 4 posti.
Di fronte, sostituiti i vecchi mobili, si è liberato il posto per un divano!
Cosa è rimasto? Le piastrelle, e partendo da quelle Vanessa ha stabilito il décor: grigio-azzurro per il muro e per il vecchio pavimento, che è stato ridipinto.
Romina amava molto gli arredi vintage che erano già nella casa: la credenza Anni ’50 dove tiene collezioni di tazzine e cristalli e le tovaglie ricamate da sua mamma, e il guardaroba d’antan, nella sua camera. Spostarli è stata la mossa vincente per valorizzarli e per ridefinire gli spazi. A rendere omogeneo l’insieme è il gioco dei colori, con azzurri e gialli ritmati su pareti, pavimenti e accessori.
Gli abbinamenti di colore sono una parte fondamentale del décor. Una volta individuata la tonalità che ti piace (in queso caso era il blu pavone usato per le pareti della camera) puoi giocare con accostamenti in nuance o a contrasto. Gli interior designer si basano su regole precise. Per non sbagliare e avere spunti nuovi, puoi andare sul sito https://color.adobe.com, utile e intuitivo. E poi puoi usare pattern diversi, come ha fatto Vanessa Pisk, che ha mischiato fantasie romantiche e linee geometriche. L’effetto? Sofisticato e personale.