OPEN ZOOM
1/15
Divano New York [Saba, ø cm 230x100x70h € 4.200]; poltrona Barcelona di Mies van der Rohe in un’edizione degli Anni ’60 scovata in un mercatino vintage, così come le sedie Fanett Anni ’50,
il tavolo Tulip di Eero Saarinen e il lampadario Sputnik degli Anni ’70.
OPEN ZOOM
1/15
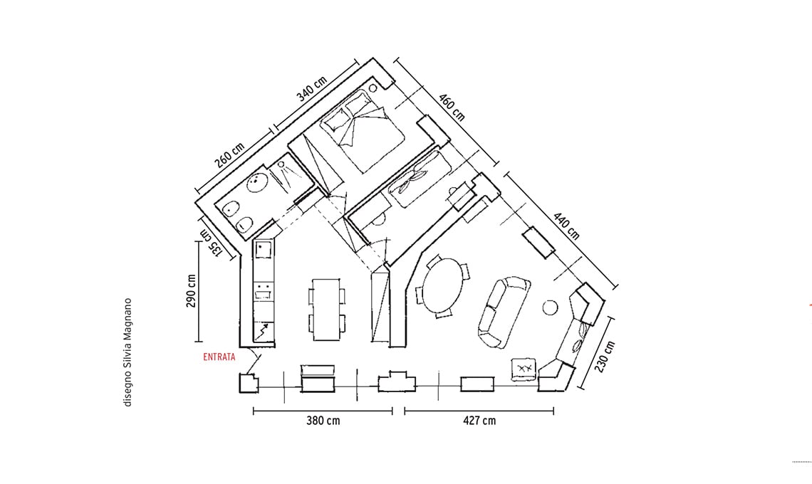
Tante finestre e una sola parete disponibile: la scelta è obbligata? No, Veronica evita
la soluzione più scontata e posiziona il divano al centro, creando una zona conversazione separata dal pranzo.
OPEN ZOOM
1/15
Libreria Krossing in alluminio [Kriptonite, cm 100x200x15 €597] e lampada Parentesi[Flos
€ 295].
OPEN ZOOM
1/15
Collezione di ritratti ad acquarello di Ernesto Treccani, regalo di famiglia. Sul divano, cuscino geometrico Absolument Maison [BHV].
OPEN ZOOM
1/15
Tavolo Anni ’40 acquistato al mercatino dei Navigli di Milano e sedie scandinave trovate in un brocante a Parigi.
OPEN ZOOM
1/15
Quattro moduli super compatti e funzionali integrano tutto il necessario per una chef.
OPEN ZOOM
1/15
Il terrazzo alla veneziana è stato realizzato da un artigiano parigino che ha fatto scegliere alla padrona
di casa granulometrie e colori delle inclusioni.
OPEN ZOOM
1/15
Applique bianche Ogilvy [Made, cm 16x13x30h € 49]; sopra il tavolo vintage, sospensioni VL45 Radiohus [Louis Poulsen, ø cm 17,5 € 345]; casse audio Dome Flat bianche [Focal].
OPEN ZOOM
1/15
Sedia girevole Anni ’70 [Siemens].
La camera da letto è stata riproporzionata, ricavando un piccolo studio che all’occorrenza diventa camera per gli ospiti. Veronica ha eliminato la porta che dava sul living e l’ha trasformata
in una nicchia a doppio uso: in questa stanza l’ha attrezzata con la postazione computer (con mini scrittoio estraibile!), mentre dal lato del soggiorno la nicchia contiene l’impianto audio.
OPEN ZOOM
1/15
Scrivania vintage come lo sgabello Girafa dell’architetto Lina Bo Bardi [Baraúna]; divano letto eco cotton T2 [Muji, cm 195x86x71h € 925].
OPEN ZOOM
1/15
Lenzuola in lino [La Redoute €89]; applique SignalSI300 [Jieldé, ø cm 10]; carta da parati Equateur Crépuscule [Hermès], videoproiettore Home Cinema [BenQ € 1.282].
OPEN ZOOM
1/15
Sanitari Evolution [Simas], interruttori Iris [Modelec], applique Mini Glo-Ball
in vetro opalino [Flos, ø cm 11,2 €110].
OPEN ZOOM
1/15
Sulla parete doccia, piastrelle in maiolica Blu Ponti [Ceramica Francesco De Maio,
cm 20x20]; a pavimento, piastrelle Pico disegnate da Ronan & Erwan Bouroullec in grès porcellanato [Mutina, da cm 120x120].
OPEN ZOOM
1/15
Anche in bagno Veronica non ha rinunciato al décor e ai grandi maestri del design: le piastrelle ’Blu Ponti’ sono state disegnate in 33 decori da Gio Ponti tra il 1960 e il 1962 per l’Hotel Parco dei Principi di Sorrento, il primo design hotel
al mondo.
