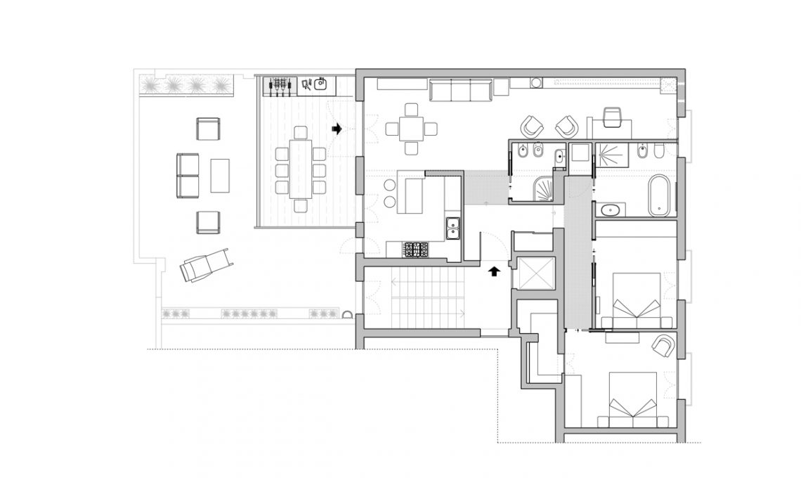
Il progetto: le zone notte e giorno sono state invertite in modo da rendere il terrazzo direttamente accessibile dal living, di cui è naturale prolungamento. Nella parte coperta da tenda a pergola c'è la zona pranzo con barbeque, a cielo aperto un salotto vero e proprio.
Prima: sul terrazzo si affacciavano una camera e i due bagni, sul lato opposto c'erano una cucina grande e un soggiorno poco sfruttabile; in fondo una seconda camera mal servita perché senza bagno.
Per fare ombra: modulare, autoportante o addossata, Gennius Kedry Prime è la nuova tenda a lamelle con struttura in alluminio: ripara da raggi solari, vento e umidità [KE Protezioni Solari].
Il pavimento outdoor è rivestito con un resistente grès porcellanato Yard effetto quarzite stonalizzato (con piastrelle dalla superficie non uguale), qui in color Grey [Iperceramica, cm 30x60 €12,99/mq].
Nel bagno per gli ospiti, le dimensioni ridotte del locale hanno suggerito l’installazione di sanitari compatti come quelli della serie Connect Space [Ideal Standard, cm 36x48 €333 il bidet e cm 36,5x48,5 €506 il vaso].
Nel bagno padronale spicca una vasca da bagno da centro stanza di ispirazione old style, come Romance in marmoresina finitura lucida [Leroy Merlin, cm 168x76,2 €1.000].
Le porte sono a scomparsa, per evitare l’ingombro dell’apertura, e in stile vintage come il resto della casa. Modello Venezia Pantografato LP 28 laccato BP bianco [Bertolotto, cm 80x210h €595 + iva].
Prima sulla grande terrazza si affacciava una delle camere, e questo la rendeva poco utilizzabile. Ora, invece, è un vero e proprio prolungamento del soggiorno
Camera padronale e bagni si affacciavano sul terrazzo (grande ma poco utilizzato); la cucina e il soggiorno sul lato opposto.
Ecco il progetto sviluppato dagli architetti CF style Laura Nicodemo ed Elisabetta Massa dello studio Amodo di Bologna.
Ora tutta la zona giorno è open e a contatto con la parte outdoor: la cucina, a vista, ha preso il posto dei due bagni e il living ha un doppio affaccio, con tanto di zona studio e angolo musica.
Il terrazzo, grazie anche a un sistema di copertura parziale, è sfruttato sia come zona pranzo sia come angolo relax all’aperto.
I 2 bagni sono stati ingranditi e spostati: uno serve la camera, uno è per gli ospiti. Per far passare le tubature, i pavimenti sono stati rialzati; inoltre, la finestra di quella che era la cucina è stata ‘sdoppiata’ per dare luce anche al servizio padronale. Infine, tra i due c’è un locale la lavanderia.
La camera principale è stata spostata dove c’era il vecchio soggiorno.
Vuoi anche tu la consulenza di un architetto CF style? Clicca qui.