Effetto open space: prima la cucina era troppo ampia e totalmente separata dal salotto. Ora è praticamente parte del soggiorno poiché la divisione dal living si ha grazie a 2 grandi aperture da chiudere con ante scorrevoli in vetro, che permettono alla luce di passare ugualmente.
Il progetto: cucina e living diventano un open space, a separarli ci sono, all'occorrenza due ante scorrevoliin vetro. La camera 'acquista' un bagno e una cabina armadio esclusivi, la cameretta si ingrandisce e si realizza il secondo bagno.
Spazi a sorpresa: per ospitare le stoviglie e i quadri, le pareti della zona pranzo sono attrezzate con nicchie e una boiserie, tutto dipinto nella stessa nuance della parete, così da risultare praticamente invisibile.
La cucina è più compatta e pratica: al centro, parallela alla parete con lavello più colonne frigo e forno, c’è una grande penisola con la zona cottura e banco snack.
In cucina accanto alla finestra si trova una nicchia chiusa da un’anta rivestita con una lamina magnetica effetto lavagna di [Abet]. Parete e calorifero sono dipinti nello stesso colore.
Le pareti del bagno sono rivestite con la resina Wallcrete di [Kerakoll], dalla texture cemento materico spatolato. Ideale anche per la doccia se addizionata con l’impermeabilizzante Aquastop.
Le pareti del bagno sono rivestite con la resina Wallcrete, dalla texture cemento materico spatolato. Ideale anche per la doccia se addizionata con l’impermeabilizzante Aquastop. Entrambi di [Kerakoll].
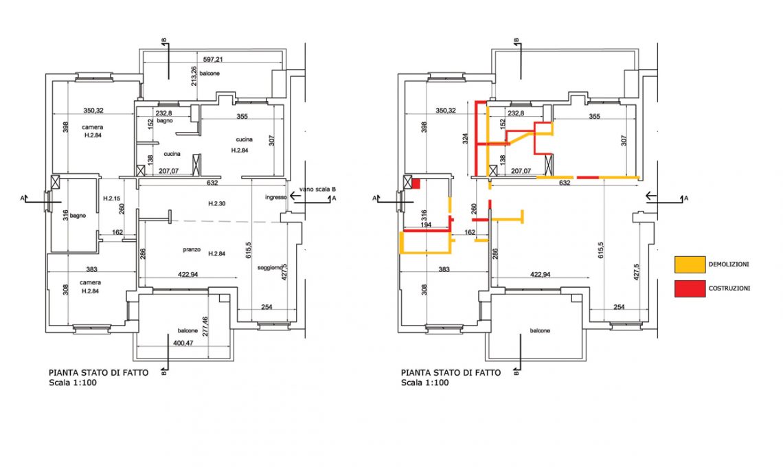
Prima: una cucina fin troppo grande e una lavanderia poco sfruttata. Dopo: la stanza dei genitori è una suite, quella del figlio è più ampia e la zona giorno diventa open
Sara e Mauro volevano una zona giorno più fluida, una cameretta più grande e un secondo bagno. Hanno contattato i nostri architetti CF Style di Euga Design Studio: ecco la loro proposta.
Tolta la libreria che separava le zone giorno, cucina e notte, il living è diventato un grande open space e in ingresso è stato creato un armadio in cartongesso per i cappotti.
La cucina è stata quasi dimezzata (rimane comunque molto ampia) e si apre sul soggiorno, separata da due grandi porte scorrevoli in vetro.
Quella che era la lavanderia è diventata il bagno privato della camera matrimoniale, a cui è stata aggiunta anche la cabina armadio.
Riducendo il bagno principale si è ingrandita la camera del bambino, ora piccolo, pensando al futuro.
Vuoi anche tu una consulenza da un architetto CF Style? Clicca qui