SOS! Ho bisogno del vostro aiuto per trasformare il deposito al piano terra in un mini appartamento funzionale, con un soppalco centrale per la zona notte
“SOS! Ho bisogno del vostro aiuto per trasformare il deposito al piano terra in un mini appartamento funzionale, con un soppalco centrale per la zona notte”
Giampiero, Cagliari
Caro Giampiero,
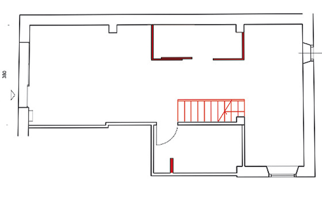
con poche mosse il tuo magazzino di 48 mq diventerà un vero loft, confortevole e funzionale. E grazie all’altezza di m 4,20 abbiamo potuto prevedere ben 7 metri di soppalco per il letto matrimoniale! Lo spazio può essere comodamente suddiviso in tre zone: all’ingresso l’area conversazione, con divano e poltroncina; al centro quella di passaggio, alta cm 210, con cabina armadio e scala per accedere al soppalco, più il bagno; e in fondo al locale, illuminata da due finestre, le zone pranzo e cucina.
La soluzione che ti proponiamo prevede prima di tutto l’inserimento di un’ampia vetrata scorrevole che permetterà l’accesso all’appartamento e, allo stesso tempo, sarà la principale fonte di luce naturale. Puoi sfruttare le rientranze di 30 cm create dai pilastri, attrezzandole in diversi modi a seconda degli ambienti: con un mobile contenitore basso e tante mensole in corrispondenza della zona relax; con una cabina armadio nella fascia centrale e con una credenza e degli scaffali a giorno in cucina. Il cucinino, organizzato ad angolo sulla parete che confina con il bagno, risulterà così parzialmente nascosto.
Soppalco e scala possono essere realizzati in legno, mentre per i divisori della cabina armadio ti consigliamo di ricorrere a semplici pannelli in cartongesso.
A cura del TEAM S.o.S. Casafacile
