Progetti degli architetti

Ristrutturare: un piano in più con terrazzo e zona ospiti

Una piccola casa indipendente all’interno di un cortile si trasforma in... villetta su due piani con terrazzo e giardino privato, grazie al ‘Piano Casa’ regionale!

La nostra lettrice Anna ha contattato l’architetto Cf Style Francesca Pierucci per farsi fare un progetto per una casa che vorrebbe acquistare: un’abitazione indipendente (tipo ex casa del portinaio) all’interno di un cortile condominiale. Le esigenze di Anna? Spostare soggiorno e cucina sul lato opposto a quello dello stato attuale, in modo che si possano affacciare sul giardino privato, e creare un piano in più da adibire a zona ospiti accessibile anche dal grande terrazzo che verrebbe a sostituire il tetto preesistente: Il tutto circondato da pergolati e zone a verde con piante da frutto e aromatiche. 

IL PROGETTO
La sopraelevazione dell’abitazione, per ampliarla di circa il 20%, è consentita dal ‘Piano Casa della Regione Lazio’.
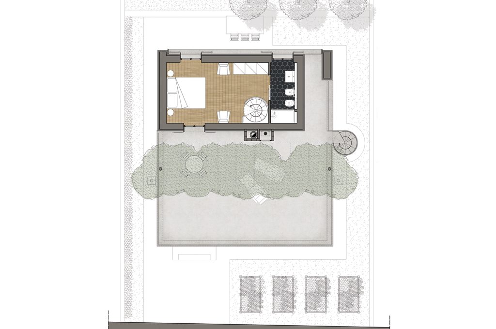
  • Anna voleva un ambiente aperto, quindi è stato proposto un ambiente open space cucina-living, organizzato attorno al camino. Al piano terra ci sono anche la camera padronale (spostata dove c’era la cucina), con cabina armadio per lui e armadio a ponte per lei, e un bagno (dove c’era l’ingresso) con doccia per lui e vasca su piedini per lei. Inoltre c’è una zona studio (Anna lavora anche da casa, realizzando vestiti vintage rivisitati) comunicante con il soggiorno tramite grandi porte scorrevoli e dotata di cabina armadio dove Anna ripone le sue creazioni (utile se lo studio dovesse diventare una camera da letto).
  • Il piano di sopra, dove è stata prevista una stanza per gli ospiti con bagno privato, si raggiunge con una scala interna che sale dalla zona studio ma anche con una chiocciola esterna che dal giardino porta al maxi-terrazzo.
Puoi contattare l'architetto Francesca Pierucci su www.francescapierucci.it

Vuoi diventare un architetto CF Style? Clicca qui 


Vuoi una consulenza da un architetto CF Style? Clicca qui
Testi

Elena Favetti

Progetto

arch. Francesca Pierucci

Ti potrebbe interessare