Il committente vuole separare le zone notte e giorno, nonché creare un secondo bagno e una lavanderia. Servono anche uno studio dove ricevere i clienti e una cucina aperta sul soggiorno.
Il progetto
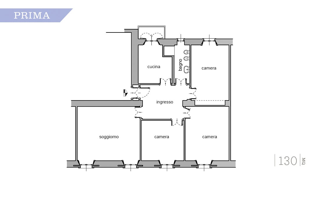
- L’ingresso (14 mq) è stato ridimensionato per ricavare 3 zone funzionali: l’entrata con armadio a muro per i cappotti, il disimpegno dell’area notte e il secondo bagno.
- Lo studio ha preso il posto della vecchia cucina: ben isolato dal resto della casa, è perfetto per ricevere i clienti e lavorare senza disturbo.
- La cucina, spostata accanto al salotto (al posto di una ex camera) è a vista sul living e dotata di grande tavolo da pranzo, per ricevere amici.
- I due bagni sono separati da una lastra in cristallo stratificato bianco latte, posizionata tra le due maxi-docce: così c’è più luce e si risparmia spazio.
- La stanza matrimoniale, molto ampia (19 mq), ora ha al suo interno la cabina armadio e l’accesso diretto al bagno preesistente.
- In fondo al corridoio, invece, tra le due camere c’è la nuova lavanderia.
Le scelte del progettista
- IL SECONDO BAGNO? NON È UN SOGNO: Vuoi ricavare un servizio in più ma sarebbe lontano dalla braga di carico e scarico dell’acqua? Nessun problema! Con il sistema trituratore e pompa Saniwall Pro Up di [Sanitrit], disponibile con rivestimento in vetro e nella nuova versione piastrellabile, il tuo sogno si può realizzare.
- LA DOCCIA WALK IN: Si installa a filo pavimento il piatto doccia effetto pietra Ultra Flat da cm 160x90, qui color Moka con box Magnum e colonna Idealrain [Ideal Standard].
- PER MINI-BAGNI: È supercompatto il lavabo DuraSquare da cm 45x35, che si può abbinare a svariati mobili contenitori come XSquare grigio grafite opaco [Duravit]
- SALVASPAZIO: Un bagno completo in 3 mq? Si può, con la serie Connect Space dalle linee stondate: bidet da cm 48x36, vaso da cm 48,5x36,5, lavabo da cm 70x38 e doccia angolare con apertura scorrevole Connect R da cm 80x80 [Ideal Standard].
- Per muri a effetto tattile, c’è la collezione Fabric, in ceramica: spessore 6 mm, formato cm 40x120, si ispira alle fibre naturali per texture e tonalità [Marazzi].
- Pareti super-raffinate con il mosaico Botanic, dalle tessere a base di smalti e vetri di diversa trasparenza e iridescenza che si mescolano, per creare decori naturali stilizzati [Mosaico+].
- Parquet in rovere in finitura naturale della serie Tavole del Piave, bisellate e con la superficie spazzolata che fa ‘sentire’ la venatura [Itlas].
