Progetti degli architetti

Ricavare la cameretta: 2 soluzioni e 2 budget

Nell'appartamento con terrazzo e giardino serve una stanza in più per il bimbo. Ecco due proposte con costi differenti.

Un appartamento con un piccolo giardino privato: un sogno! Ma i nostri lettori hanno bisogno di una stanza in più per il bimbo di 3 anni. Ecco due proposte: una poco invasiva e low cost e una più ‘importante’ che permette di ricavare anche un secondo bagno e due cabine armadio. In entrambi i casi nel giardino ci saranno un pergolato e un’area gioco.

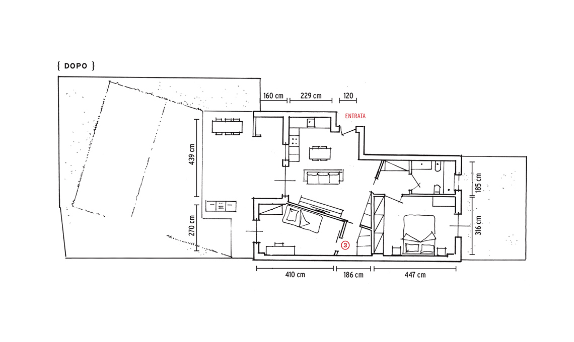
Soluzione 1

Abbattuti i tramezzi che definiscono la cucina, che ora sarà open sul soggiorno, si realizzano due pareti oblique in cartongesso per creare la cameretta di corrette dimensioni, senza penalizzare il living. Gli impianti sono soltanto modificati.

Budget *

  • Demolizioni e trasporto in discarica €1.500
  • Realizzazione tramezzi in cartongesso con rasatura e stuccatura €1.800
  • Sostituzione portafinestra con finestra con assistenza muraria €1.500
  • Controsoffitti in cartongesso €600
  • Ripresa pavimento esistente €900
  • Tinteggiatura pareti e soffitto €1.800
  • Modifiche impianti idrico, elettrico, gas e termico €2.550
  • Fornitura e posa 2 porte scorrevoli €1.200
  • Fornitura e posa piastrelle cucina €400

Totale €12.250

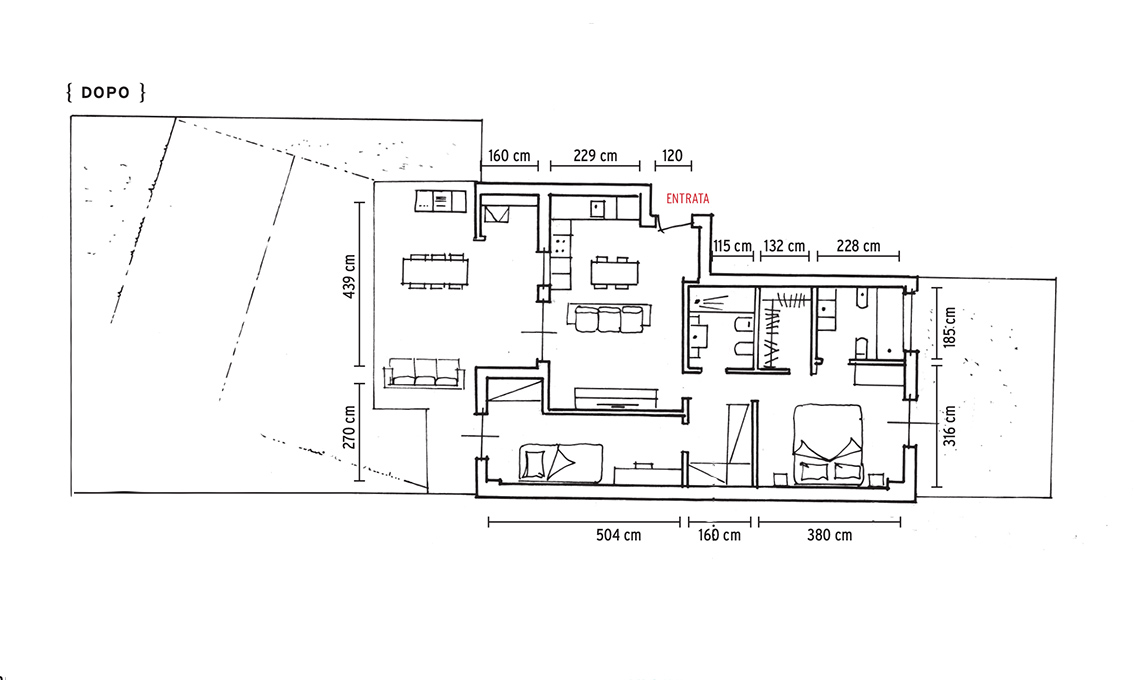
Soluzione 2

Vengono demoliti tutti i tramezzi e i pavimenti: la cucina si apre sul salotto, la cameretta prende una forma a elle preceduta da un’utile anticamera con armadi. Allargando leggermente il vecchio disimpegno, si ricavano il secondo bagno (cieco) e la cabina armadio della camera padronale, che adesso ha il bagno privato. Il dehors ospita una piccola cucina open air, un maxi tavolo e, in giardino, l’area relax.

Budget *

  • Demolizioni pareti e pavimenti, creazione tracce e trasporto in discarica €3.500
  • Costruzione tramezzi in forati con intonaco e rasatura €5.900
  • Rasatura vecchi intonaci €800
  • Sostituzione portafinestra con finestra con assistenza muraria €1.500
  • Controsoffitti in cartongesso €600
  • Fornitura e posa parquet e zoccolini €7.260
  • Fornitura e posa piastrelle 2 bagni e cucina €3.760
  • Fornitura e posa 4 porte scorrevoli €2.400
  • Tinteggiatura €4.800
  • Impianto idrico cucina e bagni con sanitari e arredobagno €4.500
  • Modifiche imp. elettrico e termico €4.500

Totale €39.520

 

 *il preventivo si riferisce a questo progetto; l’immobile si trova a Roma

Guarda anche
Progetti degli architetti

Ridistribuisci gli spazi per avere una stanza in più

Testi

Elena Favetti

Progetto

Susanna Rao