La metratura calpestabile è aumentata del 20% perché
la superficie dei locali accessori con altezza inferiore a cm 150 non rientra nei conteggi. I 20 mq in aggiunta, invece, richiedono il pagamento al Comune di specifici oneri di urbanizzazione.
La doppia altezza che caratterizza la zona living rende l’ambiente molto confortevole e luminoso, oltre che di grande impatto. Le putrelle a vista danno un tocco industrial ripreso dalla scala in metallo.
La finestra da tetto GGU Integra elettrica a bilico può ruotare di 180° gradi (con bloccaggio
a chiavistello) per la pulizia del vetro esterno o la ventilazione
[Velux].
La soffitta inutilizzata si è rivelata preziosa. Per sfruttarla è stata abbassata la soletta che la separava dall'appartamento sottostante.
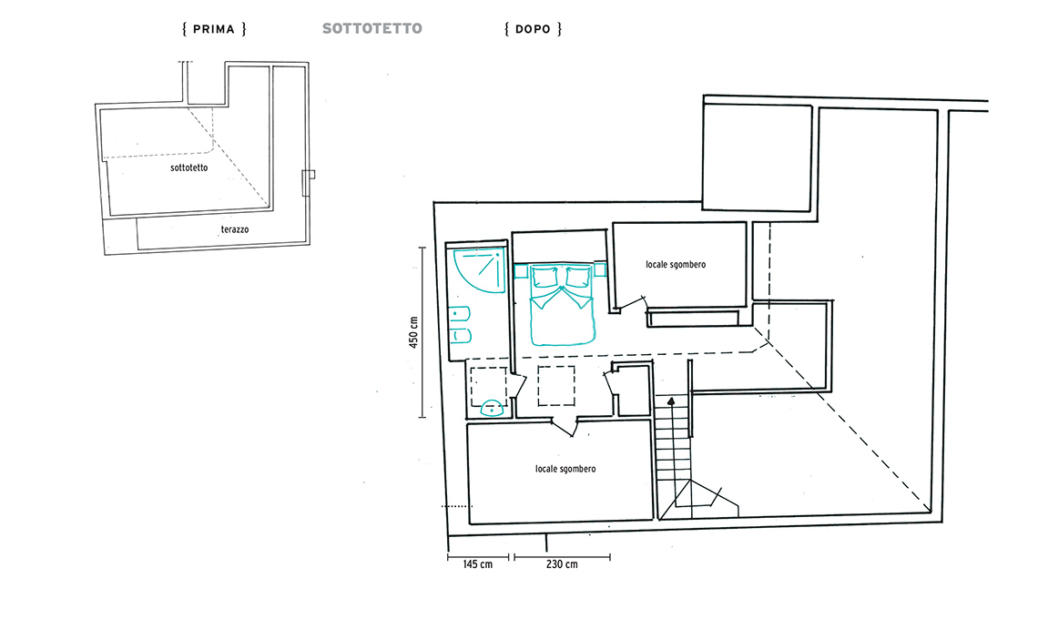
l proprietario della casa all’ultimo piano aveva l’esigenza di ingrandire l’appartamento per creare uno studio in casa (è un multimedia artist). Il sottotetto era inutilizzato e di sua proprietà, così l’architetto CFstyle Manuela Marconi ha proposto di recuperarlo: in pratica, demolendo i vecchi soffitti, l’altezza utile interna è diventata di cm 520 nel punto maggiore e 320 nel punto più basso, con un’altezza media di 440 cm.
La soluzione
La posizione del soppalco è stata studiata in modo da garantire, sotto, un’altezza di 270 cm nelle camere (come da regolamento edilizio di Genova) e di 225 cm nelle zone di servizio, bagni e corridoi (dopo aver ottenuto il nulla osta della ASL perché l’altezza dovrebbe essere di cm 240).
L’altezza media utile al piano di sopra è di 230 cm (altezza media minima consentita per le superfici abitabili nei locali sottotetto). Il tetto, dunque, è stato coibentato in base ai parametri previsti dalla legge, così come sono stati aperti dei lucernari per avere i corretti rapporti aeroilluminanti. Di sopra è stata ricavata una camera con bagno, oltre a due ripostigli e a una zona relax che si affaccia direttamente sul living del piano sotto e la superficie totale è passata dagli originali 100 a 120 mq.
BUDGET*
Demolizioni solette e tramezzi con trasporto in discarica €4.000
Costruzione tramezzi €14.000
Realizzazione soppalco in ferro con piano di calpestio in legno €7.500
Realizzazione controsoffitti € 2.000
Fornitura e posa finestre tetto € 2.400
Coibentazione del tetto €3.500
Impianto riscaldamento €6.500
Impianto idrico bagni e cucina € 7.500
Impianto elettrico € 9.000
Impianto condizionamento € 7.500
Piastrellatura bagni €3.200
Fornitura e posa parquet € 9.600
Fornitura e posa 8 porte € 3.200
Tinteggiatura e finiture € 9.000
Totale (iva esclusa) €88.900
* il preventivo si riferisce a questo progetto; l’immobile si trova a Genova.