Dopo: restringendo la camera da letto è stato creato un secondo bagno ad uso esclusivo della stanza stessa. Ridimensionando l'ingresso, il disimpegno è stato attrezzato con armadi.
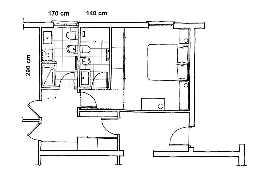
Un appartamento di 5 locali per 4 persone e un solo bagno: riproporzionando ingresso e disimpegno è stato ricavato un secondo bagno e una zona dedicata agli armadi
Per ricavare il bagno padronale sono stati ristretti di cm 75 sia quello esistente sia la camera matrimoniale adiacente. Il primo bagno, ridotto in larghezza da cm 250 a 170, ora serve ai figli (e agli ospiti), mentre quello nuovo, largo cm 150, serve la camera. La zona del disimpegno notte ‘ruba’ spazio all’ingresso e ha le pareti attrezzate a tutta altezza con armadi di diverse profondità. Rispetto a prima, lo spazio contenitivo ora è più che raddoppiato!
I lavori:
Nella zona notte è stata demolita la parete che delimita il bagno e se ne sono costruite due nuove per il secondo bagno, spostando la porta della camera.
In camera, davanti al nuovo bagno, in un controsoffitto a cm 220 da terra, si è ricavato un ripostiglio pensile.
La posizione di letto e armadio è stata scambiata.
Costruendo la nuova parete divisoria tra giorno e notte è stato ridimensionato l’ingresso: così, si allunga il disimpegno da attrezzare a guardaroba.