La nostra amica Valeria chiede come arredare la nuova casa in affitto, privilegiando l’area relax rispetto alla cucina e creando un angolo craft
Ci scrive Valeria: «Ho preso in affitto una casina dove mi lascerebbero i mobili della cucina e un grande divano, ma preferirei cambiare tutto anche per creare, con i vostri pratici consigli, un ambiente più raccolto e accogliente. Non cucino molto e di rado mangio a casa, quindi desidererei privilegiare l’angolo relax-tv rispetto a cucina e tavolo pranzo. Vorrei schermare l’ingresso e creare, in camera, anche un angolo craft».
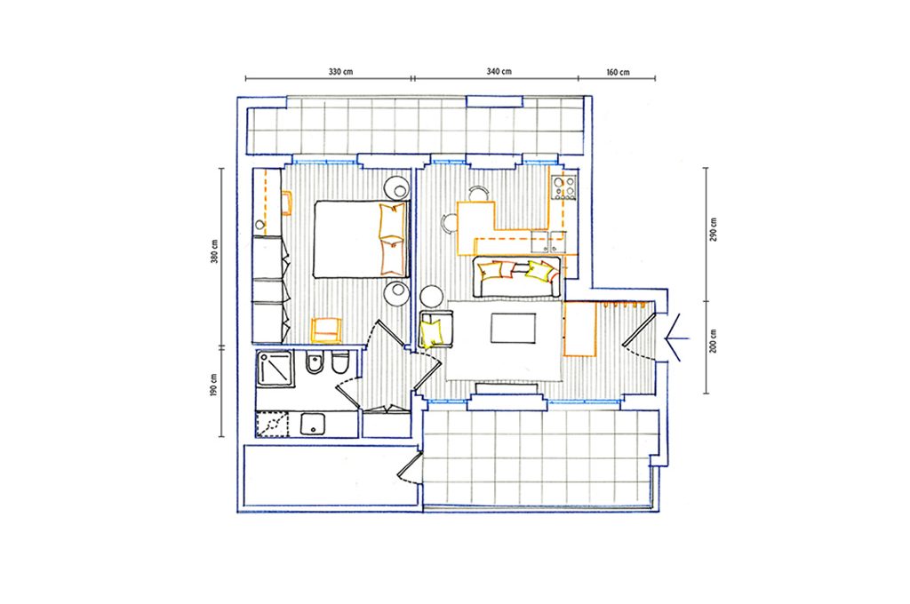
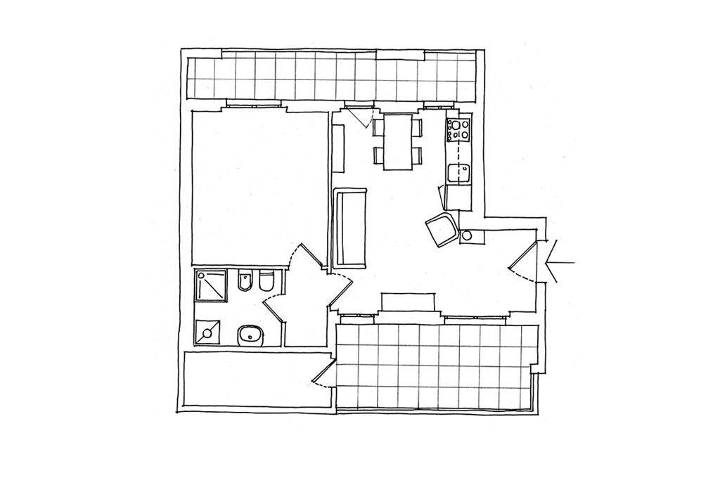
Ecco come organizzare la zona giorno aperta, ma ben suddivisa, più camera e bagno della nostra lettrice. Idee da copiare anche per voi.
Ecco come organizzare la zona giorno aperta, ma ben suddivisa, più camera e bagno della nostra lettrice. Idee da copiare anche per voi.
- La cucina rimane nella stessa posizione per mantenere gli attacchi esistenti. È risolta con un mobile a “U” rivolto verso le finestre sul cortile (a est), che termina con un piccolo tavolo a penisola, servito da un paio di sgabelli per colazioni veloci. Il mobile della cucina sul lato parete ha pensili alti cm 60, sul lato lungo, invece, ha solo mensole profonde cm 20, con uno schienale alto cm 110 dal top (cm 200 da terra) che scherma il soggiorno.
- L’area più ampia, esposta a ovest, è arredata con un divano di cm 180 e una poltroncina, con un paio di tavolini di servizio e alcune mensole che completano l’angolo prima del pilastro.
- La porta d’ingresso è schermata da un mobile contenitore con ante, mensole e tv, allineato al pilastro e rivolto verso il centro stanza. Il mobile, profondo cm 45, e alto come quello della cucina per esservi allineato, è largo cm 130 per lasciare un ampio passaggio davanti alla finestra, senza togliere la luce all’ambiente. Dietro a questo, semplici pioli allineati a parete servono da attaccapanni.
- In camera, l’angolo accanto alla finestra di fronte al letto è riservato al tavolo studio e craft.
- In bagno, l’unico suggerimento è quello di sostituire il lavabo a colonna per sceglierne uno nuovo da incassare in un mobile a tutta parete, dove inserire anche la lavatrice esistente, per avere un contenitore
