La composizione 14 Free System per la mansarda: lungo la parete con altezza maggiore ci sono il soppalco lineare con libreria Holly e il divano letto Whippy con rete estraibile [Nidi, cm 453x98x258h].
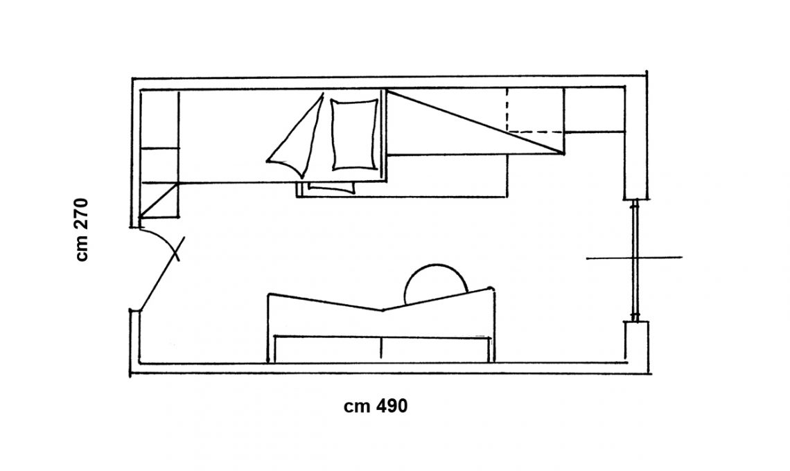
Il progetto: viste le dimensioni della stanza (cm 490x270) e la disposizione di porta e finestra, le zone 'notte' e studio sono organizzate sulle pareti maggiori.
La cameretta è nel sottotetto? Nessun problema: per organizzarla si sfruttano le diverse altezze
Ci ha scritto la nostra lettrice Anna per trovare una soluzione per la camera delle figlie da organizzare nella mansarda della sua villetta. Sofia e Giulia, 14 e 7 anni, hanno una stanza stretta e lunga (cm 490x270) nel sottotetto: due ‘mondi’ diversi devono convivere senza darsi fastidio.La nostra proposta? Lungo la parete con altezza maggiore un soppalco con i due letti (c’è anche quello estraibile per le amiche che si fermano a dormire) e un armadio capiente a testa, più una libreria per giochi e libri. Sulla parete di fronte (dove il tetto scende) la maxi scrivania che ora è dedicata alla sorella maggiore, ma presto sarà usata anche da Giulia.