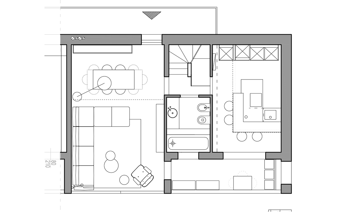
Il divano è modulare: i singoli elementi possono essere facilmente spostati per dar vita a numerose combinazioni differenti a seconda dell'occasione. La zona pranzo si trova sotto il soppalco: il soffitto è rivestito con la stessa essenza usata per il pavimento, per creare un'atmosfera raccolta.
Il lato del soppalco che si affaccia sul living è delimitato da una parete in pannelli di legno che semplicemente spostati isolano questo spazio dando vita ad una stanza in più.
Piccoli trucchi: l'utilizzo degli specchi contribuisce ad aumentare la percezione degli spazi. Inoltre, a differenza di quanto non si creda, i colori scuri negli ambienti piccoli impreziosiscono e non “riducono” visivamente le dimensioni della stanza
La pianta del piano terra: si entra sulla zona pranzo ribassata dal sovrastante soppalco, per poi passare all'area relax a doppia altezza. Al centro si trova il bagno principale e, di fianco, la grande cucina affacciata sul terrazzo.
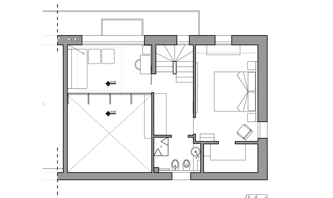
La zona soppalcata ospita la camera padronale con cabina armadio e secondo bagno. Inoltre l'area che si affaccia sul living può essere isolata e trasformata in camera per gli ospiti.
Un appartamento duplex di 85 metri quadri è stato progettato per unire praticità e stile con tante soluzioni salvaspazio a sorpresa
Alessandro ha acquistato un Loft duplex a Milano sui navigli: si tratta di uno spazio di 85 mq che vorrebbe sfruttare al massimo. Lo stile che predilige è, ovviamente, maschile ossia determinato ma caldo ed accogliente. Ama gli arredi di design, che danno allo spazio un gusto elegante e deciso.
La sfida per lo studio Nomade Architettura è ottimizzare gli spazi al massimo, creando una sorta di piccolo gioiello di incastri e funzionalità, che si possa modificare a seconda delle esigenze e delle situazioni. Il risultato è un appartamento fortemente connotato, che nasconde soluzioni inaspettate di contenimento e versatilità.
Il progetto:
L’appartamento si sviluppa su due livelli con soggiorno a doppia altezza, zona pranzo sotto il soppalco, cucina abitabile e bagno con vasca al piano terra; una scala a chiocciola porta al piano superiore dove ci sono la camera da letto, il secondo bagno e lo studio/camera degli ospiti sul soppalco. I colori scelti per l’appartamento sono forti e decisi, i materiali utilizzati vanno dalla resina effetto cemento per la parete che sottolinea la doppia altezza del living, al legno che riveste i pavimenti e il soffitto della zona pranzo (creando un effetto raccolto stile yacht), al ferro grezzo cerato.
Ogni ambiente è pensato per trasformarsi e adattarsi a situazioni diverse: il divano è composto da diversi moduli facilmente spostabili, così da consentire configurazioni nuove a seconda della situazione, stesso principio vale per il tavolo da pranzo, allungabile.
La cucina, grande, diventa uno spazio abitabile, con un bancone che invita alla convivialità sottolineata dalla maxi parete lavagna sulla quale gli amici possono lasciare dei messaggi.
La scala che conduce al piano superiore nasconde un piccolo vano lavanderia (con lavatrice e asciugatrice), in più, tutti i gradini sono in realtà dei pratici cassetti contenitori da utilizzare come scarpiera, sfruttando così la massimo l’elemento di collegamento verticale.
Il soppalco è stato fin dall’inizio pensato come studio, ma anche come camera in più: per dare privacy agli ospiti, sono stati creati dei pannelli in legno (la stessa essenza utilizzata per il parquet) rotanti e scorrevoli su piccoli binari, che possono semplicemente esser chiusi, creando così una seconda camera.
I bagni, piccoli gioielli, nascondono cassetti e vani che consentono di nascondere e contenere tutto ciò che è possibile.